Get the free Corporate Environmental Behavior and the Effectiveness of ...
Show details
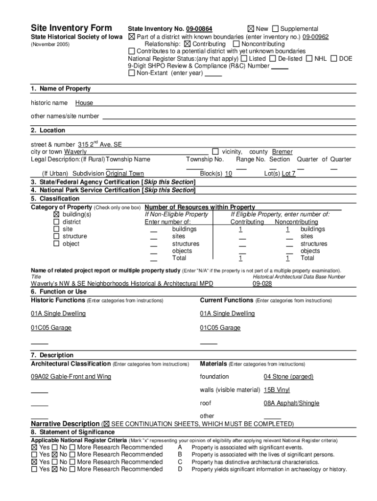
Site Inventory Form State Historical Society of Iowa (November 2005)State Inventory No. 0900864 New Supplemental Part of a district with known boundaries (enter inventory no.) 0900962 Relationship:
We are not affiliated with any brand or entity on this form
Get, Create, Make and Sign corporate environmental behavior and
Edit your corporate environmental behavior and form online
Type text, complete fillable fields, insert images, highlight or blackout data for discretion, add comments, and more.
Add your legally-binding signature
Draw or type your signature, upload a signature image, or capture it with your digital camera.
Share your form instantly
Email, fax, or share your corporate environmental behavior and form via URL. You can also download, print, or export forms to your preferred cloud storage service.
Editing corporate environmental behavior and online
In order to make advantage of the professional PDF editor, follow these steps:
1
Create an account. Begin by choosing Start Free Trial and, if you are a new user, establish a profile.
2
Prepare a file. Use the Add New button. Then upload your file to the system from your device, importing it from internal mail, the cloud, or by adding its URL.
3
Edit corporate environmental behavior and. Replace text, adding objects, rearranging pages, and more. Then select the Documents tab to combine, divide, lock or unlock the file.
4
Save your file. Select it from your records list. Then, click the right toolbar and select one of the various exporting options: save in numerous formats, download as PDF, email, or cloud.
pdfFiller makes dealing with documents a breeze. Create an account to find out!
Uncompromising security for your PDF editing and eSignature needs
Your private information is safe with pdfFiller. We employ end-to-end encryption, secure cloud storage, and advanced access control to protect your documents and maintain regulatory compliance.
How to fill out corporate environmental behavior and
How to fill out corporate environmental behavior and
01
To fill out corporate environmental behavior, follow these steps:
02
Start by gathering information about your organization's current environmental practices and policies.
03
Identify specific behavioral changes or actions that can help reduce your organization's environmental impact.
04
Develop a plan or strategy for implementing these changes, including assigning responsibility for each action item.
05
Communicate the importance of corporate environmental behavior to all employees and stakeholders.
06
Provide training and resources to support employees in adopting environmentally-friendly behaviors.
07
Regularly monitor and evaluate the effectiveness of your organization's environmental behavior initiatives.
08
Make adjustments and improvements based on feedback and performance results.
09
Continually promote and reinforce the importance of corporate environmental behavior throughout your organization.
Who needs corporate environmental behavior and?
01
Corporate environmental behavior is important for various stakeholders, including:
02
- Companies and organizations that want to reduce their environmental impact and contribute to sustainability.
03
- Employees who want to work for a socially responsible and environmentally-conscious organization.
04
- Customers and consumers who prefer to support companies that prioritize environmental sustainability.
05
- Investors and shareholders who are increasingly interested in environmental performance and risk management.
06
- Regulatory bodies that enforce environmental standards and regulations.
07
- Local communities and society as a whole, who benefit from reduced pollution and resource conservation.
Fill
form
: Try Risk Free
For pdfFiller’s FAQs
Below is a list of the most common customer questions. If you can’t find an answer to your question, please don’t hesitate to reach out to us.
How can I modify corporate environmental behavior and without leaving Google Drive?
Using pdfFiller with Google Docs allows you to create, amend, and sign documents straight from your Google Drive. The add-on turns your corporate environmental behavior and into a dynamic fillable form that you can manage and eSign from anywhere.
How do I edit corporate environmental behavior and in Chrome?
Add pdfFiller Google Chrome Extension to your web browser to start editing corporate environmental behavior and and other documents directly from a Google search page. The service allows you to make changes in your documents when viewing them in Chrome. Create fillable documents and edit existing PDFs from any internet-connected device with pdfFiller.
Can I sign the corporate environmental behavior and electronically in Chrome?
Yes, you can. With pdfFiller, you not only get a feature-rich PDF editor and fillable form builder but a powerful e-signature solution that you can add directly to your Chrome browser. Using our extension, you can create your legally-binding eSignature by typing, drawing, or capturing a photo of your signature using your webcam. Choose whichever method you prefer and eSign your corporate environmental behavior and in minutes.
What is corporate environmental behavior and?
Corporate environmental behavior refers to the actions and policies that businesses implement to minimize their environmental impact and promote sustainability.
Who is required to file corporate environmental behavior and?
Typically, publicly traded companies and certain large private companies are required to file reports on corporate environmental behavior, particularly those in regulated industries.
How to fill out corporate environmental behavior and?
To fill out corporate environmental behavior reports, companies must gather data on their environmental practices, follow the reporting guidelines set by regulatory bodies, and provide accurate and comprehensive information.
What is the purpose of corporate environmental behavior and?
The purpose of corporate environmental behavior reporting is to ensure transparency, promote accountability, and facilitate better decision-making regarding environmental practices.
What information must be reported on corporate environmental behavior and?
Companies must report on their resource usage, waste management practices, carbon emissions, compliance with environmental regulations, and any sustainability initiatives they have undertaken.
Fill out your corporate environmental behavior and online with pdfFiller!
pdfFiller is an end-to-end solution for managing, creating, and editing documents and forms in the cloud. Save time and hassle by preparing your tax forms online.
Corporate Environmental Behavior And is not the form you're looking for?Search for another form here.
Relevant keywords
Related Forms
If you believe that this page should be taken down, please follow our DMCA take down process
here
.
This form may include fields for payment information. Data entered in these fields is not covered by PCI DSS compliance.