Get the free CALIFORNIA RIVER PARKWAYS GRANT PROGRAM - resources.ca.gov - resources ca
Show details
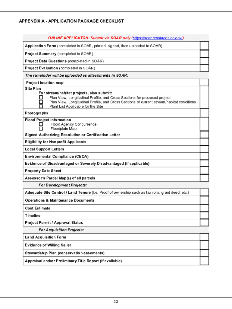
CALIFORNIA RIVER PARKWAYS GRANT PROGRAM PROPORTION 68 GRANT GUIDELINES & APPLICATIONSTATE OF CALIFORNIA THE NATURAL RESOURCES AGENCY July 2018iTECHNICAL ASSISTANCE WORKSHOPSSACRAMENTOAZUSAAugust 14,
We are not affiliated with any brand or entity on this form
Get, Create, Make and Sign california river parkways grant
Edit your california river parkways grant form online
Type text, complete fillable fields, insert images, highlight or blackout data for discretion, add comments, and more.
Add your legally-binding signature
Draw or type your signature, upload a signature image, or capture it with your digital camera.
Share your form instantly
Email, fax, or share your california river parkways grant form via URL. You can also download, print, or export forms to your preferred cloud storage service.
How to edit california river parkways grant online
Here are the steps you need to follow to get started with our professional PDF editor:
1
Register the account. Begin by clicking Start Free Trial and create a profile if you are a new user.
2
Prepare a file. Use the Add New button. Then upload your file to the system from your device, importing it from internal mail, the cloud, or by adding its URL.
3
Edit california river parkways grant. Text may be added and replaced, new objects can be included, pages can be rearranged, watermarks and page numbers can be added, and so on. When you're done editing, click Done and then go to the Documents tab to combine, divide, lock, or unlock the file.
4
Get your file. Select your file from the documents list and pick your export method. You may save it as a PDF, email it, or upload it to the cloud.
With pdfFiller, it's always easy to work with documents.
Uncompromising security for your PDF editing and eSignature needs
Your private information is safe with pdfFiller. We employ end-to-end encryption, secure cloud storage, and advanced access control to protect your documents and maintain regulatory compliance.
How to fill out california river parkways grant
How to fill out california river parkways grant
01
Download the California River Parkway Grant Application form from the official website.
02
Carefully review the eligibility requirements and guidelines stated in the application form.
03
Gather all the required documents and information, such as project details, budget, timeline, and supporting materials.
04
Fill out the application form accurately and completely, providing all necessary information and supporting documentation.
05
Double-check the completed form for any errors or missing information.
06
Submit the application form before the deadline, either electronically or by mail as specified in the guidelines.
07
After submission, keep track of the application status and follow up if necessary.
08
If approved, adhere to the grant conditions and reporting requirements throughout the project implementation.
09
Maintain proper documentation and records of all project activities and expenses.
10
Lastly, upon completion of the project, submit the necessary reports and documentation as required by the grant agreement.
Who needs california river parkways grant?
01
Organizations and entities involved in the development, preservation, and enhancement of river parkways in California may need the California River Parkways Grant.
02
This may include local government agencies, non-profit organizations, community groups, and tribal entities.
03
Individuals or businesses seeking funding for river parkway-related projects in California may also be eligible to apply.
04
It is recommended to review the eligibility criteria and guidelines provided by the grant to determine if the specific project falls within the scope of the grant.
Fill
form
: Try Risk Free
For pdfFiller’s FAQs
Below is a list of the most common customer questions. If you can’t find an answer to your question, please don’t hesitate to reach out to us.
Where do I find california river parkways grant?
The premium version of pdfFiller gives you access to a huge library of fillable forms (more than 25 million fillable templates). You can download, fill out, print, and sign them all. State-specific california river parkways grant and other forms will be easy to find in the library. Find the template you need and use advanced editing tools to make it your own.
How do I edit california river parkways grant in Chrome?
Add pdfFiller Google Chrome Extension to your web browser to start editing california river parkways grant and other documents directly from a Google search page. The service allows you to make changes in your documents when viewing them in Chrome. Create fillable documents and edit existing PDFs from any internet-connected device with pdfFiller.
How do I complete california river parkways grant on an Android device?
Use the pdfFiller Android app to finish your california river parkways grant and other documents on your Android phone. The app has all the features you need to manage your documents, like editing content, eSigning, annotating, sharing files, and more. At any time, as long as there is an internet connection.
What is california river parkways grant?
The California River Parkways Grant is a funding opportunity provided by the state of California to support the development and enhancement of river parkways in the state.
Who is required to file california river parkways grant?
Non-profit organizations, government agencies, and other eligible entities are required to file the California River Parkways Grant.
How to fill out california river parkways grant?
To fill out the California River Parkways Grant, applicants must visit the official website of the grant program and complete the online application form.
What is the purpose of california river parkways grant?
The purpose of the California River Parkways Grant is to promote the conservation, restoration, and enjoyment of river parkways in California.
What information must be reported on california river parkways grant?
Applicants must report information related to their project proposal, budget, timeline, and how it aligns with the goals of the grant program.
Fill out your california river parkways grant online with pdfFiller!
pdfFiller is an end-to-end solution for managing, creating, and editing documents and forms in the cloud. Save time and hassle by preparing your tax forms online.
California River Parkways Grant is not the form you're looking for?Search for another form here.
Relevant keywords
Related Forms
If you believe that this page should be taken down, please follow our DMCA take down process
here
.
This form may include fields for payment information. Data entered in these fields is not covered by PCI DSS compliance.