Get the free AA - Design Alternative fillable
Show details
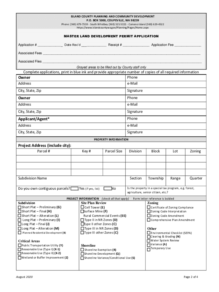
ISLAND COUNTY PLANNING & COMMUNITY DEVELOPMENT PHONE: (360× 6797339 from Camaro (360× 6294522 from S. Whitney (360× 321 5111 Faxes: (360× 6797306 P. O. Box 5000, Cookeville, WA 982395000 121 N
We are not affiliated with any brand or entity on this form
Get, Create, Make and Sign aa - design alternative
Edit your aa - design alternative form online
Type text, complete fillable fields, insert images, highlight or blackout data for discretion, add comments, and more.
Add your legally-binding signature
Draw or type your signature, upload a signature image, or capture it with your digital camera.
Share your form instantly
Email, fax, or share your aa - design alternative form via URL. You can also download, print, or export forms to your preferred cloud storage service.
Editing aa - design alternative online
To use the services of a skilled PDF editor, follow these steps:
1
Register the account. Begin by clicking Start Free Trial and create a profile if you are a new user.
2
Upload a file. Select Add New on your Dashboard and upload a file from your device or import it from the cloud, online, or internal mail. Then click Edit.
3
Edit aa - design alternative. Add and replace text, insert new objects, rearrange pages, add watermarks and page numbers, and more. Click Done when you are finished editing and go to the Documents tab to merge, split, lock or unlock the file.
4
Save your file. Select it in the list of your records. Then, move the cursor to the right toolbar and choose one of the available exporting methods: save it in multiple formats, download it as a PDF, send it by email, or store it in the cloud.
With pdfFiller, it's always easy to deal with documents.
Uncompromising security for your PDF editing and eSignature needs
Your private information is safe with pdfFiller. We employ end-to-end encryption, secure cloud storage, and advanced access control to protect your documents and maintain regulatory compliance.
How to fill out aa - design alternative
How to fill out aa - design alternative
01
To fill out aa - design alternative, follow these steps:
02
- Start by gathering all the required information about the existing design.
03
- Analyze the design to identify its strengths and weaknesses.
04
- Research and explore different design alternatives that could address the weaknesses and enhance the strengths.
05
- Consider factors such as cost, feasibility, user experience, and aesthetics when evaluating the alternatives.
06
- Create prototypes or mockups of the design alternatives.
07
- Test each alternative with users and gather feedback.
08
- Based on the feedback, refine the design alternatives.
09
- Present the design alternatives to stakeholders or decision-makers.
10
- Discuss and evaluate each alternative in terms of its potential impact, benefits, and drawbacks.
11
- Choose the most suitable design alternative based on the evaluation.
12
- Document the chosen design alternative with detailed specifications and guidelines for implementation.
Who needs aa - design alternative?
01
Any individual or organization involved in the design process can benefit from considering aa - design alternatives.
02
- Designers who want to improve existing designs and explore creative solutions.
03
- Companies or businesses looking to enhance their product or service offerings.
04
- Engineers and developers aiming to optimize a product's functionality and performance.
05
- Project managers seeking to make informed decisions about design directions.
06
- Clients or customers who want to evaluate different design options before making a final decision.
07
- Students or educators studying or teaching design principles and methodologies.
Fill
form
: Try Risk Free
For pdfFiller’s FAQs
Below is a list of the most common customer questions. If you can’t find an answer to your question, please don’t hesitate to reach out to us.
How do I modify my aa - design alternative in Gmail?
aa - design alternative and other documents can be changed, filled out, and signed right in your Gmail inbox. You can use pdfFiller's add-on to do this, as well as other things. When you go to Google Workspace, you can find pdfFiller for Gmail. You should use the time you spend dealing with your documents and eSignatures for more important things, like going to the gym or going to the dentist.
Can I create an eSignature for the aa - design alternative in Gmail?
Upload, type, or draw a signature in Gmail with the help of pdfFiller’s add-on. pdfFiller enables you to eSign your aa - design alternative and other documents right in your inbox. Register your account in order to save signed documents and your personal signatures.
How do I fill out the aa - design alternative form on my smartphone?
Use the pdfFiller mobile app to fill out and sign aa - design alternative on your phone or tablet. Visit our website to learn more about our mobile apps, how they work, and how to get started.
What is aa - design alternative?
aa - design alternative is a form or proposal that suggests an alternate design or approach.
Who is required to file aa - design alternative?
Individuals or companies involved in a design project may be required to file aa - design alternative.
How to fill out aa - design alternative?
To fill out aa - design alternative, one must provide detailed information about the proposed alternate design and how it meets the project requirements.
What is the purpose of aa - design alternative?
The purpose of aa - design alternative is to explore different design options and consider alternatives that may better meet the project goals.
What information must be reported on aa - design alternative?
Information such as the proposed alternate design, justification for the alternative, and how it aligns with project requirements must be reported on aa - design alternative.
Fill out your aa - design alternative online with pdfFiller!
pdfFiller is an end-to-end solution for managing, creating, and editing documents and forms in the cloud. Save time and hassle by preparing your tax forms online.
Aa - Design Alternative is not the form you're looking for?Search for another form here.
Relevant keywords
Related Forms
If you believe that this page should be taken down, please follow our DMCA take down process
here
.
This form may include fields for payment information. Data entered in these fields is not covered by PCI DSS compliance.