Get the free www.deq.ok.govsolid-wasteinspection-formsSolid Waste Inspection Forms - Oklahoma Dep...
Show details
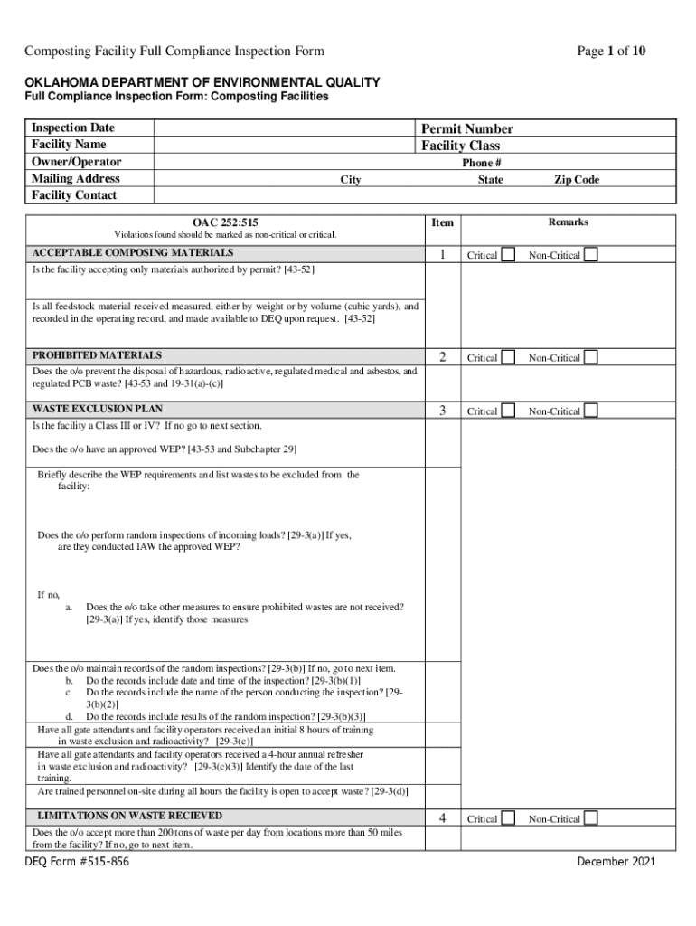
Composting Facility Full Compliance Inspection Form Page 1 of 10OKLAHOMA DEPARTMENT OF ENVIRONMENTAL QUALITY Full Compliance Inspection Form: Composting FacilitiesInspection Date Facility Name Owner/Operator
We are not affiliated with any brand or entity on this form
Get, Create, Make and Sign wwwdeqokgovsolid-wasteinspection-formssolid waste inspection forms
Edit your wwwdeqokgovsolid-wasteinspection-formssolid waste inspection forms form online
Type text, complete fillable fields, insert images, highlight or blackout data for discretion, add comments, and more.
Add your legally-binding signature
Draw or type your signature, upload a signature image, or capture it with your digital camera.
Share your form instantly
Email, fax, or share your wwwdeqokgovsolid-wasteinspection-formssolid waste inspection forms form via URL. You can also download, print, or export forms to your preferred cloud storage service.
Editing wwwdeqokgovsolid-wasteinspection-formssolid waste inspection forms online
To use the services of a skilled PDF editor, follow these steps:
1
Log in. Click Start Free Trial and create a profile if necessary.
2
Simply add a document. Select Add New from your Dashboard and import a file into the system by uploading it from your device or importing it via the cloud, online, or internal mail. Then click Begin editing.
3
Edit wwwdeqokgovsolid-wasteinspection-formssolid waste inspection forms. Replace text, adding objects, rearranging pages, and more. Then select the Documents tab to combine, divide, lock or unlock the file.
4
Get your file. Select your file from the documents list and pick your export method. You may save it as a PDF, email it, or upload it to the cloud.
pdfFiller makes dealing with documents a breeze. Create an account to find out!
Uncompromising security for your PDF editing and eSignature needs
Your private information is safe with pdfFiller. We employ end-to-end encryption, secure cloud storage, and advanced access control to protect your documents and maintain regulatory compliance.
How to fill out wwwdeqokgovsolid-wasteinspection-formssolid waste inspection forms
How to fill out wwwdeqokgovsolid-wasteinspection-formssolid waste inspection forms
01
To fill out the wwwdeqokgovsolid-wasteinspection-formssolid waste inspection forms, follow the steps below:
02
Open the website www.deq.ok.gov/solid-waste/inspection-forms/
03
Scroll down to find the 'Solid Waste Inspection Forms' section.
04
Click on the desired form that you want to fill out.
05
Read the instructions carefully and gather all the required information.
06
Start filling out the form by providing the necessary details in each field.
07
Double-check your entries to ensure accuracy.
08
Once you have completed the form, review it again to ensure you haven't missed any information.
09
Finally, submit the form online or print it out and mail it to the respective authority as instructed.
Who needs wwwdeqokgovsolid-wasteinspection-formssolid waste inspection forms?
01
www.deq.ok.gov/solid-waste/inspection-formssolid waste inspection forms are needed by individuals or organizations involved in solid waste management or disposal. This may include waste management companies, recycling centers, landfill operators, and government agencies responsible for overseeing solid waste regulations. These forms serve as a means of documenting and reporting various aspects of solid waste management activities, such as inspections, waste disposal monitoring, and compliance with environmental regulations.
Fill
form
: Try Risk Free
For pdfFiller’s FAQs
Below is a list of the most common customer questions. If you can’t find an answer to your question, please don’t hesitate to reach out to us.
How do I complete wwwdeqokgovsolid-wasteinspection-formssolid waste inspection forms online?
Completing and signing wwwdeqokgovsolid-wasteinspection-formssolid waste inspection forms online is easy with pdfFiller. It enables you to edit original PDF content, highlight, blackout, erase and type text anywhere on a page, legally eSign your form, and much more. Create your free account and manage professional documents on the web.
How can I edit wwwdeqokgovsolid-wasteinspection-formssolid waste inspection forms on a smartphone?
The easiest way to edit documents on a mobile device is using pdfFiller’s mobile-native apps for iOS and Android. You can download those from the Apple Store and Google Play, respectively. You can learn more about the apps here. Install and log in to the application to start editing wwwdeqokgovsolid-wasteinspection-formssolid waste inspection forms.
How do I fill out the wwwdeqokgovsolid-wasteinspection-formssolid waste inspection forms form on my smartphone?
Use the pdfFiller mobile app to complete and sign wwwdeqokgovsolid-wasteinspection-formssolid waste inspection forms on your mobile device. Visit our web page (https://edit-pdf-ios-android.pdffiller.com/) to learn more about our mobile applications, the capabilities you’ll have access to, and the steps to take to get up and running.
What is wwwdeqokgovsolid-wasteinspection-formssolid waste inspection forms?
The www.deq.ok.gov solid waste inspection forms are used for reporting and monitoring solid waste activities within the state.
Who is required to file wwwdeqokgovsolid-wasteinspection-formssolid waste inspection forms?
Any individual or entity involved in solid waste activities within the state is required to file the inspection forms.
How to fill out wwwdeqokgovsolid-wasteinspection-formssolid waste inspection forms?
The forms can be filled out online on the official DEQ website or submitted by mail to the designated address.
What is the purpose of wwwdeqokgovsolid-wasteinspection-formssolid waste inspection forms?
The purpose of the inspection forms is to monitor and regulate solid waste activities to ensure compliance with state regulations.
What information must be reported on wwwdeqokgovsolid-wasteinspection-formssolid waste inspection forms?
The forms typically require information such as the types of waste generated, disposal methods, and recycling practices.
Fill out your wwwdeqokgovsolid-wasteinspection-formssolid waste inspection forms online with pdfFiller!
pdfFiller is an end-to-end solution for managing, creating, and editing documents and forms in the cloud. Save time and hassle by preparing your tax forms online.
Wwwdeqokgovsolid-Wasteinspection-Formssolid Waste Inspection Forms is not the form you're looking for?Search for another form here.
Relevant keywords
Related Forms
If you believe that this page should be taken down, please follow our DMCA take down process
here
.
This form may include fields for payment information. Data entered in these fields is not covered by PCI DSS compliance.