Get the free Construction and Permits - Village of Pleasant Prairie
Show details
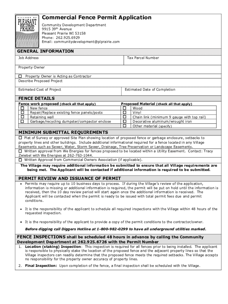
Commercial Fence Permit Application
Community Development Department
9915 39th Avenue
Pleasant Prairie WI 53158
Phone: 262.925.6929
Email: communitydevelopment@plprairie.comGENERAL INFORMATION
Job
We are not affiliated with any brand or entity on this form
Get, Create, Make and Sign construction and permits
Edit your construction and permits form online
Type text, complete fillable fields, insert images, highlight or blackout data for discretion, add comments, and more.
Add your legally-binding signature
Draw or type your signature, upload a signature image, or capture it with your digital camera.
Share your form instantly
Email, fax, or share your construction and permits form via URL. You can also download, print, or export forms to your preferred cloud storage service.
How to edit construction and permits online
To use our professional PDF editor, follow these steps:
1
Log in. Click Start Free Trial and create a profile if necessary.
2
Prepare a file. Use the Add New button. Then upload your file to the system from your device, importing it from internal mail, the cloud, or by adding its URL.
3
Edit construction and permits. Text may be added and replaced, new objects can be included, pages can be rearranged, watermarks and page numbers can be added, and so on. When you're done editing, click Done and then go to the Documents tab to combine, divide, lock, or unlock the file.
4
Save your file. Select it in the list of your records. Then, move the cursor to the right toolbar and choose one of the available exporting methods: save it in multiple formats, download it as a PDF, send it by email, or store it in the cloud.
Uncompromising security for your PDF editing and eSignature needs
Your private information is safe with pdfFiller. We employ end-to-end encryption, secure cloud storage, and advanced access control to protect your documents and maintain regulatory compliance.
How to fill out construction and permits
How to fill out construction and permits
01
Determine what type of construction or renovation project you plan to do.
02
Check with your local government or municipality to find out what permits are required for your specific project.
03
Gather all necessary documentation such as building plans, property surveys, and proof of insurance.
04
Fill out the permit application form completely and accurately.
05
Submit the application along with any required fees to the appropriate department for review.
06
Wait for approval before starting any construction work.
Who needs construction and permits?
01
Anyone planning to build, renovate, or make structural changes to a property typically needs to obtain construction and permits.
02
This includes homeowners, contractors, developers, and landlords.
Fill
form
: Try Risk Free
For pdfFiller’s FAQs
Below is a list of the most common customer questions. If you can’t find an answer to your question, please don’t hesitate to reach out to us.
How can I manage my construction and permits directly from Gmail?
It's easy to use pdfFiller's Gmail add-on to make and edit your construction and permits and any other documents you get right in your email. You can also eSign them. Take a look at the Google Workspace Marketplace and get pdfFiller for Gmail. Get rid of the time-consuming steps and easily manage your documents and eSignatures with the help of an app.
How do I complete construction and permits online?
pdfFiller has made it easy to fill out and sign construction and permits. You can use the solution to change and move PDF content, add fields that can be filled in, and sign the document electronically. Start a free trial of pdfFiller, the best tool for editing and filling in documents.
How do I edit construction and permits straight from my smartphone?
The pdfFiller mobile applications for iOS and Android are the easiest way to edit documents on the go. You may get them from the Apple Store and Google Play. More info about the applications here. Install and log in to edit construction and permits.
What is construction and permits?
Construction permits are legal authorizations required before starting construction or remodeling to ensure compliance with local building codes and safety regulations.
Who is required to file construction and permits?
Property owners or contractors are typically required to file for construction permits.
How to fill out construction and permits?
Construction permits can typically be filled out online or in person at the local building department. The application will require details about the project, such as the scope of work, materials used, and contractor information.
What is the purpose of construction and permits?
The purpose of construction permits is to ensure that construction projects comply with building codes, zoning regulations, and safety standards to protect the health and welfare of the public.
What information must be reported on construction and permits?
Information such as project details, property owner information, contractor licenses, building plans, and site inspections may need to be reported on construction permits.
Fill out your construction and permits online with pdfFiller!
pdfFiller is an end-to-end solution for managing, creating, and editing documents and forms in the cloud. Save time and hassle by preparing your tax forms online.
Construction And Permits is not the form you're looking for?Search for another form here.
Relevant keywords
Related Forms
If you believe that this page should be taken down, please follow our DMCA take down process
here
.
This form may include fields for payment information. Data entered in these fields is not covered by PCI DSS compliance.