Get the free Conway city staff says yes, but Community Appearance Board ...
Show details
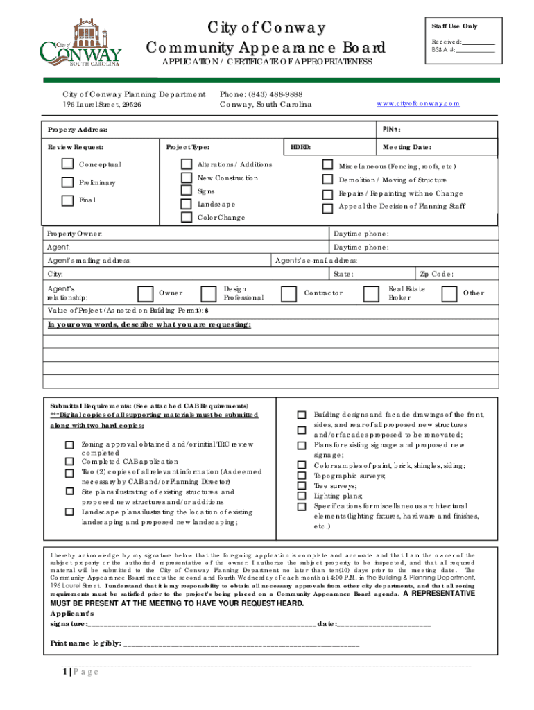
City of Conway Community Appearance BoardStaff Use Only Received: BSA #:APPLICATION / CERTIFICATE OF APPROPRIATENESSCity of Conway Planning Department 196 Laurel Street, 29526Phone: (843) 4889888
We are not affiliated with any brand or entity on this form
Get, Create, Make and Sign conway city staff says
Edit your conway city staff says form online
Type text, complete fillable fields, insert images, highlight or blackout data for discretion, add comments, and more.
Add your legally-binding signature
Draw or type your signature, upload a signature image, or capture it with your digital camera.
Share your form instantly
Email, fax, or share your conway city staff says form via URL. You can also download, print, or export forms to your preferred cloud storage service.
How to edit conway city staff says online
In order to make advantage of the professional PDF editor, follow these steps below:
1
Create an account. Begin by choosing Start Free Trial and, if you are a new user, establish a profile.
2
Prepare a file. Use the Add New button. Then upload your file to the system from your device, importing it from internal mail, the cloud, or by adding its URL.
3
Edit conway city staff says. Rearrange and rotate pages, insert new and alter existing texts, add new objects, and take advantage of other helpful tools. Click Done to apply changes and return to your Dashboard. Go to the Documents tab to access merging, splitting, locking, or unlocking functions.
4
Save your file. Select it from your records list. Then, click the right toolbar and select one of the various exporting options: save in numerous formats, download as PDF, email, or cloud.
Dealing with documents is simple using pdfFiller. Now is the time to try it!
Uncompromising security for your PDF editing and eSignature needs
Your private information is safe with pdfFiller. We employ end-to-end encryption, secure cloud storage, and advanced access control to protect your documents and maintain regulatory compliance.
How to fill out conway city staff says
How to fill out conway city staff says
01
Begin by gathering all necessary information and documents required to fill out the Conway city staff says form.
02
Carefully read through the instructions provided on the form to ensure you understand the information needed.
03
Fill out all the sections of the form accurately and completely, making sure to provide all requested information.
04
Double-check your entries for any errors or missing information before submitting the form.
05
Once you have completed the form, submit it to the appropriate department or office as instructed.
Who needs conway city staff says?
01
Anyone looking to receive information or assistance from the Conway city staff may need to fill out the Conway city staff says form.
Fill
form
: Try Risk Free
For pdfFiller’s FAQs
Below is a list of the most common customer questions. If you can’t find an answer to your question, please don’t hesitate to reach out to us.
How can I get conway city staff says?
The premium pdfFiller subscription gives you access to over 25M fillable templates that you can download, fill out, print, and sign. The library has state-specific conway city staff says and other forms. Find the template you need and change it using powerful tools.
How can I edit conway city staff says on a smartphone?
You can easily do so with pdfFiller's apps for iOS and Android devices, which can be found at the Apple Store and the Google Play Store, respectively. You can use them to fill out PDFs. We have a website where you can get the app, but you can also get it there. When you install the app, log in, and start editing conway city staff says, you can start right away.
How can I fill out conway city staff says on an iOS device?
Make sure you get and install the pdfFiller iOS app. Next, open the app and log in or set up an account to use all of the solution's editing tools. If you want to open your conway city staff says, you can upload it from your device or cloud storage, or you can type the document's URL into the box on the right. After you fill in all of the required fields in the document and eSign it, if that is required, you can save or share it with other people.
What is conway city staff says?
The Conway city staff provides information and assistance to residents and businesses in Conway, Arkansas.
Who is required to file conway city staff says?
All residents and businesses in Conway may be required to file city staff reports.
How to fill out conway city staff says?
To fill out city staff reports, residents and businesses can visit the Conway city website or contact the city staff for assistance.
What is the purpose of conway city staff says?
The purpose of city staff reports is to ensure compliance with city regulations and to provide necessary information for city planning and services.
What information must be reported on conway city staff says?
Residents and businesses may be required to report income, expenses, property information, and other relevant details on city staff reports.
Fill out your conway city staff says online with pdfFiller!
pdfFiller is an end-to-end solution for managing, creating, and editing documents and forms in the cloud. Save time and hassle by preparing your tax forms online.
Conway City Staff Says is not the form you're looking for?Search for another form here.
Relevant keywords
Related Forms
If you believe that this page should be taken down, please follow our DMCA take down process
here
.
This form may include fields for payment information. Data entered in these fields is not covered by PCI DSS compliance.