Get the free f-2023-0107.pdf - New York State Department of State - NY.gov - dos ny
Show details
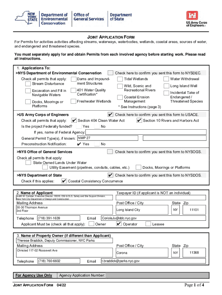
February 3, 2023, New York State Department of State Office of Planning and Development Attn: Consistency Review Unit One Commerce Parasite 1010 99 Washington Avenue Albany, New York 12231 RE:Capital
We are not affiliated with any brand or entity on this form
Get, Create, Make and Sign f-2023-0107pdf - new york
Edit your f-2023-0107pdf - new york form online
Type text, complete fillable fields, insert images, highlight or blackout data for discretion, add comments, and more.
Add your legally-binding signature
Draw or type your signature, upload a signature image, or capture it with your digital camera.
Share your form instantly
Email, fax, or share your f-2023-0107pdf - new york form via URL. You can also download, print, or export forms to your preferred cloud storage service.
Editing f-2023-0107pdf - new york online
To use the services of a skilled PDF editor, follow these steps:
1
Log in to account. Click on Start Free Trial and sign up a profile if you don't have one.
2
Prepare a file. Use the Add New button. Then upload your file to the system from your device, importing it from internal mail, the cloud, or by adding its URL.
3
Edit f-2023-0107pdf - new york. Rearrange and rotate pages, add and edit text, and use additional tools. To save changes and return to your Dashboard, click Done. The Documents tab allows you to merge, divide, lock, or unlock files.
4
Get your file. Select your file from the documents list and pick your export method. You may save it as a PDF, email it, or upload it to the cloud.
It's easier to work with documents with pdfFiller than you could have believed. You may try it out for yourself by signing up for an account.
Uncompromising security for your PDF editing and eSignature needs
Your private information is safe with pdfFiller. We employ end-to-end encryption, secure cloud storage, and advanced access control to protect your documents and maintain regulatory compliance.
How to fill out f-2023-0107pdf - new york
How to fill out f-2023-0107pdf - new york
01
Obtain a copy of the f-2023-0107pdf form from the official website of the state of New York.
02
Read the instructions carefully before filling out the form to ensure accuracy.
03
Provide all the required information on the form, including personal details, dates, and signatures.
04
Double-check the form for any errors or omissions before submitting it.
05
Submit the completed form as per the guidelines provided.
Who needs f-2023-0107pdf - new york?
01
Individuals residing in New York who are required to provide specific information as indicated on the f-2023-0107pdf form.
Fill
form
: Try Risk Free
For pdfFiller’s FAQs
Below is a list of the most common customer questions. If you can’t find an answer to your question, please don’t hesitate to reach out to us.
How can I get f-2023-0107pdf - new york?
It’s easy with pdfFiller, a comprehensive online solution for professional document management. Access our extensive library of online forms (over 25M fillable forms are available) and locate the f-2023-0107pdf - new york in a matter of seconds. Open it right away and start customizing it using advanced editing features.
How can I fill out f-2023-0107pdf - new york on an iOS device?
Install the pdfFiller app on your iOS device to fill out papers. If you have a subscription to the service, create an account or log in to an existing one. After completing the registration process, upload your f-2023-0107pdf - new york. You may now use pdfFiller's advanced features, such as adding fillable fields and eSigning documents, and accessing them from any device, wherever you are.
How do I complete f-2023-0107pdf - new york on an Android device?
Use the pdfFiller mobile app and complete your f-2023-0107pdf - new york and other documents on your Android device. The app provides you with all essential document management features, such as editing content, eSigning, annotating, sharing files, etc. You will have access to your documents at any time, as long as there is an internet connection.
What is f-0107pdf - new york?
The f-0107pdf - new york is a tax form used in New York to report certain financial information.
Who is required to file f-0107pdf - new york?
Individuals or businesses meeting specific criteria set by the New York tax authorities are required to file the f-0107pdf form.
How to fill out f-0107pdf - new york?
The f-0107pdf form can be filled out manually or electronically, following the instructions provided by the New York tax authorities.
What is the purpose of f-0107pdf - new york?
The f-0107pdf form is used to report financial information to the New York tax authorities for the purpose of tax compliance.
What information must be reported on f-0107pdf - new york?
The f-0107pdf form may require reporting of income, expenses, deductions, credits, and other relevant financial details.
Fill out your f-2023-0107pdf - new york online with pdfFiller!
pdfFiller is an end-to-end solution for managing, creating, and editing documents and forms in the cloud. Save time and hassle by preparing your tax forms online.
F-2023-0107pdf - New York is not the form you're looking for?Search for another form here.
Relevant keywords
Related Forms
If you believe that this page should be taken down, please follow our DMCA take down process
here
.
This form may include fields for payment information. Data entered in these fields is not covered by PCI DSS compliance.