Form preview

Get the free WS-058 - 422 W Washington Blvd - Morrison House - 92-00388

Get Form
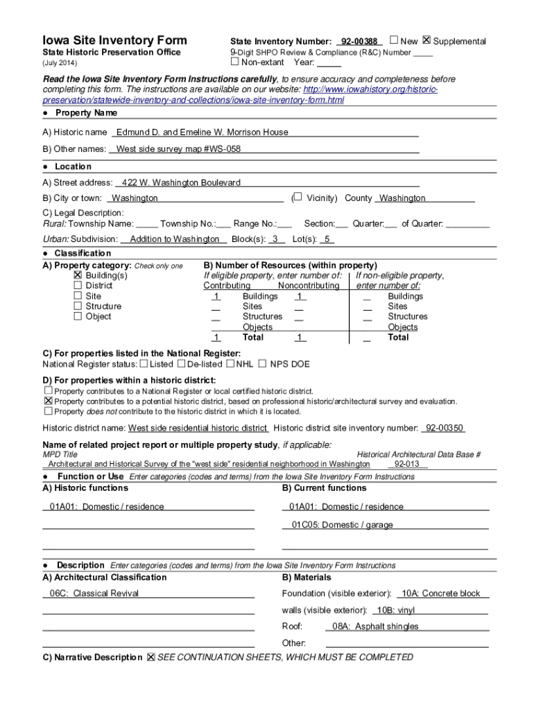
Iowa Site Inventory Formulate Inventory Number: 9200388 New Supplemental 9Digit SHOO Review & Compliance (R&C) Number Nonextant Year: State Historic Preservation Office (July 2014)Read the Iowa Site
We are not affiliated with any brand or entity on this form

Get, Create, Make and Sign ws-058 - 422 w

Edit
Edit your ws-058 - 422 w form online
Type text, complete fillable fields, insert images, highlight or blackout data for discretion, add comments, and more.
Add
Add your legally-binding signature
Draw or type your signature, upload a signature image, or capture it with your digital camera.
Share
Share your form instantly
Email, fax, or share your ws-058 - 422 w form via URL. You can also download, print, or export forms to your preferred cloud storage service.

How to edit ws-058 - 422 w online

9.5
Ease of Setup
pdfFiller User Ratings on G2
9.0
Ease of Use
pdfFiller User Ratings on G2
Follow the guidelines below to use a professional PDF editor:
1
Create an account. Begin by choosing Start Free Trial and, if you are a new user, establish a profile.
2
Prepare a file. Use the Add New button. Then upload your file to the system from your device, importing it from internal mail, the cloud, or by adding its URL.
3
Edit ws-058 - 422 w. Rearrange and rotate pages, add new and changed texts, add new objects, and use other useful tools. When you're done, click Done. You can use the Documents tab to merge, split, lock, or unlock your files.
4
Get your file. Select the name of your file in the docs list and choose your preferred exporting method. You can download it as a PDF, save it in another format, send it by email, or transfer it to the cloud.
It's easier to work with documents with pdfFiller than you can have ever thought. You may try it out for yourself by signing up for an account.

Uncompromising security for your PDF editing and eSignature needs

Your private information is safe with pdfFiller. We employ end-to-end encryption, secure cloud storage, and advanced access control to protect your documents and maintain regulatory compliance.
GDPR
AICPA SOC 2
PCI
HIPAA
CCPA
FDA

How to fill out ws-058 - 422 w

Illustration

How to fill out ws-058 - 422 w

01
Gather all the necessary information needed to complete form WS-058 - 422 w.
02
Review the instructions provided with the form to understand the requirements.
03
Fill out the form accurately, providing all requested details.
04
Double-check the information provided to ensure it is correct and complete.
05
Submit the completed form according to the specified instructions.

Who needs ws-058 - 422 w?

01
Individuals or organizations who need to report certain transactions or information to the relevant authorities.
02
It could be required for tax purposes, legal compliance, or any other regulatory requirement.
Fill form : Try Risk Free
Users Most Likely To Recommend - Summer 2025
Grid Leader in Small-Business - Summer 2025
High Performer - Summer 2025
Regional Leader - Summer 2025
Easiest To Do Business With - Summer 2025
Best Meets Requirements- Summer 2025
Rate the form
4.3
Satisfied
20 Votes

For pdfFiller’s FAQs

Below is a list of the most common customer questions. If you can’t find an answer to your question, please don’t hesitate to reach out to us.

ws-058 - 422 w can be edited, filled out, and signed with the pdfFiller Google Chrome Extension. You can open the editor right from a Google search page with just one click. Fillable documents can be done on any web-connected device without leaving Chrome.
Create, modify, and share ws-058 - 422 w using the pdfFiller iOS app. Easy to install from the Apple Store. You may sign up for a free trial and then purchase a membership.
Use the pdfFiller Android app to finish your ws-058 - 422 w and other documents on your Android phone. The app has all the features you need to manage your documents, like editing content, eSigning, annotating, sharing files, and more. At any time, as long as there is an internet connection.
ws-058 - 422 w is a specific form used for reporting income to the IRS.
Individuals and businesses that have received income during the tax year must file ws-058 - 422 w.
To fill out ws-058 - 422 w, you need to provide information such as your name, address, Social Security number, and the amount of income received.
The purpose of ws-058 - 422 w is to report income to the IRS for tax purposes.
Information such as income received, name, address, and Social Security number must be reported on ws-058 - 422 w.
Fill out your ws-058 - 422 w online with pdfFiller!

pdfFiller is an end-to-end solution for managing, creating, and editing documents and forms in the cloud. Save time and hassle by preparing your tax forms online.

Get started now
Form preview
If you believe that this page should be taken down, please follow our DMCA take down process here .
This form may include fields for payment information. Data entered in these fields is not covered by PCI DSS compliance.