Get the free CHECKLIST / FORMS & PERMIT APPLICATIONS
Show details
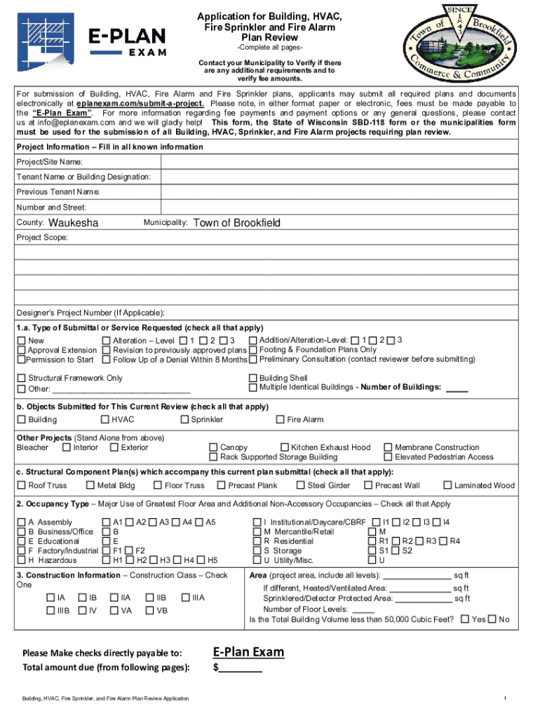
Application for Building, HVAC, Fire Sprinkler and Fire Alarm Plan Review Complete all pagesContact your Municipality to Verify if there are any additional requirements and to verify fee amounts.For submission of Building, HVAC, Fire Alarm and Fire Sprinkler plans, applicants may submit all required plans and documents electronically at eplanexam.com/submitaproject. Please note, in either format paper or electronic, fees must be made payable to the EPlan Exam. For more information
We are not affiliated with any brand or entity on this form
Get, Create, Make and Sign checklist forms amp permit
Edit your checklist forms amp permit form online
Type text, complete fillable fields, insert images, highlight or blackout data for discretion, add comments, and more.
Add your legally-binding signature
Draw or type your signature, upload a signature image, or capture it with your digital camera.
Share your form instantly
Email, fax, or share your checklist forms amp permit form via URL. You can also download, print, or export forms to your preferred cloud storage service.
How to edit checklist forms amp permit online
Follow the steps below to use a professional PDF editor:
1
Create an account. Begin by choosing Start Free Trial and, if you are a new user, establish a profile.
2
Upload a file. Select Add New on your Dashboard and upload a file from your device or import it from the cloud, online, or internal mail. Then click Edit.
3
Edit checklist forms amp permit. Text may be added and replaced, new objects can be included, pages can be rearranged, watermarks and page numbers can be added, and so on. When you're done editing, click Done and then go to the Documents tab to combine, divide, lock, or unlock the file.
4
Get your file. Select your file from the documents list and pick your export method. You may save it as a PDF, email it, or upload it to the cloud.
pdfFiller makes working with documents easier than you could ever imagine. Register for an account and see for yourself!
Uncompromising security for your PDF editing and eSignature needs
Your private information is safe with pdfFiller. We employ end-to-end encryption, secure cloud storage, and advanced access control to protect your documents and maintain regulatory compliance.
How to fill out checklist forms amp permit
How to fill out checklist forms amp permit
01
Gather necessary information: Identify the details required for the checklist form and permit.
02
Read instructions: Carefully read any guidelines provided with the form to understand what is needed.
03
Complete the checklist: Fill out each item on the checklist accurately and thoroughly.
04
Attach supporting documents: Include any required documentation or evidence as specified in the form.
05
Review the form: Double-check all entries for accuracy and completeness before submission.
06
Submit the form: Follow the specified submission procedure, whether online or in person.
Who needs checklist forms amp permit?
01
Individuals applying for permits for construction or renovation projects.
02
Businesses seeking licenses or operational permits.
03
Event organizers needing permits for public gatherings or activities.
04
Property owners needing permits for land use or modifications.
Fill
form
: Try Risk Free
For pdfFiller’s FAQs
Below is a list of the most common customer questions. If you can’t find an answer to your question, please don’t hesitate to reach out to us.
How do I edit checklist forms amp permit online?
pdfFiller allows you to edit not only the content of your files, but also the quantity and sequence of the pages. Upload your checklist forms amp permit to the editor and make adjustments in a matter of seconds. Text in PDFs may be blacked out, typed in, and erased using the editor. You may also include photos, sticky notes, and text boxes, among other things.
Can I create an electronic signature for the checklist forms amp permit in Chrome?
Yes. By adding the solution to your Chrome browser, you can use pdfFiller to eSign documents and enjoy all of the features of the PDF editor in one place. Use the extension to create a legally-binding eSignature by drawing it, typing it, or uploading a picture of your handwritten signature. Whatever you choose, you will be able to eSign your checklist forms amp permit in seconds.
Can I edit checklist forms amp permit on an iOS device?
Create, modify, and share checklist forms amp permit using the pdfFiller iOS app. Easy to install from the Apple Store. You may sign up for a free trial and then purchase a membership.
What is checklist forms amp permit?
Checklist forms and permits are documents used to ensure compliance with regulations or standards for various activities or projects, often requiring evaluation of specific criteria.
Who is required to file checklist forms amp permit?
Individuals or organizations engaging in activities subject to regulation, such as construction projects, environmental assessments, or business operations, typically need to file checklist forms and permits.
How to fill out checklist forms amp permit?
To fill out checklist forms and permits, you should carefully read the instructions, provide accurate information regarding your project or activity, and ensure all required fields are completed before submission.
What is the purpose of checklist forms amp permit?
The purpose of checklist forms and permits is to facilitate the monitoring of compliance with legal requirements, ensure safety and environmental protection, and streamline the approval process for projects.
What information must be reported on checklist forms amp permit?
Information typically required includes project details, location, responsible parties, compliance with applicable laws, and any potential environmental impacts.
Fill out your checklist forms amp permit online with pdfFiller!
pdfFiller is an end-to-end solution for managing, creating, and editing documents and forms in the cloud. Save time and hassle by preparing your tax forms online.
Checklist Forms Amp Permit is not the form you're looking for?Search for another form here.
If you believe that this page should be taken down, please follow our DMCA take down process
here
.
This form may include fields for payment information. Data entered in these fields is not covered by PCI DSS compliance.