Get the free Construction Employee Field Interview Report Form
Show details
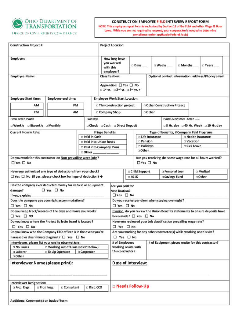
This employee report form is used to gather information related to compliance with federal wage and hour laws for construction employees.
We are not affiliated with any brand or entity on this form
Get, Create, Make and Sign construction employee field interview
Edit your construction employee field interview form online
Type text, complete fillable fields, insert images, highlight or blackout data for discretion, add comments, and more.
Add your legally-binding signature
Draw or type your signature, upload a signature image, or capture it with your digital camera.
Share your form instantly
Email, fax, or share your construction employee field interview form via URL. You can also download, print, or export forms to your preferred cloud storage service.
Editing construction employee field interview online
Follow the guidelines below to take advantage of the professional PDF editor:
1
Log in to account. Start Free Trial and sign up a profile if you don't have one.
2
Prepare a file. Use the Add New button to start a new project. Then, using your device, upload your file to the system by importing it from internal mail, the cloud, or adding its URL.
3
Edit construction employee field interview. Add and replace text, insert new objects, rearrange pages, add watermarks and page numbers, and more. Click Done when you are finished editing and go to the Documents tab to merge, split, lock or unlock the file.
4
Save your file. Select it from your list of records. Then, move your cursor to the right toolbar and choose one of the exporting options. You can save it in multiple formats, download it as a PDF, send it by email, or store it in the cloud, among other things.
Dealing with documents is always simple with pdfFiller.
Uncompromising security for your PDF editing and eSignature needs
Your private information is safe with pdfFiller. We employ end-to-end encryption, secure cloud storage, and advanced access control to protect your documents and maintain regulatory compliance.
How to fill out construction employee field interview
How to fill out construction employee field interview
01
Gather necessary documentation: Have identification, resume, certifications, and other relevant papers ready.
02
Prepare for specific questions: Anticipate common interview questions related to construction roles and safety protocols.
03
Review your work experience: Be ready to discuss your past jobs, tasks, and responsibilities in detail.
04
Dress appropriately: Wear professional work attire or safety gear relevant to the construction industry.
05
Show up on time: Arrive early to demonstrate punctuality and reliability.
06
Demonstrate skills: Be ready to showcase relevant skills or do a practical skills test if required.
07
Ask questions: Prepare thoughtful questions about the role, company culture, and expectations.
08
Follow up: After the interview, send a thank you note or email to express appreciation for the opportunity.
Who needs construction employee field interview?
01
Construction companies seeking to fill employee positions.
02
Hiring managers looking for skilled laborers, foremen, or specialized tradespeople.
03
Recruiters and staffing agencies focused on the construction industry.
04
Construction project managers needing to evaluate potential candidates.
Fill
form
: Try Risk Free
For pdfFiller’s FAQs
Below is a list of the most common customer questions. If you can’t find an answer to your question, please don’t hesitate to reach out to us.
How can I modify construction employee field interview without leaving Google Drive?
It is possible to significantly enhance your document management and form preparation by combining pdfFiller with Google Docs. This will allow you to generate papers, amend them, and sign them straight from your Google Drive. Use the add-on to convert your construction employee field interview into a dynamic fillable form that can be managed and signed using any internet-connected device.
How do I make changes in construction employee field interview?
The editing procedure is simple with pdfFiller. Open your construction employee field interview in the editor. You may also add photos, draw arrows and lines, insert sticky notes and text boxes, and more.
How do I make edits in construction employee field interview without leaving Chrome?
Install the pdfFiller Chrome Extension to modify, fill out, and eSign your construction employee field interview, which you can access right from a Google search page. Fillable documents without leaving Chrome on any internet-connected device.
What is construction employee field interview?
A construction employee field interview is a process used to gather information about workers on a construction site, ensuring compliance with labor laws and safety regulations.
Who is required to file construction employee field interview?
Employers and contractors responsible for construction projects are required to file construction employee field interviews to ensure all workers are documented and comply with legal requirements.
How to fill out construction employee field interview?
To fill out a construction employee field interview, gather the necessary worker information such as name, job title, hours worked, and any certifications, and complete the designated form accurately.
What is the purpose of construction employee field interview?
The purpose of a construction employee field interview is to verify employee information, ensure compliance with safety regulations, and document worker eligibility on job sites.
What information must be reported on construction employee field interview?
Information that must be reported includes the employee's name, position, work hours, training certifications, and any incidents or violations that may have occurred.
Fill out your construction employee field interview online with pdfFiller!
pdfFiller is an end-to-end solution for managing, creating, and editing documents and forms in the cloud. Save time and hassle by preparing your tax forms online.
Construction Employee Field Interview is not the form you're looking for?Search for another form here.
Relevant keywords
Related Forms
If you believe that this page should be taken down, please follow our DMCA take down process
here
.
This form may include fields for payment information. Data entered in these fields is not covered by PCI DSS compliance.