Form preview

Get the free California DMV ELT Program Application

Get Form
We are not affiliated with any brand or entity on this form
Illustration
Fill out
Complete the form online in a simple drag-and-drop editor.
Illustration
eSign
Add your legally binding signature or send the form for signing.
Illustration
Share
Share the form via a link, letting anyone fill it out from any device.
Illustration
Export
Download, print, email, or move the form to your cloud storage.

Why pdfFiller is the best tool for your documents and forms

GDPR
AICPA SOC 2
PCI
HIPAA
CCPA
FDA

End-to-end document management

From editing and signing to collaboration and tracking, pdfFiller has everything you need to get your documents done quickly and efficiently.

Accessible from anywhere

pdfFiller is fully cloud-based. This means you can edit, sign, and share documents from anywhere using your computer, smartphone, or tablet.

Secure and compliant

pdfFiller lets you securely manage documents following global laws like ESIGN, CCPA, and GDPR. It's also HIPAA and SOC 2 compliant.
Form preview

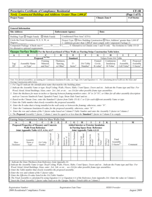
What is CA DMV ELT Application

The California DMV ELT Program Application is a government form used by financial institutions to apply for participation in the Electronic Lien and Title (ELT) program.

pdfFiller scores top ratings on review platforms

Users Most Likely To Recommend - Summer 2025
Grid Leader in Small-Business - Summer 2025
High Performer - Summer 2025
Regional Leader - Summer 2025
Show more Show less
Fill fillable CA DMV ELT Application form: Try Risk Free
Rate free CA DMV ELT Application form
4.4
satisfied
47 votes

Who needs CA DMV ELT Application?

Explore how professionals across industries use pdfFiller.
Picture
CA DMV ELT Application is needed by:
  • Financial institutions looking to participate in the ELT program
  • Authorized representatives from businesses required to sign the DMV contract
  • Companies applying for or managing electronic liens
  • Businesses needing a valid DMV contract for vehicle titles
  • Compliance officers within financial organizations

Comprehensive Guide to CA DMV ELT Application

What is the California DMV ELT Program Application?

The California DMV ELT Program Application is designed for financial institutions seeking to participate in the Electronic Lien and Title (ELT) program. This application facilitates efficient title management and offers essential compliance measures. To submit this application, it must be signed by an authorized representative, ensuring accountability and security throughout the process.
The ELT program improves the efficiency of lien and title processing, making it a valuable asset for financial institutions operating in California.

Purpose and Benefits of the California DMV ELT Program Application

This application is crucial for financial institutions as it streamlines several processes related to title management. Participating in the ELT program provides numerous benefits, including:
  • Increased efficiency in processing titles
  • Enhanced legal compliance and security measures
  • Improvement in customer service and overall satisfaction
By utilizing this application, institutions can ensure they are compliant with state regulations while enhancing their operational capabilities.

Who Needs the California DMV ELT Program Application?

The California DMV ELT Program Application is necessary for specific financial institutions that operate within California. Eligible institutions include banks, credit unions, and other lending entities. Additionally, only authorized representatives can sign the application, ensuring that the involved parties are legitimate and recognized.
Businesses operating in California that manage vehicle titles will find this application essential for maintaining compliance and efficient operations.

Eligibility Criteria for the California DMV ELT Program Application

To qualify for the California DMV ELT Program Application, financial institutions must meet specific criteria, including:
  • Requirements for enrollment in the ELT program
  • Provision of necessary documentation, such as business licenses or charters
  • Considerations surrounding business operations in California
Institutions should ensure they have all required materials ready to facilitate a smooth application process.

How to Fill Out the California DMV ELT Program Application Online (Step-by-Step)

Completing the California DMV ELT Program Application online is a straightforward process. The following steps outline how to effectively fill out the form using pdfFiller:
  • Access the online application form on pdfFiller.
  • Fill in all required fields with accurate information.
  • Review the form carefully to avoid common mistakes.
  • Ensure the application is signed by an authorized representative.
  • Submit the completed form according to the provided instructions.
Accuracy is vital; double-check all entries to ensure compliance and reduce processing time.

Required Documents and Supporting Materials for the Application

When submitting the California DMV ELT Program Application, several documents must accompany it. These include:
  • A valid business license or charter
  • Financial institution's authorization documentation
  • Any necessary digital signatures or notarization, if applicable
Preparing these documents in the specified formats can expedite the submission process, ensuring that all requirements are met.

Submission Methods and Processing Time for the Application

The completed California DMV ELT Program Application can be submitted via several methods. Available options include:
  • Online submission through pdfFiller
  • Mailing the application to the appropriate DMV office
Processing times may vary; however, institutions can track the status of their application after submission to stay informed about its progress.

Understanding the Security and Compliance of the California DMV ELT Program

PdfFiller prioritizes security throughout the application process. They employ multiple layers of protection, including:
  • 256-bit encryption for data security
  • Compliance with SOC 2 Type II and HIPAA standards
  • GDPR compliance for user privacy
Financial institutions can feel confident that sensitive documents will be managed securely, safeguarding their data from unauthorized access.

Streamlining Your Application Process with pdfFiller

Utilizing pdfFiller allows for a seamless experience while completing the California DMV ELT Program Application. Key benefits include:
  • Easy editing and annotation of forms
  • Convenient e-signing capabilities
  • Effortless saving and sharing options
By leveraging these features, institutions can enhance their form-filling process from start to finish.

Sample or Example of a Completed California DMV ELT Program Application

To assist users in understanding how to fill out the California DMV ELT Program Application, a sample form is provided. This sample includes annotations that clarify:
  • Each section and its purpose
  • How to accurately replicate the information in their own applications
  • Common mistakes to avoid during the filling process
Reviewing this example can significantly improve the completion of the form, ensuring a successful submission.
Last updated on Oct 30, 2014

How to fill out the CA DMV ELT Application

  1. 1.
    To access the California DMV ELT Program Application, navigate to pdfFiller and search for the form using its name.
  2. 2.
    Once you find the form, click to open it in pdfFiller's editor interface.
  3. 3.
    Review the fillable fields that you will need to complete, ensuring you have relevant information ready like company details, administrative contacts, and ELT software type.
  4. 4.
    Fill in each field systematically; click on a section to type, selecting or checking options as necessary.
  5. 5.
    Use the instructions provided within the form to guide you through any specific requirements or details that need your attention.
  6. 6.
    After completing all sections, take a moment to review your entries for accuracy and completeness.
  7. 7.
    If needed, consult your legal or compliance team to ensure the application meets all regulatory standards.
  8. 8.
    Finalize your form by checking for any signatures required from an authorized representative.
  9. 9.
    After ensuring everything is correctly filled out, use the options in pdfFiller to save your progress.
  10. 10.
    You can download the completed form, email it, or submit directly through the portal as needed.
Regular content decoration

FAQs

If you can't find what you're looking for, please contact us anytime!
Eligible applicants include financial institutions that operate within California and meet the specific criteria set by the DMV to participate in the ELT program. Ensure that your organization has the capability to manage electronic liens.
While the application can generally be submitted at any time, it's advisable to check the DMV's official guidelines for any specific deadlines, especially if there are changes in the program that may affect processing times.
The completed application can be submitted directly through pdfFiller for electronic submission, or you can download and print the form to submit it by mail or in person at your local DMV office.
When submitting the application, ensure that any required supporting documents, such as a copy of your business license or charter, are included to avoid delays in processing your application.
Common errors include incomplete fields, missing signatures, and not providing the necessary supporting documents. Double-check all information for accuracy before submission.
Processing times can vary. Typically, expect a response within several weeks, but it is recommended to check for updates or confirmed timelines with the DMV.
Typically, only one authorized representative's signature is required to validate the application, but it's wise to confirm the specific requirements for your organization.
If you believe that this page should be taken down, please follow our DMCA take down process here .
This form may include fields for payment information. Data entered in these fields is not covered by PCI DSS compliance.