Form preview

Get the free Kansas Real Estate Sales Validation Questionnaire

Get Form
We are not affiliated with any brand or entity on this form
Illustration
Fill out
Complete the form online in a simple drag-and-drop editor.
Illustration
eSign
Add your legally binding signature or send the form for signing.
Illustration
Share
Share the form via a link, letting anyone fill it out from any device.
Illustration
Export
Download, print, email, or move the form to your cloud storage.

Why pdfFiller is the best tool for your documents and forms

GDPR
AICPA SOC 2
PCI
HIPAA
CCPA
FDA

End-to-end document management

From editing and signing to collaboration and tracking, pdfFiller has everything you need to get your documents done quickly and efficiently.

Accessible from anywhere

pdfFiller is fully cloud-based. This means you can edit, sign, and share documents from anywhere using your computer, smartphone, or tablet.

Secure and compliant

pdfFiller lets you securely manage documents following global laws like ESIGN, CCPA, and GDPR. It's also HIPAA and SOC 2 compliant.
Form preview

What is Kansas Real Estate Form

The Kansas Real Estate Sales Validation Questionnaire is a property disclosure form used by sellers and buyers in Kansas to validate real estate sales transactions.

pdfFiller scores top ratings on review platforms

Users Most Likely To Recommend - Summer 2025
Grid Leader in Small-Business - Summer 2025
High Performer - Summer 2025
Regional Leader - Summer 2025
Show more Show less
Fill fillable Kansas Real Estate form: Try Risk Free
Rate free Kansas Real Estate form
4.8
satisfied
33 votes

Who needs Kansas Real Estate Form?

Explore how professionals across industries use pdfFiller.
Picture
Kansas Real Estate Form is needed by:
  • Home sellers in Kansas looking to complete property sales.
  • Home buyers in Kansas needing to validate their purchase.
  • Real estate agents assisting in Kansas transactions.
  • Title companies involved in Kansas real estate transfers.
  • Lawyers representing clients in real estate deals in Kansas.

Comprehensive Guide to Kansas Real Estate Form

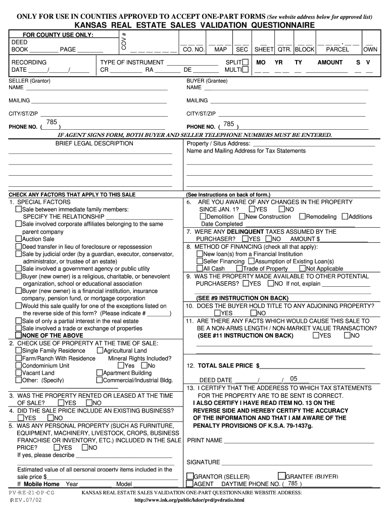
What is the Kansas Real Estate Sales Validation Questionnaire?

The Kansas Real Estate Sales Validation Questionnaire is a vital document for validating real estate transactions in Kansas. This form ensures that both parties—the grantor and grantee—are providing accurate and relevant information about the property and sale. It serves as a record of the real estate transaction, which is crucial for compliance and transparency in the market.
This form plays an important role in protecting buyers and sellers alike, contributing to the integrity of property exchanges within the state.

Purpose and Benefits of the Kansas Real Estate Sales Validation Questionnaire

The primary purpose of the Kansas Real Estate Sales Validation Questionnaire is to validate real estate transactions. By using this form, both sellers and buyers can ensure compliance with state regulations governing property sales.
Additionally, the use of this questionnaire enhances transparency during sales, which aids in building trust between parties. Key benefits include:
  • Clear validation of sales transactions
  • Compliance assurance with state laws
  • Protection for both buyers and sellers

Key Features of the Kansas Real Estate Sales Validation Questionnaire

This questionnaire contains several key components designed to capture comprehensive details regarding the sale and the parties involved. Major features include:
  • Multiple blank fields for essential property information
  • Checkboxes and areas for detailing the sale price and date
  • Signature requirements from both the grantor (seller) and grantee (buyer)
These features ensure the form is thorough, facilitating smoother transactions.

Who Needs the Kansas Real Estate Sales Validation Questionnaire?

Both the grantor and the grantee are required to complete the Kansas Real Estate Sales Validation Questionnaire. The grantor, or seller, must provide details about the property being sold, while the grantee, or buyer, must offer information regarding their role in the transaction. This form is necessary under the conditions when a property is sold, ensuring proper documentation is maintained.
It is crucial that both parties complete and sign the questionnaire to avoid future issues related to the transaction.

How to Fill Out the Kansas Real Estate Sales Validation Questionnaire Online (Step-by-Step)

Filling out the Kansas Real Estate Sales Validation Questionnaire online is straightforward. Follow these steps to complete the form accurately:
  • Gather all necessary documents, including property details and pricing information.
  • Access the questionnaire through the pdfFiller platform.
  • Enter the required fields, paying special attention to property specifics, and ensure accuracy.
  • Have both parties review the information before proceeding to signatures.
  • Sign the form electronically to validate completion.
Taking these steps will help avoid common mistakes and ensure a smooth submission process.

Submission Methods and Delivery for the Kansas Real Estate Sales Validation Questionnaire

Several submission methods are available for the Kansas Real Estate Sales Validation Questionnaire. Users can choose from the following options:
  • Online submission via pdfFiller
  • Mailing the completed form to the appropriate state office
After submission, it is advisable to confirm receipt, ensuring the form is tracked properly. This step is crucial for maintaining accurate records of the transaction.

Security and Compliance for the Kansas Real Estate Sales Validation Questionnaire

pdfFiller prioritizes the security of all documents processed through its platform. Robust measures are in place to protect sensitive information:
  • 256-bit encryption to safeguard data
  • Compliance with HIPAA and GDPR regulations
  • Regular audits to ensure adherence to privacy protocols
These practices are designed to ensure users can confidently manage their real estate documents and transactions.

Sample or Example of a Completed Kansas Real Estate Sales Validation Questionnaire

For clarity, a filled-out sample of the Kansas Real Estate Sales Validation Questionnaire is available. It includes:
  • Annotations highlighting essential fields
  • Commonly observed responses for guidance
This example assists users in understanding how to properly complete their own forms, ensuring accuracy and compliance.

Why Choose pdfFiller for Your Kansas Real Estate Sales Validation Questionnaire?

pdfFiller is the ideal tool for completing the Kansas Real Estate Sales Validation Questionnaire due to its user-friendly interface and robust features. Key advantages include:
  • Easy online access and editing capabilities
  • Seamless eSigning features for all parties involved
  • Strong emphasis on security and compliance in handling sensitive data
Choosing pdfFiller simplifies the process while keeping your information secure.

Final Steps to Ensure a Smooth Submission Experience

To finalize your Kansas Real Estate Sales Validation Questionnaire, ensure you take the following steps:
  • Double-check all information for accuracy before submission
  • Make sure both parties have reviewed and signed the document
  • Utilize pdfFiller for a streamlined and secure experience
These final checks are essential for a successful transaction and proper documentation.
Last updated on May 24, 2015

How to fill out the Kansas Real Estate Form

  1. 1.
    Access and open the Kansas Real Estate Sales Validation Questionnaire by visiting pdfFiller and searching for the form's title in the search bar.
  2. 2.
    Once the form is displayed, click on the document to open it in the editor.
  3. 3.
    Prepare by gathering necessary information such as property details, sale price, dates, and any special conditions affecting the sale.
  4. 4.
    Begin filling in the form by clicking on the designated fields to enter seller and buyer information. Use the cursor to navigate between fields.
  5. 5.
    Make sure to provide complete details including the sale price and transaction date.
  6. 6.
    Review the completed sections for accuracy and ensure all required fields are filled in accordance with the instructions provided on the form.
  7. 7.
    Once finished, finalize your entries by saving your progress or downloading the completed document for submission.
  8. 8.
    To submit, you can use the sharing options provided by pdfFiller, or download the form to send it via email or print it for physical submission.
Regular content decoration

FAQs

If you can't find what you're looking for, please contact us anytime!
Both the grantor (seller) and the grantee (buyer) must sign the Kansas Real Estate Sales Validation Questionnaire to validate the transaction.
While specific documents are not required to accompany the Kansas Real Estate Sales Validation Questionnaire, it is advisable to have relevant property documents, such as titles and disclosures, on hand during the completion process.
There is typically no specific deadline for submitting this form; however, it is recommended to complete it promptly to facilitate the real estate transaction process.
Yes, the Kansas Real Estate Sales Validation Questionnaire can be completed online using pdfFiller, which offers an easy-to-use interface for filling out forms.
Common mistakes include leaving required fields blank, providing incorrect property details, or failing to obtain necessary signatures from both parties involved in the transaction.
No, notarization is not required for the Kansas Real Estate Sales Validation Questionnaire, making it easier to complete than other official forms.
If you need assistance with the Kansas Real Estate Sales Validation Questionnaire, consider consulting a real estate agent or a legal professional familiar with Kansas real estate laws.
If you believe that this page should be taken down, please follow our DMCA take down process here .
This form may include fields for payment information. Data entered in these fields is not covered by PCI DSS compliance.