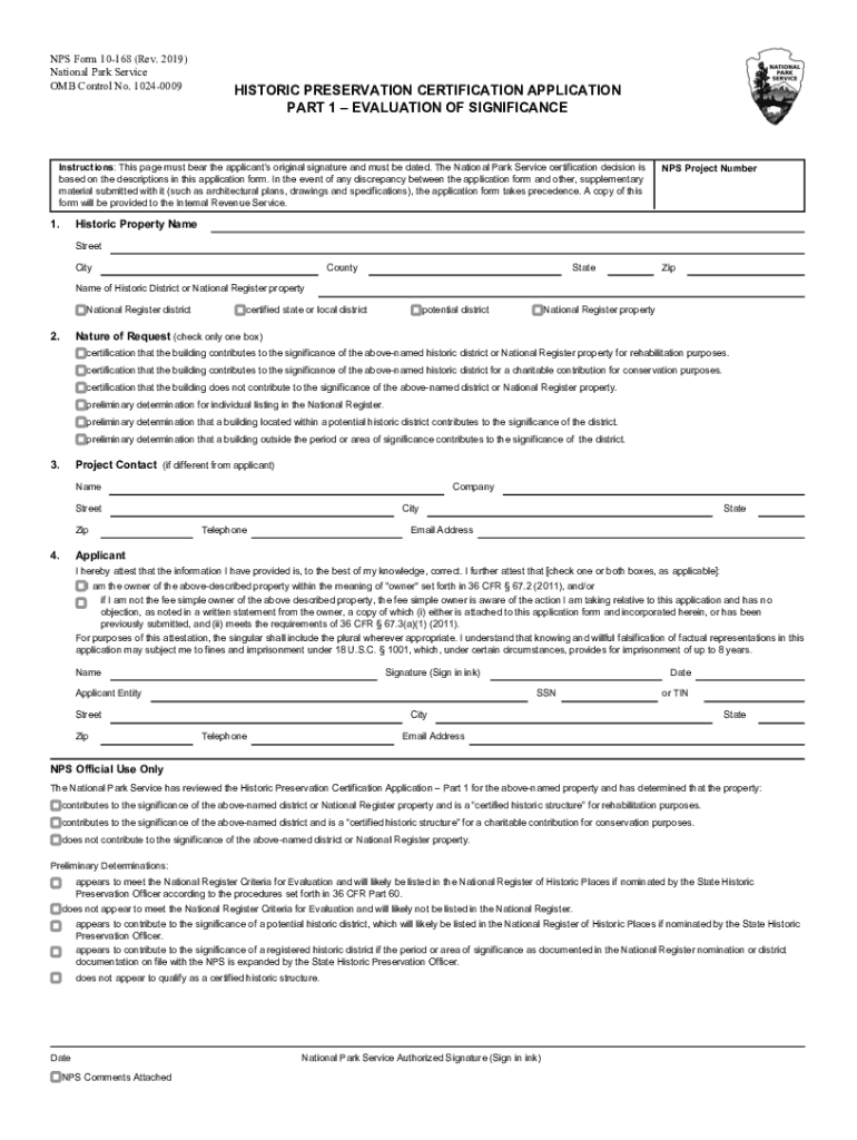
Get the free NPS Form 10-168. HISTORIC PRESERVATION CERTIFICATION APPLICATION - dahp wa
Show details
We are not affiliated with any brand or entity on this form
Get, Create, Make and Sign nps form 10-168 historic
Edit your nps form 10-168 historic form online
Type text, complete fillable fields, insert images, highlight or blackout data for discretion, add comments, and more.
Add your legally-binding signature
Draw or type your signature, upload a signature image, or capture it with your digital camera.
Share your form instantly
Email, fax, or share your nps form 10-168 historic form via URL. You can also download, print, or export forms to your preferred cloud storage service.
Editing nps form 10-168 historic online
Here are the steps you need to follow to get started with our professional PDF editor:
1
Set up an account. If you are a new user, click Start Free Trial and establish a profile.
2
Simply add a document. Select Add New from your Dashboard and import a file into the system by uploading it from your device or importing it via the cloud, online, or internal mail. Then click Begin editing.
3
Edit nps form 10-168 historic. Replace text, adding objects, rearranging pages, and more. Then select the Documents tab to combine, divide, lock or unlock the file.
4
Get your file. When you find your file in the docs list, click on its name and choose how you want to save it. To get the PDF, you can save it, send an email with it, or move it to the cloud.
pdfFiller makes working with documents easier than you could ever imagine. Try it for yourself by creating an account!
Uncompromising security for your PDF editing and eSignature needs
Your private information is safe with pdfFiller. We employ end-to-end encryption, secure cloud storage, and advanced access control to protect your documents and maintain regulatory compliance.
How to fill out nps form 10-168 historic
How to fill out nps form 10-168 historic
01
To fill out the NPS Form 10-168 Historic, follow the steps below:
02
Start by downloading the form from the National Park Service (NPS) website or obtain a copy from a local NPS office.
03
Read the instructions on the form carefully to understand the requirements and guidelines.
04
Fill in your personal information, including your name, address, and contact details, in the designated fields.
05
Provide information about the historic property or site being documented. This may include the property's name, location, and historical significance.
06
Complete the sections related to the property's ownership, condition, and integrity.
07
Include any documentation or photographs that support the information provided in the form.
08
Review the completed form to ensure all necessary information has been provided and there are no errors.
09
Sign and date the form before submitting it to the appropriate NPS office or mailing address.
10
Keep a copy of the completed form for your records.
Who needs nps form 10-168 historic?
01
NPS Form 10-168 Historic is needed by individuals or organizations involved in documenting and preserving historic properties or sites.
02
This form is commonly used by archaeologists, historians, preservationists, and government agencies responsible for heritage conservation.
03
Owners or custodians of historic properties may also need to fill out this form to provide documentation for their property's historical significance.
04
Additionally, researchers, students, or anyone interested in studying or learning about historic sites may benefit from using this form.
Fill
form
: Try Risk Free
For pdfFiller’s FAQs
Below is a list of the most common customer questions. If you can’t find an answer to your question, please don’t hesitate to reach out to us.
How do I execute nps form 10-168 historic online?
Easy online nps form 10-168 historic completion using pdfFiller. Also, it allows you to legally eSign your form and change original PDF material. Create a free account and manage documents online.
Can I sign the nps form 10-168 historic electronically in Chrome?
Yes. By adding the solution to your Chrome browser, you may use pdfFiller to eSign documents while also enjoying all of the PDF editor's capabilities in one spot. Create a legally enforceable eSignature by sketching, typing, or uploading a photo of your handwritten signature using the extension. Whatever option you select, you'll be able to eSign your nps form 10-168 historic in seconds.
Can I edit nps form 10-168 historic on an iOS device?
You can. Using the pdfFiller iOS app, you can edit, distribute, and sign nps form 10-168 historic. Install it in seconds at the Apple Store. The app is free, but you must register to buy a subscription or start a free trial.
What is nps form 10-168 historic?
NPS Form 10-168 historic is a form used to report historical information related to the National Park Service.
Who is required to file nps form 10-168 historic?
Individuals or organizations who are responsible for historical preservation activities and projects may be required to file NPS Form 10-168 historic.
How to fill out nps form 10-168 historic?
NPS Form 10-168 historic can be filled out by providing detailed information about the historical preservation activities or projects, as well as any relevant documentation.
What is the purpose of nps form 10-168 historic?
The purpose of NPS Form 10-168 historic is to document and preserve historical information related to the National Park Service and its activities.
What information must be reported on nps form 10-168 historic?
Information such as project details, historical significance, preservation methods, and any other relevant data must be reported on NPS Form 10-168 historic.
Fill out your nps form 10-168 historic online with pdfFiller!
pdfFiller is an end-to-end solution for managing, creating, and editing documents and forms in the cloud. Save time and hassle by preparing your tax forms online.
Nps Form 10-168 Historic is not the form you're looking for?Search for another form here.
Related Forms
If you believe that this page should be taken down, please follow our DMCA take down process
here
.
This form may include fields for payment information. Data entered in these fields is not covered by PCI DSS compliance.