Get the free NPS Form 10-168c. HISTORIC PRESERVATION CERTIFICATION APPLICATION
Show details
We are not affiliated with any brand or entity on this form
Get, Create, Make and Sign nps form 10-168c historic
Edit your nps form 10-168c historic form online
Type text, complete fillable fields, insert images, highlight or blackout data for discretion, add comments, and more.
Add your legally-binding signature
Draw or type your signature, upload a signature image, or capture it with your digital camera.
Share your form instantly
Email, fax, or share your nps form 10-168c historic form via URL. You can also download, print, or export forms to your preferred cloud storage service.
How to edit nps form 10-168c historic online
Use the instructions below to start using our professional PDF editor:
1
Sign into your account. If you don't have a profile yet, click Start Free Trial and sign up for one.
2
Upload a file. Select Add New on your Dashboard and upload a file from your device or import it from the cloud, online, or internal mail. Then click Edit.
3
Edit nps form 10-168c historic. Replace text, adding objects, rearranging pages, and more. Then select the Documents tab to combine, divide, lock or unlock the file.
4
Get your file. When you find your file in the docs list, click on its name and choose how you want to save it. To get the PDF, you can save it, send an email with it, or move it to the cloud.
It's easier to work with documents with pdfFiller than you can have believed. You may try it out for yourself by signing up for an account.
Uncompromising security for your PDF editing and eSignature needs
Your private information is safe with pdfFiller. We employ end-to-end encryption, secure cloud storage, and advanced access control to protect your documents and maintain regulatory compliance.
How to fill out nps form 10-168c historic
How to fill out nps form 10-168c historic
01
Start by obtaining a copy of the NPS Form 10-168c Historic.
02
Fill out all necessary personal information, such as name, contact information, and any relevant identification numbers.
03
Provide details about the historic property or site being documented, including its location, significance, and any known history.
04
Answer all required questions about the property's condition, current use, and any preservation efforts.
05
Review the completed form for accuracy and completeness before submitting it to the appropriate preservation organization or government agency.
Who needs nps form 10-168c historic?
01
Individuals or organizations who are involved in documenting or preserving historic properties or sites may need NPS Form 10-168c Historic. This form is commonly used by historians, architects, archaeologists, and government agencies to record information about significant cultural resources.
Fill
form
: Try Risk Free
For pdfFiller’s FAQs
Below is a list of the most common customer questions. If you can’t find an answer to your question, please don’t hesitate to reach out to us.
Can I create an electronic signature for the nps form 10-168c historic in Chrome?
Yes. By adding the solution to your Chrome browser, you may use pdfFiller to eSign documents while also enjoying all of the PDF editor's capabilities in one spot. Create a legally enforceable eSignature by sketching, typing, or uploading a photo of your handwritten signature using the extension. Whatever option you select, you'll be able to eSign your nps form 10-168c historic in seconds.
How do I edit nps form 10-168c historic straight from my smartphone?
The best way to make changes to documents on a mobile device is to use pdfFiller's apps for iOS and Android. You may get them from the Apple Store and Google Play. Learn more about the apps here. To start editing nps form 10-168c historic, you need to install and log in to the app.
How do I complete nps form 10-168c historic on an Android device?
Complete your nps form 10-168c historic and other papers on your Android device by using the pdfFiller mobile app. The program includes all of the necessary document management tools, such as editing content, eSigning, annotating, sharing files, and so on. You will be able to view your papers at any time as long as you have an internet connection.
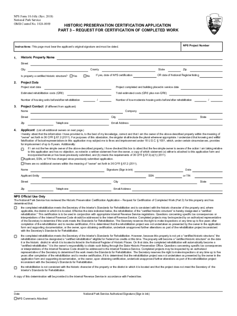
What is nps form 10-168c historic?
NPS Form 10-168C Historic is a specific form used by the National Park Service to document and report historical preservation activities and status regarding historical sites and structures.
Who is required to file nps form 10-168c historic?
Entities such as federal agencies, state governmental bodies, and other stakeholders involved in the management or preservation of historic sites are required to file NPS Form 10-168C.
How to fill out nps form 10-168c historic?
To fill out NPS Form 10-168C, individuals must gather relevant data about the historic site, including its condition, preservation efforts, and any actions taken, and follow the instructions provided in the form's guidelines.
What is the purpose of nps form 10-168c historic?
The purpose of NPS Form 10-168C is to collect information on the preservation status and activities related to historic sites to ensure compliance with national preservation standards.
What information must be reported on nps form 10-168c historic?
The form requires reporting on the site's identification, condition assessment, preservation activities undertaken, and any relevant historical data that contextualizes its significance.
Fill out your nps form 10-168c historic online with pdfFiller!
pdfFiller is an end-to-end solution for managing, creating, and editing documents and forms in the cloud. Save time and hassle by preparing your tax forms online.
Nps Form 10-168c Historic is not the form you're looking for?Search for another form here.
Related Forms
If you believe that this page should be taken down, please follow our DMCA take down process
here
.
This form may include fields for payment information. Data entered in these fields is not covered by PCI DSS compliance.