Form preview

Get the free Form G-15, 2012, Information Return for Unlicensed Contractors on Federal Constructi...

Get Form
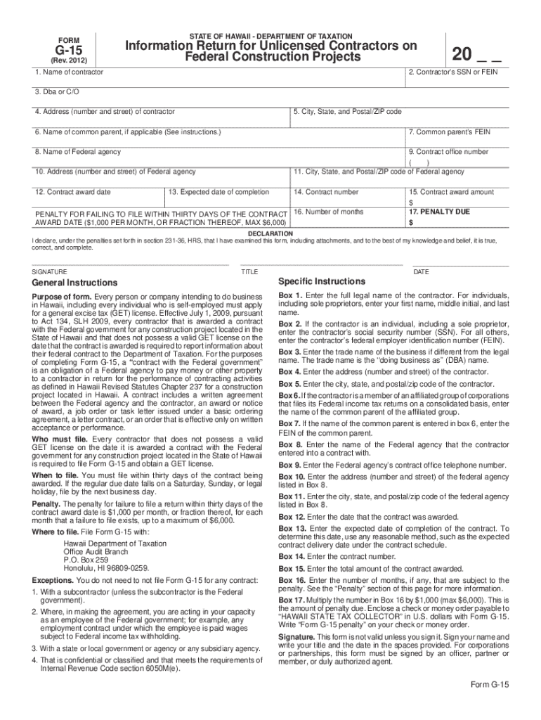
Clear Form FORMG15 (Rev. 2012)STATE OF HAWAII DEPARTMENT OF TAXATIONInformation Return for Unlicensed Contractors on Federal Construction Projects1. Name of contractor202. Contractors SSN or FEIN3. Dba or C/O 4. Address (number and street) of contractor5. City, State, and Postal/ZIP code6. Name of common parent, if applicable (See instructions.)7. Common parents FEIN8. Name of Federal agency 10. Address (number and street) of Federal agency9. Contract office number ( ) 11
We are not affiliated with any brand or entity on this form

Get, Create, Make and Sign form g-15 2012 information

Edit
Edit your form g-15 2012 information form online
Type text, complete fillable fields, insert images, highlight or blackout data for discretion, add comments, and more.
Add
Add your legally-binding signature
Draw or type your signature, upload a signature image, or capture it with your digital camera.
Share
Share your form instantly
Email, fax, or share your form g-15 2012 information form via URL. You can also download, print, or export forms to your preferred cloud storage service.

How to edit form g-15 2012 information online

9.5
Ease of Setup
pdfFiller User Ratings on G2
9.0
Ease of Use
pdfFiller User Ratings on G2
To use our professional PDF editor, follow these steps:
1
Log in to your account. Click Start Free Trial and register a profile if you don't have one.
2
Prepare a file. Use the Add New button. Then upload your file to the system from your device, importing it from internal mail, the cloud, or by adding its URL.
3
Edit form g-15 2012 information. Add and change text, add new objects, move pages, add watermarks and page numbers, and more. Then click Done when you're done editing and go to the Documents tab to merge or split the file. If you want to lock or unlock the file, click the lock or unlock button.
4
Save your file. Select it in the list of your records. Then, move the cursor to the right toolbar and choose one of the available exporting methods: save it in multiple formats, download it as a PDF, send it by email, or store it in the cloud.
The use of pdfFiller makes dealing with documents straightforward. Now is the time to try it!

Uncompromising security for your PDF editing and eSignature needs

Your private information is safe with pdfFiller. We employ end-to-end encryption, secure cloud storage, and advanced access control to protect your documents and maintain regulatory compliance.
GDPR
AICPA SOC 2
PCI
HIPAA
CCPA
FDA

How to fill out form g-15 2012 information

Illustration

How to fill out form g-15 2012 information

01
Obtain Form G-15 from the official immigration website or the appropriate agency.
02
Read the instructions provided with the form carefully.
03
Enter your personal information in the designated sections, including your name, address, and contact details.
04
Fill in any relevant case numbers or identifiers associated with your immigration status.
05
Provide any additional information requested, such as employment history or immigration history.
06
Review the completed form for accuracy and completeness.
07
Sign and date the form where required.
08
Submit the form according to the instructions, either electronically or via mail.

Who needs form g-15 2012 information?

01
Individuals who are applying for immigration benefits or relief under specific programs.
02
Applicants seeking certain types of visa or residency status.
03
Beneficiaries seeking to provide additional evidence or information related to their immigration case.

Comprehensive Guide to Form G-15 2012 Information Form

Understanding Form G-15 2012

Form G-15 2012 is a vital document utilized in various administrative and compliance processes, particularly for documenting specific information that organizations and individuals need to disclose legally. By standardizing the information required, this form streamlines the documentation process, making it easier for both the filers and the authorities who review these submissions.

The significance of Form G-15 cannot be overstated, as it ensures that everyone is on the same page when it comes to reporting and compliance requirements. Since its last iteration, the 2012 version includes key updates aimed at simplifying the process, including better clarity in instructions and improved formatting for online submission.

Standardizes information disclosure for consistency.
Enhances the clarity of submission requirements.
Facilitates easier online and offline management.

Who needs to complete Form G-15?

Individuals and organizations that handle sensitive documentation or are subject to various regulatory requirements are the primary users of Form G-15. This includes businesses of all sizes, non-profit organizations, and sometimes, individual contractors who must provide proof of compliance with certain regulations or operational guidelines.

The scenarios where Form G-15 is applicable can vary widely. From compliance officers needing to maintain records to businesses seeking to certify their operations and to individuals submitting necessary information for various applications—understanding when to use this form is crucial for anyone involved in these processes.

Compliance submissions for businesses.
Documentation for regulatory audits.
Filing applications that require detailed disclosures.

Key sections of Form G-15

Understanding the structure of Form G-15 is essential for accurate completion. The form is divided into several key sections that each serve a specific purpose. These sections include identifying information, the purpose of the form, supporting documentation requirements, and a signature declaration.

Each segment of the form is designed to gather specific details crucial for proper documentation. It's important to pay attention to the requirements of each section to avoid any potential confusion or errors.

Identifying information, including names and addresses.
Purpose of the form outlining the reason for submission.
Supporting documentation requirements detailing what additional papers must accompany the form.
Signature and declaration to affirm the accuracy of the information provided.

Step-by-step guide to filling out Form G-15

Before diving into filling out Form G-15, adequate preparation is key. Begin by gathering all necessary documents that will support the information required in the form. This preparation helps avoid any delays or mistakes during submission. Understanding the instruction manual that accompanies the form is equally crucial to ensure all information is entered accurately.

When filling out each section, clarity is essential. Be explicit with your answers, as vague responses can result in unnecessary back-and-forth communication. A common mistake to avoid is leaving out supporting documentation, which is clearly outlined in Section 3, as this can lead to rejection or extensive processing delays.

Collect all necessary documents in advance.
Follow the instructions provided for each section.
Review your entries for clarity and thoroughness.
Double-check that all supporting documents are included before submission.

Once you have completed the form, you must decide where and how to send it. Various channels may be available depending on your specific circumstances—check the instructions for the designated submission method.

Editing and managing Form G-15 using pdfFiller

pdfFiller provides a comprehensive suite of tools to edit Form G-15 online efficiently. Users can upload the form, make necessary edits, and fill it out directly on the platform. This capability is vital for ensuring that you can adjust any shared document quickly and effectively without the need to start over.

In addition to editing, pdfFiller allows for eSigning the form, making the process more streamlined. Collaboration features enable multiple users to contribute to the document, enhancing team productivity. Moreover, the platform helps manage versions and the history of changes, ensuring you always have access to previous iterations of your document.

Edit the form directly in your browser without printing.
Add eSignatures for a quicker approval process.
Collaborate with team members on document preparation.
Track changes and manage several versions of your document.

Frequently asked questions about Form G-15

Several questions arise frequently concerning the completion and submission of Form G-15. One common query is what happens if a mistake is made on the form. In this event, it’s advisable to either correct the error immediately, where permissible, or consult the relevant authority’s guidance on how to amend submissions.

Another crucial topic is checking the status of your submission. Depending on the channel used for submission, there are often online portals where confirmation can be tracked. The processing timeline can also vary, but organizations typically aim for expediency. Lastly, be aware that while there are generally no fees associated with the filing of Form G-15, individuals should always verify this against their specific circumstances.

What should I do if I realize a mistake has been made?
How can I check the status of my submission?
What are the average processing times for Form G-15?
Are there any associated fees for filing Form G-15?

Additional tools and resources

For those navigating the complexities of Form G-15, pdfFiller offers a variety of interactive tools designed to simplify the process. Users can access templates and examples of completed forms, providing valuable insights into how to present information accurately.

User testimonials highlight successful experiences using pdfFiller, reinforcing the platform's reliability in document management. These resources promote confidence among users as they complete Form G-15.

Interactive tools for filling out Form G-15.
Templates and example forms available for reference.
User testimonials showcasing successful use cases.

Legal and privacy considerations

Reviewing the legal implications of submitting Form G-15 is essential for maintaining compliance with various regulations. Understanding the privacy policies related to the information disclosed in the form helps protect both the submitter and the organization.

When filing electronically, it’s important to be aware of laws governing electronic signatures and their validity. Compliance with these regulations is paramount in avoiding liability or disputes over document approval. Taking the time to review these policies can help ensure adherence to relevant legal standards.

Understand the privacy policies governing your submissions.
Know the legal implications of signing electronically.
Ensure compliance with relevant document management regulations.

Exploring related forms and documents

Form G-15 is just one of many documents that may be necessary depending on your business or personal needs. Understanding forms that are similar or often used in conjunction with Form G-15 can enhance your documentation capability. Often, forms related to compliance or reporting may have additional requirements.

pdfFiller facilitates easy navigation through related forms with quick links, making it simple for users to find the documents they need without hassle. Efficient organization and accessible templates contribute to managing multiple forms effectively.

Overview of forms similar to Form G-15.
Quick links to access related templates.
Utilize pdfFiller to navigate multiple forms efficiently.

Feedback and support

For any queries or difficulties experienced while filling out Form G-15, pdfFiller offers a dedicated support team to assist users. Accessing support can help clarify uncertainties and enhance overall user experience, ensuring that users feel confident during the documentation process.

In addition to direct support, community forums provide a space for users to share their experiences and learn from one another. Regular updates based on user feedback lead to continuous improvement on the platform, ultimately enhancing usability and satisfaction.

Reach out to pdfFiller's support team for assistance.
Engage with community forums for shared experiences.
Stay updated with continuous improvements on the platform.

Innovative features of pdfFiller

pdfFiller stands out due to its unique functionalities tailored for modern document management needs. Features such as real-time collaboration allow teams to work together seamlessly, substantially improving productivity and reducing the time necessary to finalize documents.

With advanced functionalities like the ability to track changes across multiple document versions, pdfFiller enhances the reliability of document management. This is especially beneficial for managing compliance and ensuring all information remains accurate and up-to-date.

Real-time collaboration features for team efficiency.
Advanced document management capabilities.
Functionality for tracking changes and managing versions.
Fill form : Try Risk Free
Users Most Likely To Recommend - Summer 2025
Grid Leader in Small-Business - Summer 2025
High Performer - Summer 2025
Regional Leader - Summer 2025
Easiest To Do Business With - Summer 2025
Best Meets Requirements- Summer 2025
Rate the form
4.5
Satisfied
29 Votes

For pdfFiller’s FAQs

Below is a list of the most common customer questions. If you can’t find an answer to your question, please don’t hesitate to reach out to us.

Install the pdfFiller Chrome Extension to modify, fill out, and eSign your form g-15 2012 information, which you can access right from a Google search page. Fillable documents without leaving Chrome on any internet-connected device.
Create, modify, and share form g-15 2012 information using the pdfFiller iOS app. Easy to install from the Apple Store. You may sign up for a free trial and then purchase a membership.
Yes, you can. With the pdfFiller mobile app for Android, you can edit, sign, and share form g-15 2012 information on your mobile device from any location; only an internet connection is needed. Get the app and start to streamline your document workflow from anywhere.
Form G-15 is a document used for reporting specific information related to the immigration processes in the United States, as established by the U.S. Citizenship and Immigration Services (USCIS) in 2012.
Individuals or organizations involved in certain immigration processes, such as petitioners or sponsors of immigration applications, are typically required to file Form G-15.
To fill out Form G-15, take the following steps: carefully read the instructions provided with the form, enter personal and relevant information in the designated sections, ensure all required fields are completed, and review the form for accuracy before submission.
The purpose of Form G-15 is to collect necessary information regarding immigration cases for processing and evaluation by USCIS, ensuring that all relevant details are available for decision-making.
Form G-15 requires reporting information such as personal identification data, immigration case details, and any supporting documentation relevant to the specific immigration application or petition.
Fill out your form g-15 2012 information online with pdfFiller!

pdfFiller is an end-to-end solution for managing, creating, and editing documents and forms in the cloud. Save time and hassle by preparing your tax forms online.

Get started now
Form preview

Related Forms

If you believe that this page should be taken down, please follow our DMCA take down process here .
This form may include fields for payment information. Data entered in these fields is not covered by PCI DSS compliance.