Get the free Builder's Risk ProductNew Construction Application
Show details
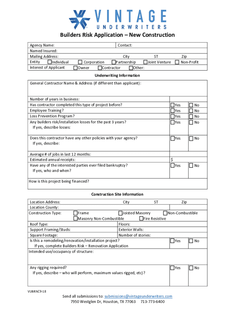
Builders Risk Application New Construction Agency Name: Named Insured: Mailing Address: Entity Individual Interest of ApplicantContact: City ST Corporation Partnership Joint Venture Owner Contractor Other:Zip NonProfitUnderwriting Information General Contractor Name & Address (if different than applicant):Number of years in business: Has contractor completed this type of project before? Employee Training? Loss Prevention Program? Any builders risk/installation
We are not affiliated with any brand or entity on this form
Get, Create, Make and Sign builder039s risk productnew construction
Edit your builder039s risk productnew construction form online
Type text, complete fillable fields, insert images, highlight or blackout data for discretion, add comments, and more.
Add your legally-binding signature
Draw or type your signature, upload a signature image, or capture it with your digital camera.
Share your form instantly
Email, fax, or share your builder039s risk productnew construction form via URL. You can also download, print, or export forms to your preferred cloud storage service.
How to edit builder039s risk productnew construction online
To use our professional PDF editor, follow these steps:
1
Register the account. Begin by clicking Start Free Trial and create a profile if you are a new user.
2
Prepare a file. Use the Add New button to start a new project. Then, using your device, upload your file to the system by importing it from internal mail, the cloud, or adding its URL.
3
Edit builder039s risk productnew construction. Rearrange and rotate pages, add new and changed texts, add new objects, and use other useful tools. When you're done, click Done. You can use the Documents tab to merge, split, lock, or unlock your files.
4
Save your file. Select it from your records list. Then, click the right toolbar and select one of the various exporting options: save in numerous formats, download as PDF, email, or cloud.
pdfFiller makes working with documents easier than you could ever imagine. Try it for yourself by creating an account!
Uncompromising security for your PDF editing and eSignature needs
Your private information is safe with pdfFiller. We employ end-to-end encryption, secure cloud storage, and advanced access control to protect your documents and maintain regulatory compliance.
How to fill out builder039s risk productnew construction
How to fill out builder039s risk productnew construction
01
Gather necessary project information including location, construction type, and estimated completion date.
02
Determine the total value of the building project, including materials, labor, and associated costs.
03
Identify any specific coverage needs such as weather-related damages, theft, or vandalism.
04
Complete the builder's risk application form with accurate details about the project.
05
Submit the application to the insurance provider along with any required documentation such as contracts or permits.
06
Review the proposed policy terms, limits, and exclusions carefully.
07
Make necessary adjustments to the policy before finalizing it.
08
Pay the premium to activate the coverage before construction begins.
Who needs builder039s risk productnew construction?
01
Property developers building new commercial or residential properties.
02
Homeowners undertaking major renovations or custom builds.
03
General contractors working on projects for clients.
04
Architects and engineers managing construction projects.
05
Investors looking to protect their financial stake in a new construction project.
Fill
form
: Try Risk Free
For pdfFiller’s FAQs
Below is a list of the most common customer questions. If you can’t find an answer to your question, please don’t hesitate to reach out to us.
How can I send builder039s risk productnew construction to be eSigned by others?
When you're ready to share your builder039s risk productnew construction, you can swiftly email it to others and receive the eSigned document back. You may send your PDF through email, fax, text message, or USPS mail, or you can notarize it online. All of this may be done without ever leaving your account.
How do I edit builder039s risk productnew construction in Chrome?
Install the pdfFiller Google Chrome Extension in your web browser to begin editing builder039s risk productnew construction and other documents right from a Google search page. When you examine your documents in Chrome, you may make changes to them. With pdfFiller, you can create fillable documents and update existing PDFs from any internet-connected device.
How do I complete builder039s risk productnew construction on an iOS device?
Get and install the pdfFiller application for iOS. Next, open the app and log in or create an account to get access to all of the solution’s editing features. To open your builder039s risk productnew construction, upload it from your device or cloud storage, or enter the document URL. After you complete all of the required fields within the document and eSign it (if that is needed), you can save it or share it with others.
What is builder039s risk productnew construction?
Builder's risk product for new construction is an insurance policy designed to cover buildings under construction against various risks, including theft, vandalism, and certain types of damage.
Who is required to file builder039s risk productnew construction?
Typically, the property owner or the general contractor is required to file for the builder's risk product for new construction.
How to fill out builder039s risk productnew construction?
To fill out the builder's risk product for new construction, you typically need to provide details such as the property address, construction timeline, estimated value of the project, and information about contractors and subcontractors involved.
What is the purpose of builder039s risk productnew construction?
The purpose of builder's risk product for new construction is to protect the financial investment in a construction project during the building phase against unforeseen events that may cause damage or loss.
What information must be reported on builder039s risk productnew construction?
Information that must be reported includes the project address, construction start and end dates, total construction value, type of construction, and details of any subcontractors or special trades involved.
Fill out your builder039s risk productnew construction online with pdfFiller!
pdfFiller is an end-to-end solution for managing, creating, and editing documents and forms in the cloud. Save time and hassle by preparing your tax forms online.
builder039s Risk Productnew Construction is not the form you're looking for?Search for another form here.
Related Forms
If you believe that this page should be taken down, please follow our DMCA take down process
here
.
This form may include fields for payment information. Data entered in these fields is not covered by PCI DSS compliance.