CA LTG-2A 2009-2026 free printable template
Show details
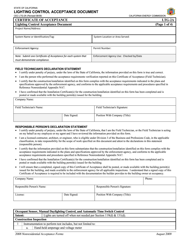
STATE OF CALIFORNIA LIGHTING CONTROL ACCEPTANCE DOCUMENT CEC-LTG-2A Revised 08/09 CALIFORNIA ENERGY COMMISSION CERTIFICATE OF ACCEPTANCE Lighting Control Acceptance Document LTG-2A Page 1 of 4 Project Name/Address System Name or Identification/Tag System Location or Area Served Enforcement Agency Permit Number Note Submit one Certificate of Acceptance for each system that must demonstrate compliance. FIELD TECHNICIAN S DECLARATION STATEMENT I certify under penalty of perjury under the laws...
pdfFiller is not affiliated with any government organization
Get, Create, Make and Sign CA LTG-2A
Edit your CA LTG-2A form online
Type text, complete fillable fields, insert images, highlight or blackout data for discretion, add comments, and more.
Add your legally-binding signature
Draw or type your signature, upload a signature image, or capture it with your digital camera.
Share your form instantly
Email, fax, or share your CA LTG-2A form via URL. You can also download, print, or export forms to your preferred cloud storage service.
How to edit CA LTG-2A online
Follow the steps down below to benefit from the PDF editor's expertise:
1
Create an account. Begin by choosing Start Free Trial and, if you are a new user, establish a profile.
2
Upload a file. Select Add New on your Dashboard and upload a file from your device or import it from the cloud, online, or internal mail. Then click Edit.
3
Edit CA LTG-2A. Rearrange and rotate pages, add and edit text, and use additional tools. To save changes and return to your Dashboard, click Done. The Documents tab allows you to merge, divide, lock, or unlock files.
4
Save your file. Select it in the list of your records. Then, move the cursor to the right toolbar and choose one of the available exporting methods: save it in multiple formats, download it as a PDF, send it by email, or store it in the cloud.
pdfFiller makes working with documents easier than you could ever imagine. Create an account to find out for yourself how it works!
Uncompromising security for your PDF editing and eSignature needs
Your private information is safe with pdfFiller. We employ end-to-end encryption, secure cloud storage, and advanced access control to protect your documents and maintain regulatory compliance.
CA LTG-2A Form Versions
Version
Form Popularity
Fillable & printabley
How to fill out CA LTG-2A
How to fill out y lighting applicable online:
01
Start by visiting the official website of y lighting.
02
Look for the section or page specifically designated for the applicable online form.
03
Carefully read and understand the instructions provided on the form.
04
Begin filling out the form by entering the required information accurately and completely.
05
If there are any optional fields, decide whether to provide the information or leave them blank.
06
Make sure to double-check all the entered information for accuracy and completeness before submitting the form.
07
If there are any supporting documents or attachments required, ensure they are properly prepared and ready to be uploaded or sent along with the form.
08
Once all the necessary information has been entered and all supporting documents are ready, submit the form as instructed.
09
Keep a record or confirmation of the submitted form for future reference or follow-up, if necessary.
Who needs y lighting applicable online:
01
Individuals who want to apply for y lighting products or services online.
02
Customers who wish to place orders or make purchases through y lighting's online platform.
03
Anyone who requires assistance or support from y lighting through their online channels, such as requesting information or submitting inquiries.
Fill
form
: Try Risk Free
People Also Ask about
How do I return my lumen for a refund?
You may cancel, return and receive a refund for your purchases on the Website if you notify us of such cancellation by e-mail to support@lumen.me within 30 days of date the Lumen Device was delivered to you or to your address, as documented by the applicable shipping and delivery agent, together with a receipt or other
What is the return policy on Lumen?
At Lumens, we are committed to our customer satisfaction. For most products on our website, if you don't like it, you may return it within 30 days for a refund (in new, uninstalled condition and original packaging). To request a return, click here to find your order.
What is the return policy for Lumen metabolism tracker?
What's the return policy? We want you to be completely satisfied with your Lumen. So please reach out to Customer Support if you're having problems. But if you decide Lumen is not for you, just return it within 30 days of receiving it for a full refund.
What are the 3 types of lighting methods?
There are three basic types of lighting you should layer in a room in order to accomplish this: Ambient or general lighting. Accent lighting. Task lighting.
What are the three common forms of architectural lighting?
There are three basic types of architectural lighting—cove, soffit, and valance.
What companies does lumens own?
Contents 2.1 Lumen enterprise business. 2.2 Lumen content delivery network. 2.3 CenturyLink small business. 2.4 CenturyLink residential. 2.5 Availability by state. 2.6 Fiber. 2.7 Data centers.
How many lumens do I need for a bedroom light?
As a handy rule of thumb, a sitting room or bedroom will generally require around 10-20 lumens per square foot, while a bathroom or kitchen will need a stronger level of lighting, at around 70-80 lumens per square foot.
How bright is 1700 lumens?
It's also commonly known as brightness or light output. The reference point: A standard 100-watt incandescent light bulb produces about 1,500-1,700 lumens.
Who is the owner of lumen lighting?
Sheldon Norberg - CEO - Lumen LED | LinkedIn.
How bright is 7000 lumens LED?
This 70 watt 7,000 lumens floodlight is very bright! When I turned it on it was so bright that I had to turn it away from my face.It can be used outdoors or indoors. The color is bright white(as opposed to yellow) It is well made, sturdy and waterproof and corrosion resistant. It is not dimmable.
How do you calculate lighting for a room?
Summary: Calculating Total Lumens Needed for a Room Multiply your room square footage by the footcandle requirement. For example, a 100-square foot living room, which needs 20 foot candles, will need 2,000 lumens. A 100-square foot dining room, which needs 40 foot-candles, will need 4,000 lumens.
How far can 7000 lumens reach?
Most emergency workers will find flashlights with 3000 to 7000 lumens that can be used as a handy searchlight at a range of over 500 meters.
How do you do a lighting study?
Here's what you need to do: Invest in a light meter. Determine the type of work that takes place in each area of your facility. Create a lighting checklist. Measure light levels ing to the following scale, Double check forklift traffic areas. Use auxiliary lighting to improve dim work areas.
How bright is 7000 lumens?
This 70 watt 7,000 lumens floodlight is very bright! When I turned it on it was so bright that I had to turn it away from my face.It can be used outdoors or indoors. The color is bright white(as opposed to yellow) It is well made, sturdy and waterproof and corrosion resistant. It is not dimmable.
For pdfFiller’s FAQs
Below is a list of the most common customer questions. If you can’t find an answer to your question, please don’t hesitate to reach out to us.
How can I modify CA LTG-2A without leaving Google Drive?
Using pdfFiller with Google Docs allows you to create, amend, and sign documents straight from your Google Drive. The add-on turns your CA LTG-2A into a dynamic fillable form that you can manage and eSign from anywhere.
Can I create an eSignature for the CA LTG-2A in Gmail?
Create your eSignature using pdfFiller and then eSign your CA LTG-2A immediately from your email with pdfFiller's Gmail add-on. To keep your signatures and signed papers, you must create an account.
Can I edit CA LTG-2A on an iOS device?
Use the pdfFiller mobile app to create, edit, and share CA LTG-2A from your iOS device. Install it from the Apple Store in seconds. You can benefit from a free trial and choose a subscription that suits your needs.
What is CA LTG-2A?
CA LTG-2A is a tax form used in California to report certain financial information related to tobacco products and other regulated goods.
Who is required to file CA LTG-2A?
Businesses and individuals who manufacture, import, or distribute tobacco products in California are required to file CA LTG-2A.
How to fill out CA LTG-2A?
To fill out CA LTG-2A, you must provide details such as the type and quantity of tobacco products, your business information, and any applicable tax rates. Follow the instructions provided with the form carefully.
What is the purpose of CA LTG-2A?
The purpose of CA LTG-2A is to ensure compliance with state tax regulations regarding tobacco products and to facilitate the collection of taxes owed to the state.
What information must be reported on CA LTG-2A?
CA LTG-2A requires reporting of information such as product types, quantities sold, tax rates, total tax due, and any other pertinent financial data related to tobacco products.
Fill out your CA LTG-2A online with pdfFiller!
pdfFiller is an end-to-end solution for managing, creating, and editing documents and forms in the cloud. Save time and hassle by preparing your tax forms online.
CA LTG-2a is not the form you're looking for?Search for another form here.
Relevant keywords
Related Forms
If you believe that this page should be taken down, please follow our DMCA take down process
here
.
This form may include fields for payment information. Data entered in these fields is not covered by PCI DSS compliance.