
Get the free IEM Daily Field Report
Show details
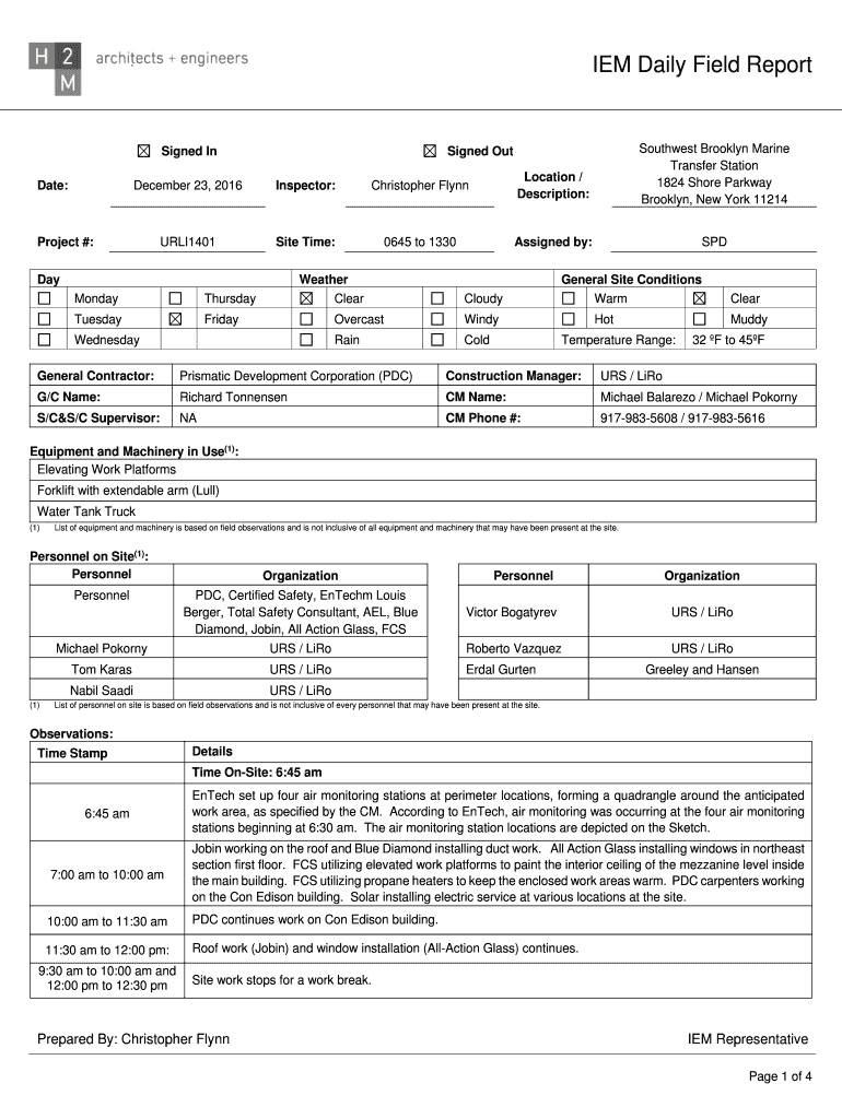
IEM Daily Field Report December 23, 2016Inspector:Christopher FlynnLocation /
Description:Southwest Brooklyn Marine
Transfer Station
1824 Shore Parkway
Brooklyn, New York 11214URLI1401Site Time:0645
We are not affiliated with any brand or entity on this form
Get, Create, Make and Sign iem daily field report

Edit your iem daily field report form online
Type text, complete fillable fields, insert images, highlight or blackout data for discretion, add comments, and more.

Add your legally-binding signature
Draw or type your signature, upload a signature image, or capture it with your digital camera.

Share your form instantly
Email, fax, or share your iem daily field report form via URL. You can also download, print, or export forms to your preferred cloud storage service.
How to edit iem daily field report online
To use our professional PDF editor, follow these steps:
1
Create an account. Begin by choosing Start Free Trial and, if you are a new user, establish a profile.
2
Simply add a document. Select Add New from your Dashboard and import a file into the system by uploading it from your device or importing it via the cloud, online, or internal mail. Then click Begin editing.
3
Edit iem daily field report. Add and replace text, insert new objects, rearrange pages, add watermarks and page numbers, and more. Click Done when you are finished editing and go to the Documents tab to merge, split, lock or unlock the file.
4
Get your file. Select your file from the documents list and pick your export method. You may save it as a PDF, email it, or upload it to the cloud.
pdfFiller makes working with documents easier than you could ever imagine. Try it for yourself by creating an account!
Uncompromising security for your PDF editing and eSignature needs
Your private information is safe with pdfFiller. We employ end-to-end encryption, secure cloud storage, and advanced access control to protect your documents and maintain regulatory compliance.
How to fill out iem daily field report

How to fill out IEM daily field report:
01
Start by entering the date at the top of the report. This will help track the progress and timeline of the project or task being reported.
02
Provide a brief summary of the work conducted during the day. Include details such as the location of the work, the tasks completed, and any challenges encountered.
03
Document the equipment or tools used during the day. This may include specifics such as the model, serial number, and condition of the equipment.
04
Note down any issues or incidents that occurred during the day. This could involve safety concerns, accidents, or any unexpected events that require attention.
05
Include information about the manpower involved in the project. List the names and roles of team members who participated in the fieldwork.
06
Describe the progress made towards meeting project objectives or milestones. This can include the percentage of completion, any delays or setbacks, and the overall status of the project.
07
Record any materials used during the day. This could involve tracking the quantity, type, and source of materials used in the fieldwork.
08
Mention any environmental factors that may impact the project. This may include weather conditions, environmental regulations, or any other relevant factors.
Who needs the IEM daily field report?
01
Project managers: The daily field report provides project managers with real-time updates on the progress, challenges, and resources utilized in a project. It helps them make informed decisions and ensures the project stays on track.
02
Field supervisors: Supervisors responsible for overseeing field operations rely on the daily field report to monitor the activities of their team, identify potential issues, and allocate resources effectively.
03
Stakeholders: Investors, clients, and other stakeholders often require daily field reports to stay informed about the status and progress of a project. These reports help ensure transparency and accountability.
04
Legal and compliance teams: Daily field reports can serve as vital documentation in case of legal disputes, insurance claims, or compliance issues. They provide a detailed record of activities, incidents, and compliance with regulations.
05
Field technicians and workers: Field technicians and workers themselves may also need to fill out daily field reports. These reports help them keep track of their own activities, prioritize tasks, and communicate important information to their supervisors.
In summary, the IEM daily field report is a crucial tool for documenting and tracking field activities. It serves multiple stakeholders by providing real-time updates on project progress, resource utilization, and potential issues.
Fill
form
: Try Risk Free
For pdfFiller’s FAQs
Below is a list of the most common customer questions. If you can’t find an answer to your question, please don’t hesitate to reach out to us.
How can I send iem daily field report for eSignature?
When you're ready to share your iem daily field report, you can send it to other people and get the eSigned document back just as quickly. Share your PDF by email, fax, text message, or USPS mail. You can also notarize your PDF on the web. You don't have to leave your account to do this.
How do I complete iem daily field report online?
pdfFiller has made it simple to fill out and eSign iem daily field report. The application has capabilities that allow you to modify and rearrange PDF content, add fillable fields, and eSign the document. Begin a free trial to discover all of the features of pdfFiller, the best document editing solution.
How do I edit iem daily field report straight from my smartphone?
The pdfFiller apps for iOS and Android smartphones are available in the Apple Store and Google Play Store. You may also get the program at https://edit-pdf-ios-android.pdffiller.com/. Open the web app, sign in, and start editing iem daily field report.
What is iem daily field report?
IEM daily field report is a report that documents the activities, progress, and issues encountered during the day at a construction site.
Who is required to file iem daily field report?
The project manager or site supervisor is usually responsible for filing the IEM daily field report.
How to fill out iem daily field report?
To fill out IEM daily field report, one must provide detailed information regarding daily activities, progress, issues, and any other relevant information about the construction site.
What is the purpose of iem daily field report?
The purpose of IEM daily field report is to track the daily progress of the construction project, identify any issues or delays, and keep stakeholders informed.
What information must be reported on iem daily field report?
Information such as weather conditions, work activities completed, issues encountered, materials used, and manpower on site must be reported on the IEM daily field report.
Fill out your iem daily field report online with pdfFiller!
pdfFiller is an end-to-end solution for managing, creating, and editing documents and forms in the cloud. Save time and hassle by preparing your tax forms online.

Iem Daily Field Report is not the form you're looking for?Search for another form here.
Relevant keywords
Related Forms
If you believe that this page should be taken down, please follow our DMCA take down process
here
.
This form may include fields for payment information. Data entered in these fields is not covered by PCI DSS compliance.