Get the free NPS Form 10-900
Show details
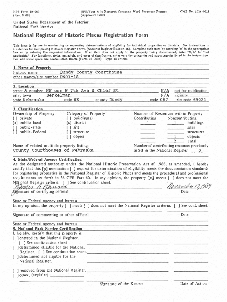
This document is used for nominating or requesting determination of eligibility for individual properties or districts to be included in the National Register of Historic Places.
We are not affiliated with any brand or entity on this form
Get, Create, Make and Sign nps form 10-900
Edit your nps form 10-900 form online
Type text, complete fillable fields, insert images, highlight or blackout data for discretion, add comments, and more.
Add your legally-binding signature
Draw or type your signature, upload a signature image, or capture it with your digital camera.
Share your form instantly
Email, fax, or share your nps form 10-900 form via URL. You can also download, print, or export forms to your preferred cloud storage service.
Editing nps form 10-900 online
Follow the guidelines below to take advantage of the professional PDF editor:
1
Register the account. Begin by clicking Start Free Trial and create a profile if you are a new user.
2
Upload a document. Select Add New on your Dashboard and transfer a file into the system in one of the following ways: by uploading it from your device or importing from the cloud, web, or internal mail. Then, click Start editing.
3
Edit nps form 10-900. Add and change text, add new objects, move pages, add watermarks and page numbers, and more. Then click Done when you're done editing and go to the Documents tab to merge or split the file. If you want to lock or unlock the file, click the lock or unlock button.
4
Save your file. Choose it from the list of records. Then, shift the pointer to the right toolbar and select one of the several exporting methods: save it in multiple formats, download it as a PDF, email it, or save it to the cloud.
pdfFiller makes dealing with documents a breeze. Create an account to find out!
Uncompromising security for your PDF editing and eSignature needs
Your private information is safe with pdfFiller. We employ end-to-end encryption, secure cloud storage, and advanced access control to protect your documents and maintain regulatory compliance.
How to fill out nps form 10-900
How to fill out NPS Form 10-900
01
Gather necessary information about the property, including its historical significance, location, and architectural details.
02
Fill out the identification section with the name of the property and address.
03
Provide a clear description of the property in the narrative section, detailing its historical context and significance.
04
Include a statement of significance that explains why the property is important to the history, culture, or architecture.
05
List the owner(s) of the property in the owner section, including their contact information.
06
Include photographs of the property, ensuring they are high-quality and clearly depict the features mentioned in the form.
07
Attach any additional documentation or maps that support the nomination.
08
Sign and date the application before submission.
Who needs NPS Form 10-900?
01
Individuals or organizations seeking to nominate a property for listing in the National Register of Historic Places.
02
Property owners or stakeholders who wish to protect and preserve a property of historical significance.
03
Federal, state, or local agencies involved in preservation efforts.
Fill
form
: Try Risk Free
People Also Ask about
Can you renovate a house on the National Register of historic Place?
Under Federal Law, the listing of a property in the National Register places no restrictions on what a non-federal owner may do with their property up to and including destruction, unless the property is involved in a project that receives Federal assistance, usually funding or licensing/permitting.
Are historical landmarks public property?
Approximately half of the National Historic Landmarks are privately owned. The National Historic Landmarks Program relies on suggestions for new designations from the National Park Service, which also assists in maintaining the landmarks.
Who is eligible for the NRHP?
The first requirement for National Register listing is that the property be at least 50 years old. Then, the property must be associated with a historical event, a significant person, an example of notable architecture, or provide information important to understanding history and prehistory.
How do I get my house on the National Register of Historic Places?
National Register Listing Process Nominations can be submitted to your SHPO from property owners, historical societies, preservation organizations, governmental agencies, and other individuals or groups. Official National Register Nomination Forms are downloadable or from your State Historic Preservation Office.
Can you renovate on the National Register of Historic Places?
Yes. Unless your home is subject to the above restrictions (receiving federal tax credits, protected under a local historic preservation ordinance, etc.), listing on the National Register does not restrict your right to modify your home. Severe alterations may, however, result in removal from the National Register.
Can you remove a house from a historic registry?
The National Historic Landmark designation of a property can be considered for withdrawal either at the request of the owner or on the initiative of the Secretary of the Interior.
What is the 50 year rule for NPS?
Generally, properties eligible for listing in the National Register are at least 50 years old. Properties less than 50 years of age must be exceptionally important to be considered eligible for listing.
How do I remove a property from the National Register of historic Place?
Petitions for removal are submitted to the Keeper by the State Historic Preservation Officer for State nominations, the Federal Preservation Officer for Federal nominations, and directly to the Keeper from persons or local governments where there is no approved State Historic Preservation Program.
For pdfFiller’s FAQs
Below is a list of the most common customer questions. If you can’t find an answer to your question, please don’t hesitate to reach out to us.
What is NPS Form 10-900?
NPS Form 10-900 is the National Register of Historic Places Registration Form used to document properties being considered for listing in the National Register.
Who is required to file NPS Form 10-900?
Anyone seeking to nominate a property for inclusion in the National Register of Historic Places must file NPS Form 10-900.
How to fill out NPS Form 10-900?
To fill out NPS Form 10-900, you must provide detailed information about the property, including its location, historical significance, architectural details, and photographs that support the nomination.
What is the purpose of NPS Form 10-900?
The purpose of NPS Form 10-900 is to gather comprehensive information about a property to assess its eligibility for inclusion in the National Register of Historic Places.
What information must be reported on NPS Form 10-900?
The NPS Form 10-900 must report information such as the property's name, address, legal description, significance in history or architecture, and a description of the property and its condition.
Fill out your nps form 10-900 online with pdfFiller!
pdfFiller is an end-to-end solution for managing, creating, and editing documents and forms in the cloud. Save time and hassle by preparing your tax forms online.
Nps Form 10-900 is not the form you're looking for?Search for another form here.
Relevant keywords
Related Forms
If you believe that this page should be taken down, please follow our DMCA take down process
here
.
This form may include fields for payment information. Data entered in these fields is not covered by PCI DSS compliance.