Get the free Building Design Information - Toronto
Show details
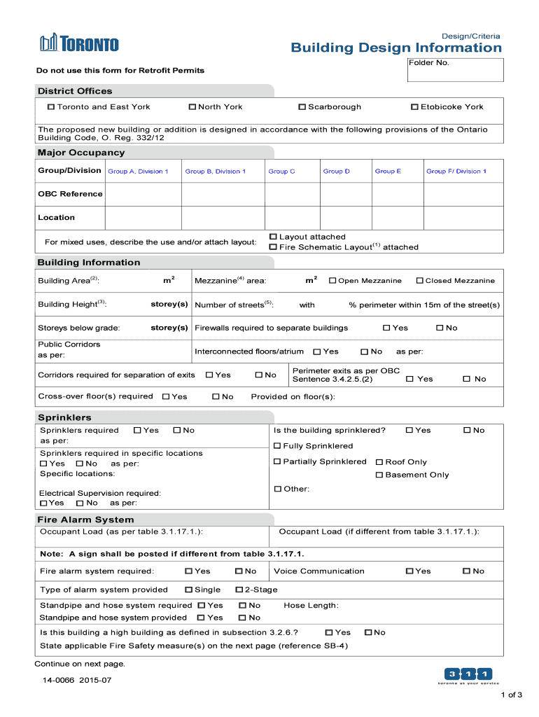
Print Reset Form Design/Criteria Building Design Information Folder No. Do not use this form for Retrofit Permits District Offices Toronto and East York North York Scarborough Etobicoke York The proposed
We are not affiliated with any brand or entity on this form
Get, Create, Make and Sign building design information
Edit your building design information form online
Type text, complete fillable fields, insert images, highlight or blackout data for discretion, add comments, and more.
Add your legally-binding signature
Draw or type your signature, upload a signature image, or capture it with your digital camera.
Share your form instantly
Email, fax, or share your building design information form via URL. You can also download, print, or export forms to your preferred cloud storage service.
How to edit building design information online
Here are the steps you need to follow to get started with our professional PDF editor:
1
Register the account. Begin by clicking Start Free Trial and create a profile if you are a new user.
2
Prepare a file. Use the Add New button. Then upload your file to the system from your device, importing it from internal mail, the cloud, or by adding its URL.
3
Edit building design information. Add and change text, add new objects, move pages, add watermarks and page numbers, and more. Then click Done when you're done editing and go to the Documents tab to merge or split the file. If you want to lock or unlock the file, click the lock or unlock button.
4
Save your file. Select it from your records list. Then, click the right toolbar and select one of the various exporting options: save in numerous formats, download as PDF, email, or cloud.
Dealing with documents is simple using pdfFiller. Try it right now!
Uncompromising security for your PDF editing and eSignature needs
Your private information is safe with pdfFiller. We employ end-to-end encryption, secure cloud storage, and advanced access control to protect your documents and maintain regulatory compliance.
How to fill out building design information
01
Start by gathering all necessary information regarding the building design. This includes details such as the purpose of the building, the desired layout, the number of floors, the total area, and any specific requirements or preferences.
02
Begin filling out the building design information by providing accurate contact details. This should include your name, email address, phone number, and any other relevant information.
03
Specify the location of the building. This can be as specific as an address or general as a city or region. However, including the location is important for architectural and planning purposes.
04
Describe the purpose of the building. Is it a residential property, commercial space, or an industrial facility? Provide a brief explanation of what the building will be used for to ensure proper design and functionality.
05
Outline the desired layout of the building. Do you prefer an open floor plan, multiple rooms or compartments, or any specific architectural features? Make sure to explain your preferences clearly to the designer or architect.
06
Include information about the number of floors in the building. This will help the designer understand the vertical dimensions of the structure and plan accordingly.
07
Specify the total area or square footage of the building. This will aid the designer in determining the appropriate size and scale for the project.
08
Provide any specific requirements or preferences. This can include details such as the use of sustainable materials, energy-efficient design, accessibility considerations, or any special features you want to incorporate.
09
Finally, it is crucial to note who needs the building design information. Typically, this information is required by architects, designers, contractors, and construction professionals who will be involved in bringing the design to life. Additionally, building owners, developers, or individuals looking to renovate or construct a new building may also need access to this information.
In conclusion, filling out building design information involves gathering essential details, providing accurate contact information, specifying building location and purpose, describing the desired layout, indicating the number of floors and area, mentioning any specific requirements, and understanding who needs this information.
Fill
form
: Try Risk Free
For pdfFiller’s FAQs
Below is a list of the most common customer questions. If you can’t find an answer to your question, please don’t hesitate to reach out to us.
How do I execute building design information online?
pdfFiller makes it easy to finish and sign building design information online. It lets you make changes to original PDF content, highlight, black out, erase, and write text anywhere on a page, legally eSign your form, and more, all from one place. Create a free account and use the web to keep track of professional documents.
Can I create an eSignature for the building design information in Gmail?
It's easy to make your eSignature with pdfFiller, and then you can sign your building design information right from your Gmail inbox with the help of pdfFiller's add-on for Gmail. This is a very important point: You must sign up for an account so that you can save your signatures and signed documents.
How can I edit building design information on a smartphone?
You can do so easily with pdfFiller’s applications for iOS and Android devices, which can be found at the Apple Store and Google Play Store, respectively. Alternatively, you can get the app on our web page: https://edit-pdf-ios-android.pdffiller.com/. Install the application, log in, and start editing building design information right away.
What is building design information?
Building design information includes detailed plans, specifications, and other documents that outline the design of a building.
Who is required to file building design information?
Architects, engineers, and other design professionals are typically required to file building design information.
How to fill out building design information?
Building design information is typically filled out by providing detailed plans, specifications, and other relevant documents.
What is the purpose of building design information?
Building design information is used to ensure that a building is structurally sound, meets building codes, and functions as intended.
What information must be reported on building design information?
Building design information must include detailed plans, specifications, materials used, and other design details.
Fill out your building design information online with pdfFiller!
pdfFiller is an end-to-end solution for managing, creating, and editing documents and forms in the cloud. Save time and hassle by preparing your tax forms online.
Building Design Information is not the form you're looking for?Search for another form here.
Relevant keywords
Related Forms
If you believe that this page should be taken down, please follow our DMCA take down process
here
.
This form may include fields for payment information. Data entered in these fields is not covered by PCI DSS compliance.