
Get the free 425 GABILAN DRIVE, SOLEDAD, CA 93960 - soledadusd
Show details
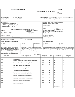
AGENDA REGULAR MEETING OF THE GOVERNING BOARD OF THE SOLEDAD UNIFIED SCHOOL DISTRICT MISSION ROOM 425 GAVIN N DRIVE, SOLEDAD, CA 93960 WEDNESDAY, OCTOBER 8, 2014, The Agenda, meeting notice and agenda
We are not affiliated with any brand or entity on this form
Get, Create, Make and Sign 425 gabilan drive soledad

Edit your 425 gabilan drive soledad form online
Type text, complete fillable fields, insert images, highlight or blackout data for discretion, add comments, and more.

Add your legally-binding signature
Draw or type your signature, upload a signature image, or capture it with your digital camera.

Share your form instantly
Email, fax, or share your 425 gabilan drive soledad form via URL. You can also download, print, or export forms to your preferred cloud storage service.
Editing 425 gabilan drive soledad online
Use the instructions below to start using our professional PDF editor:
1
Sign into your account. If you don't have a profile yet, click Start Free Trial and sign up for one.
2
Prepare a file. Use the Add New button to start a new project. Then, using your device, upload your file to the system by importing it from internal mail, the cloud, or adding its URL.
3
Edit 425 gabilan drive soledad. Rearrange and rotate pages, insert new and alter existing texts, add new objects, and take advantage of other helpful tools. Click Done to apply changes and return to your Dashboard. Go to the Documents tab to access merging, splitting, locking, or unlocking functions.
4
Save your file. Select it from your records list. Then, click the right toolbar and select one of the various exporting options: save in numerous formats, download as PDF, email, or cloud.
It's easier to work with documents with pdfFiller than you can have ever thought. You can sign up for an account to see for yourself.
Uncompromising security for your PDF editing and eSignature needs
Your private information is safe with pdfFiller. We employ end-to-end encryption, secure cloud storage, and advanced access control to protect your documents and maintain regulatory compliance.
How to fill out 425 gabilan drive soledad

How to fill out 425 Gabilan Drive Soledad:
01
Begin by writing your full name in the designated space on the form.
02
Provide your complete address, including 425 Gabilan Drive Soledad, in the appropriate fields.
03
Fill in any required contact information, such as your phone number and email address.
04
Indicate the purpose of the form and why you are filling it out.
05
If the form requires a signature, sign your name in the designated area.
06
Double-check all information you have provided to ensure accuracy and completeness.
Who needs 425 Gabilan Drive Soledad:
01
Individuals who are seeking to provide their contact information and address for official purposes may need 425 Gabilan Drive Soledad.
02
Companies or organizations that require a valid address for a client, employee, or customer may need 425 Gabilan Drive Soledad as part of their records.
03
Individuals who are purchasing a property or renting a residence at 425 Gabilan Drive Soledad would need this address for legal and contractual purposes.
Fill
form
: Try Risk Free
For pdfFiller’s FAQs
Below is a list of the most common customer questions. If you can’t find an answer to your question, please don’t hesitate to reach out to us.
How can I send 425 gabilan drive soledad for eSignature?
Once your 425 gabilan drive soledad is ready, you can securely share it with recipients and collect eSignatures in a few clicks with pdfFiller. You can send a PDF by email, text message, fax, USPS mail, or notarize it online - right from your account. Create an account now and try it yourself.
Where do I find 425 gabilan drive soledad?
The premium version of pdfFiller gives you access to a huge library of fillable forms (more than 25 million fillable templates). You can download, fill out, print, and sign them all. State-specific 425 gabilan drive soledad and other forms will be easy to find in the library. Find the template you need and use advanced editing tools to make it your own.
Can I create an electronic signature for the 425 gabilan drive soledad in Chrome?
You can. With pdfFiller, you get a strong e-signature solution built right into your Chrome browser. Using our addon, you may produce a legally enforceable eSignature by typing, sketching, or photographing it. Choose your preferred method and eSign in minutes.
What is 425 gabilan drive soledad?
425 Gabilan Drive Soledad is the address of a specific location in Soledad, California.
Who is required to file 425 gabilan drive soledad?
The specific individual or entity required to file at 425 Gabilan Drive Soledad would depend on the context or purpose of the filing.
How to fill out 425 gabilan drive soledad?
The process to fill out 425 Gabilan Drive Soledad would depend on the specific form or document being filed.
What is the purpose of 425 gabilan drive soledad?
The purpose of 425 Gabilan Drive Soledad would depend on the specific context of the filing or location.
What information must be reported on 425 gabilan drive soledad?
The information required to be reported on 425 Gabilan Drive Soledad would depend on the specific form or document being filed.
Fill out your 425 gabilan drive soledad online with pdfFiller!
pdfFiller is an end-to-end solution for managing, creating, and editing documents and forms in the cloud. Save time and hassle by preparing your tax forms online.

425 Gabilan Drive Soledad is not the form you're looking for?Search for another form here.
Relevant keywords
Related Forms
If you believe that this page should be taken down, please follow our DMCA take down process
here
.
This form may include fields for payment information. Data entered in these fields is not covered by PCI DSS compliance.