Get the free File Attachment Section - safetyandhealth ext wvu
Show details
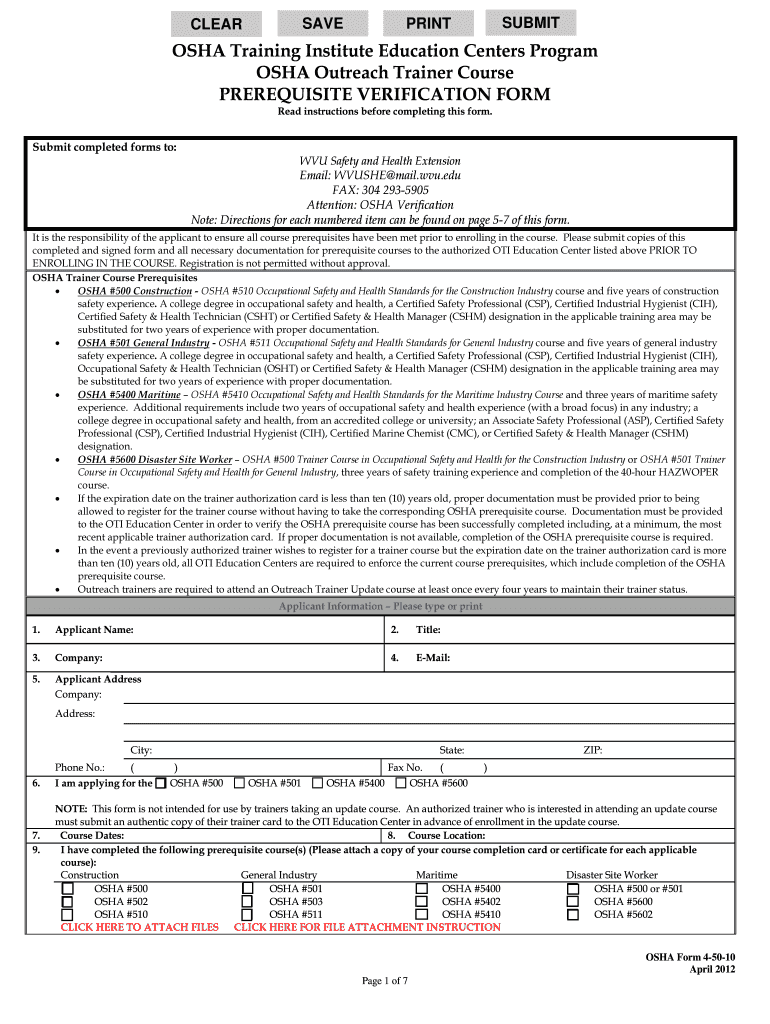
SAVE CLEAR SUBMIT PRINT OSHA Training Institute Education Centers Program OSHA Outreach Trainer Course PREREQUISITE VERIFICATION FORM Read instructions before completing this form. Submit completed
We are not affiliated with any brand or entity on this form
Get, Create, Make and Sign file attachment section
Edit your file attachment section form online
Type text, complete fillable fields, insert images, highlight or blackout data for discretion, add comments, and more.
Add your legally-binding signature
Draw or type your signature, upload a signature image, or capture it with your digital camera.
Share your form instantly
Email, fax, or share your file attachment section form via URL. You can also download, print, or export forms to your preferred cloud storage service.
Editing file attachment section online
Here are the steps you need to follow to get started with our professional PDF editor:
1
Log in. Click Start Free Trial and create a profile if necessary.
2
Upload a file. Select Add New on your Dashboard and upload a file from your device or import it from the cloud, online, or internal mail. Then click Edit.
3
Edit file attachment section. Rearrange and rotate pages, add and edit text, and use additional tools. To save changes and return to your Dashboard, click Done. The Documents tab allows you to merge, divide, lock, or unlock files.
4
Get your file. When you find your file in the docs list, click on its name and choose how you want to save it. To get the PDF, you can save it, send an email with it, or move it to the cloud.
It's easier to work with documents with pdfFiller than you could have believed. You can sign up for an account to see for yourself.
Uncompromising security for your PDF editing and eSignature needs
Your private information is safe with pdfFiller. We employ end-to-end encryption, secure cloud storage, and advanced access control to protect your documents and maintain regulatory compliance.
How to fill out file attachment section
How to Fill Out File Attachment Section:
01
Start by locating the file attachment section on the relevant platform or document. This section is typically labeled as "File Attachments" or "Attachment Upload."
02
Click on the file attachment section to open it. This action may prompt a file explorer window to appear, allowing you to select the file you wish to attach.
03
Navigate to the location where the desired file is saved on your device. Once you have located it, click on the file to select it.
04
After selecting the file, click on the "Open" or "Choose" button in the file explorer window. This will attach the file to the file attachment section.
05
Ensure that the attached file is displayed or listed in the file attachment section. Review the file name to verify that it corresponds to the intended attachment.
06
If there is a limit to the number or size of attachments, make sure you adhere to these limitations. Some platforms may only allow a certain number of attachments or have restrictions on file sizes.
07
If necessary, repeat the previous steps to attach any additional files. Some file attachment sections allow multiple files to be uploaded at once, while others may require attachments to be added one at a time.
08
Once all desired files are attached, double-check that they are correctly displayed in the file attachment section. Make sure that no errors or missing attachments are present.
09
If there are any specific instructions or additional information required when filling out the file attachment section, be sure to follow those guidelines. This may include providing file descriptions, tagging or categorizing attachments, or specifying the purpose of each attachment.
Who Needs File Attachment Section:
01
Individuals submitting a job application may need a file attachment section to include their resume, cover letter, or other supporting documents.
02
Students might require a file attachment section when submitting assignments or projects to their teachers or professors.
03
Professionals in various fields, such as design, writing, or photography, might use a file attachment section to showcase their portfolio or samples of their work.
04
Businesses or organizations may utilize a file attachment section when requesting documents or files from clients, customers, or partners.
05
Online platforms or forums that allow users to share files or collaborate on projects often provide a file attachment section for convenience and organization.
06
Individuals sending important documents, such as contracts or legal forms, via email or online platforms may utilize a file attachment section to securely transmit these files.
07
Researchers or academics could require a file attachment section to submit supplementary materials, data sets, or research papers alongside their submissions.
08
Event organizers or registrants might use a file attachment section to include necessary documents, such as identification or permission forms, in their registration process.
Remember, the need for a file attachment section will vary depending on the specific context or platform in use. Always consider the requirements or instructions provided by the relevant entity when determining whether or how to use this section.
Fill
form
: Try Risk Free
For pdfFiller’s FAQs
Below is a list of the most common customer questions. If you can’t find an answer to your question, please don’t hesitate to reach out to us.
What is file attachment section?
File attachment section is a section in a document where additional files or documents can be attached to provide further information.
Who is required to file file attachment section?
The individuals or entities specified in the document instructions are required to file the file attachment section.
How to fill out file attachment section?
The file attachment section can be filled out by attaching the relevant files or documents as instructed in the document.
What is the purpose of file attachment section?
The purpose of the file attachment section is to provide additional information or supporting documents that are relevant to the main document.
What information must be reported on file attachment section?
The information to be reported on the file attachment section is typically specified in the document instructions.
How can I manage my file attachment section directly from Gmail?
In your inbox, you may use pdfFiller's add-on for Gmail to generate, modify, fill out, and eSign your file attachment section and any other papers you receive, all without leaving the program. Install pdfFiller for Gmail from the Google Workspace Marketplace by visiting this link. Take away the need for time-consuming procedures and handle your papers and eSignatures with ease.
How can I get file attachment section?
It’s easy with pdfFiller, a comprehensive online solution for professional document management. Access our extensive library of online forms (over 25M fillable forms are available) and locate the file attachment section in a matter of seconds. Open it right away and start customizing it using advanced editing features.
How do I fill out file attachment section on an Android device?
Complete your file attachment section and other papers on your Android device by using the pdfFiller mobile app. The program includes all of the necessary document management tools, such as editing content, eSigning, annotating, sharing files, and so on. You will be able to view your papers at any time as long as you have an internet connection.
Fill out your file attachment section online with pdfFiller!
pdfFiller is an end-to-end solution for managing, creating, and editing documents and forms in the cloud. Save time and hassle by preparing your tax forms online.
File Attachment Section is not the form you're looking for?Search for another form here.
Relevant keywords
Related Forms
If you believe that this page should be taken down, please follow our DMCA take down process
here
.
This form may include fields for payment information. Data entered in these fields is not covered by PCI DSS compliance.