Form preview

Get the free 111-b123b E 2nd St - the Washington Public Library - washington lib ia

Get Form
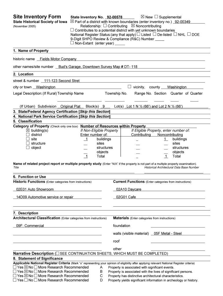
Site Inventory Form State Historical Society of Iowa (November 2005) State Inventory No. 92-00578 New Supplemental Part of a district with known boundaries (enter inventory no.) 92-00349 Relationship:
We are not affiliated with any brand or entity on this form

Get, Create, Make and Sign 111-b123b e 2nd st

Edit
Edit your 111-b123b e 2nd st form online
Type text, complete fillable fields, insert images, highlight or blackout data for discretion, add comments, and more.
Add
Add your legally-binding signature
Draw or type your signature, upload a signature image, or capture it with your digital camera.
Share
Share your form instantly
Email, fax, or share your 111-b123b e 2nd st form via URL. You can also download, print, or export forms to your preferred cloud storage service.

How to edit 111-b123b e 2nd st online

9.5
Ease of Setup
pdfFiller User Ratings on G2
9.0
Ease of Use
pdfFiller User Ratings on G2
Use the instructions below to start using our professional PDF editor:
1
Log in. Click Start Free Trial and create a profile if necessary.
2
Upload a file. Select Add New on your Dashboard and upload a file from your device or import it from the cloud, online, or internal mail. Then click Edit.
3
Edit 111-b123b e 2nd st. Replace text, adding objects, rearranging pages, and more. Then select the Documents tab to combine, divide, lock or unlock the file.
4
Save your file. Choose it from the list of records. Then, shift the pointer to the right toolbar and select one of the several exporting methods: save it in multiple formats, download it as a PDF, email it, or save it to the cloud.
With pdfFiller, it's always easy to work with documents. Try it out!

Uncompromising security for your PDF editing and eSignature needs

Your private information is safe with pdfFiller. We employ end-to-end encryption, secure cloud storage, and advanced access control to protect your documents and maintain regulatory compliance.
GDPR
AICPA SOC 2
PCI
HIPAA
CCPA
FDA

How to fill out 111-b123b e 2nd st

Illustration

How to fill out 111-b123b e 2nd st:

01
Start by writing your full name in the designated space on the form.
02
Next, provide your complete mailing address, including the apartment or unit number 111-b123b.
03
Fill in the box for "e 2nd st" to indicate that your address is located on East 2nd Street.
04
If necessary, include any additional information or instructions related to your address in the provided space.
05
Lastly, carefully review the form for accuracy before submitting it.

Who needs 111-b123b e 2nd st:

01
Individuals who reside at this specific address, 111-b123b e 2nd st, will need to provide their address information on various forms and documents.
02
Anyone who wants to receive mail or packages at this address will also need to use the address 111-b123b e 2nd st when filling out shipping or mailing labels.
03
It is important to accurately provide the address to ensure that any correspondence or shipments reach the intended recipient at 111-b123b e 2nd st.
Fill form : Try Risk Free
Users Most Likely To Recommend - Summer 2025
Grid Leader in Small-Business - Summer 2025
High Performer - Summer 2025
Regional Leader - Summer 2025
Easiest To Do Business With - Summer 2025
Best Meets Requirements- Summer 2025
Rate the form
4.0
Satisfied
47 Votes

For pdfFiller’s FAQs

Below is a list of the most common customer questions. If you can’t find an answer to your question, please don’t hesitate to reach out to us.

It’s easy with pdfFiller, a comprehensive online solution for professional document management. Access our extensive library of online forms (over 25M fillable forms are available) and locate the 111-b123b e 2nd st in a matter of seconds. Open it right away and start customizing it using advanced editing features.
Install the pdfFiller app on your iOS device to fill out papers. Create an account or log in if you already have one. After registering, upload your 111-b123b e 2nd st. You may now use pdfFiller's advanced features like adding fillable fields and eSigning documents from any device, anywhere.
You can make any changes to PDF files, like 111-b123b e 2nd st, with the help of the pdfFiller Android app. Edit, sign, and send documents right from your phone or tablet. You can use the app to make document management easier wherever you are.
The address 111-b123b e 2nd st is a location.
Individuals or entities specified by the regulations are required to file 111-b123b e 2nd st.
To fill out 111-b123b e 2nd st, follow the instructions provided in the form and input the required information.
The purpose of 111-b123b e 2nd st is to collect specific information as required by the governing authority.
The information that must be reported on 111-b123b e 2nd st includes details as specified in the form.
Fill out your 111-b123b e 2nd st online with pdfFiller!

pdfFiller is an end-to-end solution for managing, creating, and editing documents and forms in the cloud. Save time and hassle by preparing your tax forms online.

Get started now
Form preview
If you believe that this page should be taken down, please follow our DMCA take down process here .
This form may include fields for payment information. Data entered in these fields is not covered by PCI DSS compliance.