
Get the free Internal Use Elevator Application - Islip New York
Show details
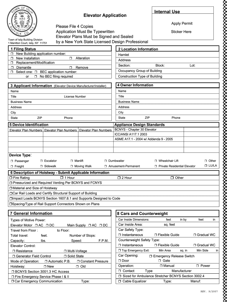
Internal Use Elevator Application Please File 4 Copies Application Must Be Typewritten Elevator Plans Must be Signed and Sealed by a New York State Licensed Design Professional Town of Slip Building
We are not affiliated with any brand or entity on this form
Get, Create, Make and Sign internal use elevator application

Edit your internal use elevator application form online
Type text, complete fillable fields, insert images, highlight or blackout data for discretion, add comments, and more.

Add your legally-binding signature
Draw or type your signature, upload a signature image, or capture it with your digital camera.

Share your form instantly
Email, fax, or share your internal use elevator application form via URL. You can also download, print, or export forms to your preferred cloud storage service.
Editing internal use elevator application online
To use our professional PDF editor, follow these steps:
1
Set up an account. If you are a new user, click Start Free Trial and establish a profile.
2
Simply add a document. Select Add New from your Dashboard and import a file into the system by uploading it from your device or importing it via the cloud, online, or internal mail. Then click Begin editing.
3
Edit internal use elevator application. Rearrange and rotate pages, add and edit text, and use additional tools. To save changes and return to your Dashboard, click Done. The Documents tab allows you to merge, divide, lock, or unlock files.
4
Save your file. Choose it from the list of records. Then, shift the pointer to the right toolbar and select one of the several exporting methods: save it in multiple formats, download it as a PDF, email it, or save it to the cloud.
With pdfFiller, it's always easy to deal with documents.
Uncompromising security for your PDF editing and eSignature needs
Your private information is safe with pdfFiller. We employ end-to-end encryption, secure cloud storage, and advanced access control to protect your documents and maintain regulatory compliance.
How to fill out internal use elevator application

How to fill out internal use elevator application:
01
Start by obtaining the internal use elevator application form from the relevant authority or department. This form is typically provided by the building management or facilities department.
02
Read the instructions carefully before filling out the application form. Make sure you understand all the requirements and guidelines to ensure a smooth process.
03
Fill in your personal information accurately. This may include your full name, contact details, employee or resident identification number, and any other relevant information requested.
04
Provide details about the purpose of your elevator usage. Explain why you require access to the internal elevators and how it will benefit your work or living situation.
05
If applicable, specify any special needs or requirements you may have that necessitate internal elevator usage. For example, if you have a physical disability or need to transport heavy equipment, mention these details.
06
Include any supporting documents or letters of recommendation, if required. These documents can strengthen your application and provide additional proof for your need to access the internal elevators.
07
Double-check all the information you have entered on the application form for accuracy and completeness. Ensure that you have signed and dated the form where required.
08
Submit the completed application form to the designated authority or department according to the instructions provided. Keep a copy of the application for your records.
09
Follow up with the relevant authority or department to inquire about the status of your application. They will likely review your submission and notify you of their decision within a certain timeframe.
Who needs internal use elevator application:
01
Employees working in a multi-story building who require frequent access to different floors for their job responsibilities may need an internal use elevator application.
02
Residents living in high-rise condominiums or apartments who have medical conditions or physical limitations that make using the regular elevators challenging or unsafe may also need an internal use elevator application.
03
Individuals with specific needs such as transporting heavy equipment, large items, or materials that cannot be accommodated by the regular elevators may need to apply for internal elevator usage.
Fill
form
: Try Risk Free
For pdfFiller’s FAQs
Below is a list of the most common customer questions. If you can’t find an answer to your question, please don’t hesitate to reach out to us.
How can I send internal use elevator application for eSignature?
Once your internal use elevator application is ready, you can securely share it with recipients and collect eSignatures in a few clicks with pdfFiller. You can send a PDF by email, text message, fax, USPS mail, or notarize it online - right from your account. Create an account now and try it yourself.
Can I sign the internal use elevator application electronically in Chrome?
Yes. By adding the solution to your Chrome browser, you can use pdfFiller to eSign documents and enjoy all of the features of the PDF editor in one place. Use the extension to create a legally-binding eSignature by drawing it, typing it, or uploading a picture of your handwritten signature. Whatever you choose, you will be able to eSign your internal use elevator application in seconds.
Can I create an eSignature for the internal use elevator application in Gmail?
With pdfFiller's add-on, you may upload, type, or draw a signature in Gmail. You can eSign your internal use elevator application and other papers directly in your mailbox with pdfFiller. To preserve signed papers and your personal signatures, create an account.
What is internal use elevator application?
Internal use elevator application is a form that must be submitted by building owners or managers to request permission for the installation or operation of an elevator for access limited to a specific group of individuals within the building.
Who is required to file internal use elevator application?
Building owners or managers are required to file the internal use elevator application.
How to fill out internal use elevator application?
The internal use elevator application form can typically be obtained from the local building or planning department and must be completed with detailed information regarding the purpose, location, and specifications of the elevator.
What is the purpose of internal use elevator application?
The purpose of the internal use elevator application is to ensure that the installation and operation of elevators for limited access within a building comply with safety regulations and building codes.
What information must be reported on internal use elevator application?
The internal use elevator application must include information such as the purpose of the elevator, location of installation, specifications of the elevator, and any relevant safety measures.
Fill out your internal use elevator application online with pdfFiller!
pdfFiller is an end-to-end solution for managing, creating, and editing documents and forms in the cloud. Save time and hassle by preparing your tax forms online.

Internal Use Elevator Application is not the form you're looking for?Search for another form here.
Relevant keywords
Related Forms
If you believe that this page should be taken down, please follow our DMCA take down process
here
.
This form may include fields for payment information. Data entered in these fields is not covered by PCI DSS compliance.