Get the free Monroe county b2010 taxb foreclosure land auction - bTaxb-saleinfo - tax-sale
Show details
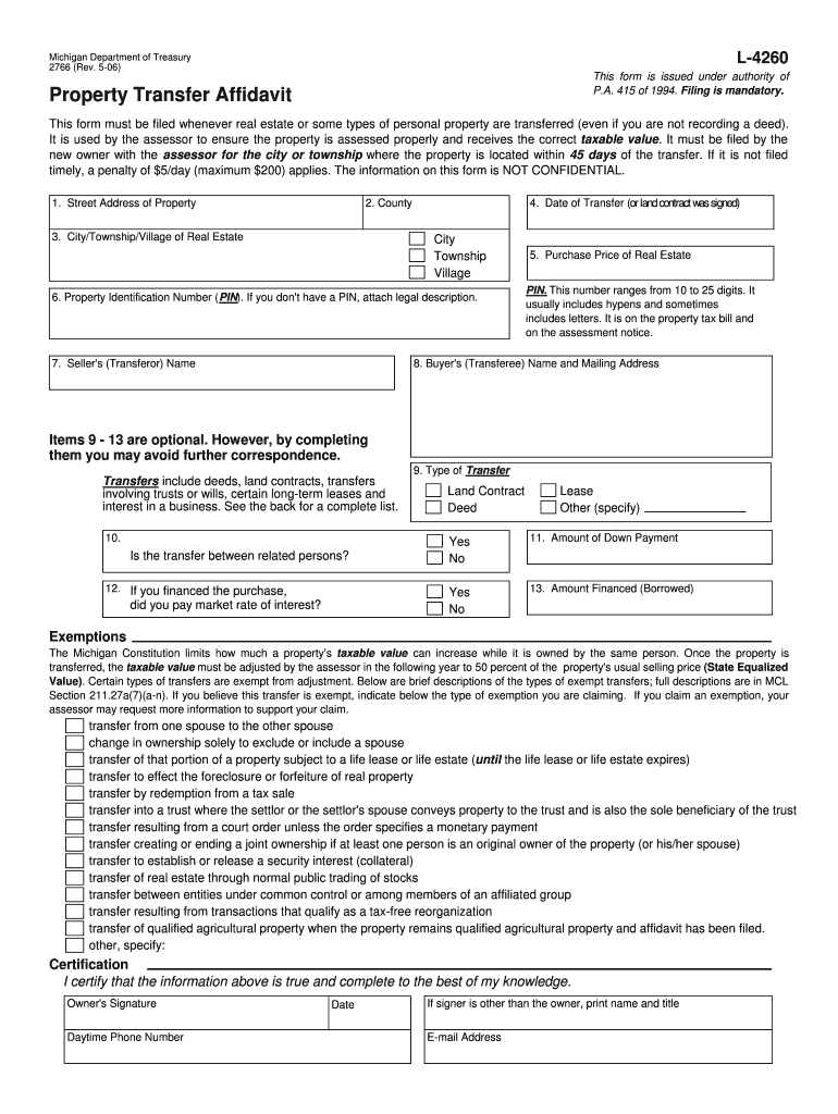
MONROE COUNTY 2010 TAX FORECLOSURE LAND AUCTION AUGUST 4, 2010, REGISTRATION AUCTION 11:00 A.M. 12:00 P.M. HOLIDAY INN EXPRESS 1225 N. DIXIE HWY. MONROE, MI 48162 THE MONROE COUNTY TREASURER WILL
We are not affiliated with any brand or entity on this form
Get, Create, Make and Sign monroe county b2010 taxb
Edit your monroe county b2010 taxb form online
Type text, complete fillable fields, insert images, highlight or blackout data for discretion, add comments, and more.
Add your legally-binding signature
Draw or type your signature, upload a signature image, or capture it with your digital camera.
Share your form instantly
Email, fax, or share your monroe county b2010 taxb form via URL. You can also download, print, or export forms to your preferred cloud storage service.
How to edit monroe county b2010 taxb online
To use the services of a skilled PDF editor, follow these steps:
1
Log in. Click Start Free Trial and create a profile if necessary.
2
Upload a document. Select Add New on your Dashboard and transfer a file into the system in one of the following ways: by uploading it from your device or importing from the cloud, web, or internal mail. Then, click Start editing.
3
Edit monroe county b2010 taxb. Add and replace text, insert new objects, rearrange pages, add watermarks and page numbers, and more. Click Done when you are finished editing and go to the Documents tab to merge, split, lock or unlock the file.
4
Get your file. Select the name of your file in the docs list and choose your preferred exporting method. You can download it as a PDF, save it in another format, send it by email, or transfer it to the cloud.
pdfFiller makes dealing with documents a breeze. Create an account to find out!
Uncompromising security for your PDF editing and eSignature needs
Your private information is safe with pdfFiller. We employ end-to-end encryption, secure cloud storage, and advanced access control to protect your documents and maintain regulatory compliance.
How to fill out monroe county b2010 taxb
How to fill out monroe county b2010 taxb:
01
Start by gathering all necessary documents such as W-2 forms, 1099 forms, and receipts for deductions.
02
Complete the personal information section of the form, including your name, address, and social security number.
03
Provide details about your income in the appropriate section of the form, including any wages, salaries, or self-employment income.
04
Report any deductions that you qualify for, such as mortgage interest, medical expenses, or education expenses.
05
Calculate your taxable income by subtracting your deductions from your total income.
06
Determine your tax liability by using the appropriate tax rate based on your income bracket.
07
Complete any additional sections of the form, such as credits or exemptions, if applicable.
08
Double-check all information entered on the form for accuracy before submitting it.
09
Sign and date the form to certify that the information provided is accurate to the best of your knowledge.
Who needs monroe county b2010 taxb?
01
Individuals who live or own property in Monroe County and have an income that is subject to local taxation.
02
Property owners who need to report their tax liability for their properties in Monroe County.
03
Residents who have received income from sources within Monroe County and need to report it for tax purposes.
Fill
form
: Try Risk Free
For pdfFiller’s FAQs
Below is a list of the most common customer questions. If you can’t find an answer to your question, please don’t hesitate to reach out to us.
How can I get monroe county b2010 taxb?
The premium version of pdfFiller gives you access to a huge library of fillable forms (more than 25 million fillable templates). You can download, fill out, print, and sign them all. State-specific monroe county b2010 taxb and other forms will be easy to find in the library. Find the template you need and use advanced editing tools to make it your own.
How do I edit monroe county b2010 taxb straight from my smartphone?
Using pdfFiller's mobile-native applications for iOS and Android is the simplest method to edit documents on a mobile device. You may get them from the Apple App Store and Google Play, respectively. More information on the apps may be found here. Install the program and log in to begin editing monroe county b2010 taxb.
How do I edit monroe county b2010 taxb on an iOS device?
Create, modify, and share monroe county b2010 taxb using the pdfFiller iOS app. Easy to install from the Apple Store. You may sign up for a free trial and then purchase a membership.
What is monroe county b2010 taxb?
Monroe County B2010 Tax is a property tax levy that is used to fund various services and programs in Monroe County.
Who is required to file monroe county b2010 taxb?
All property owners in Monroe County are required to file and pay the B2010 tax.
How to fill out monroe county b2010 taxb?
To fill out the Monroe County B2010 Tax form, property owners must provide information about their property value and calculate the tax amount owed.
What is the purpose of monroe county b2010 taxb?
The purpose of the Monroe County B2010 Tax is to generate revenue to fund public services and infrastructure projects in the county.
What information must be reported on monroe county b2010 taxb?
Property owners must report their property value, ownership details, and any exemptions or deductions they are eligible for.
Fill out your monroe county b2010 taxb online with pdfFiller!
pdfFiller is an end-to-end solution for managing, creating, and editing documents and forms in the cloud. Save time and hassle by preparing your tax forms online.
Monroe County b2010 Taxb is not the form you're looking for?Search for another form here.
Relevant keywords
Related Forms
If you believe that this page should be taken down, please follow our DMCA take down process
here
.
This form may include fields for payment information. Data entered in these fields is not covered by PCI DSS compliance.