
Get the free Project Name/Location For Which Firm Is Filing - taftpubliclibrary
Show details
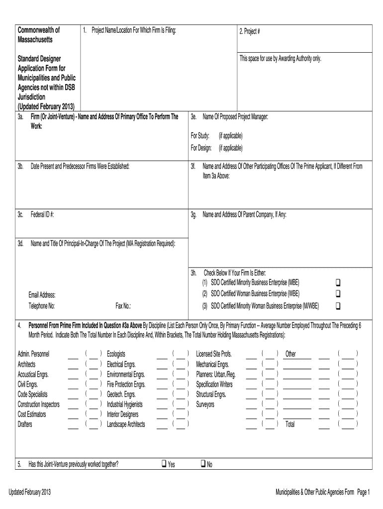
Commonwealth of Massachusetts 1. Project Name×Location For Which Firm Is Filing: 2. Project # This space for use by Awarding Authority only. Standard Designer Application Form for Municipalities
We are not affiliated with any brand or entity on this form
Get, Create, Make and Sign project namelocation for which

Edit your project namelocation for which form online
Type text, complete fillable fields, insert images, highlight or blackout data for discretion, add comments, and more.

Add your legally-binding signature
Draw or type your signature, upload a signature image, or capture it with your digital camera.

Share your form instantly
Email, fax, or share your project namelocation for which form via URL. You can also download, print, or export forms to your preferred cloud storage service.
How to edit project namelocation for which online
Follow the steps below to benefit from the PDF editor's expertise:
1
Check your account. It's time to start your free trial.
2
Upload a file. Select Add New on your Dashboard and upload a file from your device or import it from the cloud, online, or internal mail. Then click Edit.
3
Edit project namelocation for which. Rearrange and rotate pages, insert new and alter existing texts, add new objects, and take advantage of other helpful tools. Click Done to apply changes and return to your Dashboard. Go to the Documents tab to access merging, splitting, locking, or unlocking functions.
4
Get your file. Select your file from the documents list and pick your export method. You may save it as a PDF, email it, or upload it to the cloud.
Dealing with documents is always simple with pdfFiller.
Uncompromising security for your PDF editing and eSignature needs
Your private information is safe with pdfFiller. We employ end-to-end encryption, secure cloud storage, and advanced access control to protect your documents and maintain regulatory compliance.
How to fill out project namelocation for which

How to fill out project namelocation for which?
01
Start by identifying the project name. This should be a clear and concise name that accurately represents the purpose or goal of the project.
02
Next, determine the location for the project. This could be a physical address if it is a construction or real estate project, or it could be a virtual location if it is an online or digital project.
03
Consider the target audience or stakeholders for the project. Who will benefit from or be involved in this project? This will help determine the relevance and importance of the project location.
04
Clearly state the project's purpose or objective. What is the project trying to achieve or solve? This will provide context and help clarify why a specific location is important.
05
Consider any legal or regulatory requirements related to the project location. Are there any specific permits, licenses, or zoning restrictions that need to be considered? Ensure that the project meets all necessary legal and regulatory obligations.
06
Communicate the project location effectively. Whether it is a written document, presentation, or online form, make sure to clearly indicate the project name and location. This will help avoid any confusion or misinterpretation.
07
Regularly review and update the project namelocation as needed. If there are any changes or updates to the project, make sure to reflect those changes in the project name and location to maintain accuracy and relevance.
Who needs project namelocation for which?
01
Project managers: Project managers need the project namelocation to effectively plan and coordinate all aspects of the project. It helps them ensure that all team members are on the same page and understand the scope and location of the project.
02
Stakeholders: Stakeholders, such as clients, investors, or community members, need to know the project namelocation to understand how it may impact them or their interests. It allows them to provide feedback, support, or necessary resources.
03
Contractors and suppliers: Contractors and suppliers need to know the project namelocation to properly estimate costs, plan logistics, and deliver goods or services. It helps them determine if they have the necessary resources and capabilities to fulfill the project requirements.
04
Team members: All team members involved in the project, such as designers, developers, or contractors, need to know the project namelocation to align their efforts and work efficiently. It ensures that everyone is working towards the same goal and in the correct location.
05
Government agencies or authorities: Depending on the nature of the project and its location, government agencies or authorities may need to be aware of the project namelocation for regulatory compliance, permits, or other approvals. It helps them ensure that the project meets necessary standards and requirements.
Fill
form
: Try Risk Free
For pdfFiller’s FAQs
Below is a list of the most common customer questions. If you can’t find an answer to your question, please don’t hesitate to reach out to us.
How can I modify project namelocation for which without leaving Google Drive?
You can quickly improve your document management and form preparation by integrating pdfFiller with Google Docs so that you can create, edit and sign documents directly from your Google Drive. The add-on enables you to transform your project namelocation for which into a dynamic fillable form that you can manage and eSign from any internet-connected device.
How can I fill out project namelocation for which on an iOS device?
Install the pdfFiller app on your iOS device to fill out papers. Create an account or log in if you already have one. After registering, upload your project namelocation for which. You may now use pdfFiller's advanced features like adding fillable fields and eSigning documents from any device, anywhere.
How do I edit project namelocation for which on an Android device?
You can edit, sign, and distribute project namelocation for which on your mobile device from anywhere using the pdfFiller mobile app for Android; all you need is an internet connection. Download the app and begin streamlining your document workflow from anywhere.
What is project namelocation for which?
Project namelocation is a software development project based in California.
Who is required to file project namelocation for which?
All team members involved in the project are required to file project namelocation.
How to fill out project namelocation for which?
To fill out project namelocation, team members need to provide details about their tasks, progress, and any roadblocks they are facing.
What is the purpose of project namelocation for which?
The purpose of project namelocation is to track the progress of the software development project and ensure all team members are on the same page.
What information must be reported on project namelocation for which?
Information such as task updates, completed milestones, and any issues or obstacles encountered during development must be reported on project namelocation.
Fill out your project namelocation for which online with pdfFiller!
pdfFiller is an end-to-end solution for managing, creating, and editing documents and forms in the cloud. Save time and hassle by preparing your tax forms online.

Project Namelocation For Which is not the form you're looking for?Search for another form here.
Relevant keywords
Related Forms
If you believe that this page should be taken down, please follow our DMCA take down process
here
.
This form may include fields for payment information. Data entered in these fields is not covered by PCI DSS compliance.