
Get the free Reroofing Instructions
Show details
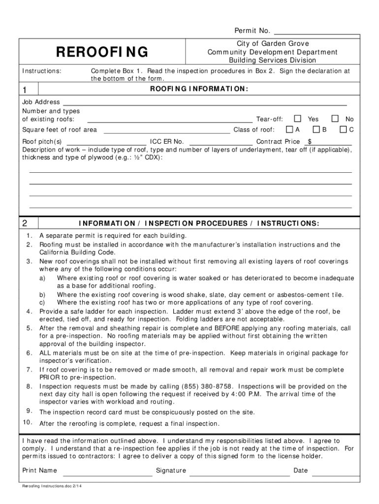
This document outlines the instructions and requirements for obtaining a reroofing permit for properties in Garden Grove, including roofing information, inspection procedures, and responsibilities
We are not affiliated with any brand or entity on this form
Get, Create, Make and Sign reroofing instructions

Edit your reroofing instructions form online
Type text, complete fillable fields, insert images, highlight or blackout data for discretion, add comments, and more.

Add your legally-binding signature
Draw or type your signature, upload a signature image, or capture it with your digital camera.

Share your form instantly
Email, fax, or share your reroofing instructions form via URL. You can also download, print, or export forms to your preferred cloud storage service.
How to edit reroofing instructions online
Follow the guidelines below to take advantage of the professional PDF editor:
1
Create an account. Begin by choosing Start Free Trial and, if you are a new user, establish a profile.
2
Prepare a file. Use the Add New button. Then upload your file to the system from your device, importing it from internal mail, the cloud, or by adding its URL.
3
Edit reroofing instructions. Add and change text, add new objects, move pages, add watermarks and page numbers, and more. Then click Done when you're done editing and go to the Documents tab to merge or split the file. If you want to lock or unlock the file, click the lock or unlock button.
4
Get your file. When you find your file in the docs list, click on its name and choose how you want to save it. To get the PDF, you can save it, send an email with it, or move it to the cloud.
With pdfFiller, it's always easy to deal with documents.
Uncompromising security for your PDF editing and eSignature needs
Your private information is safe with pdfFiller. We employ end-to-end encryption, secure cloud storage, and advanced access control to protect your documents and maintain regulatory compliance.
How to fill out reroofing instructions

How to fill out Reroofing Instructions
01
Start by gathering all necessary materials and tools needed for the reroofing project.
02
Read through the instructions carefully to understand the overall process.
03
Measure the area of the roof to determine the amount of materials required.
04
Remove any old roofing materials safely, ensuring to follow disposal regulations.
05
Inspect the underlying structure for any damage and make necessary repairs.
06
Lay down underlayment according to the instructions provided.
07
Install the new roofing material, carefully following the step-by-step guidelines.
08
Ensure all flashing and ventilation systems are correctly integrated as per the instructions.
09
Inspect the completed work for any gaps or issues.
10
Clean up the work area and ensure all debris is removed.
Who needs Reroofing Instructions?
01
Homeowners planning to replace their roof.
02
Contractors and roofing professionals undertaking reroofing projects.
03
Building inspectors assessing roofing work for compliance.
04
Insurance adjusters evaluating roofing damage for claims.
Fill
form
: Try Risk Free
For pdfFiller’s FAQs
Below is a list of the most common customer questions. If you can’t find an answer to your question, please don’t hesitate to reach out to us.
What is Reroofing Instructions?
Reroofing Instructions are guidelines provided by local authorities to ensure that roofing work is conducted safely and up to code.
Who is required to file Reroofing Instructions?
Homeowners or contractors undertaking roofing projects are typically required to file Reroofing Instructions.
How to fill out Reroofing Instructions?
To fill out Reroofing Instructions, provide details such as the property address, type of roofing material, and any contractor information, following the specific format prescribed by the local authority.
What is the purpose of Reroofing Instructions?
The purpose of Reroofing Instructions is to ensure compliance with building codes, promote safety, and protect the integrity of the building.
What information must be reported on Reroofing Instructions?
Reroofing Instructions must report information such as the property owner's name, contractor details, roofing material specifications, and any relevant permits or inspections.
Fill out your reroofing instructions online with pdfFiller!
pdfFiller is an end-to-end solution for managing, creating, and editing documents and forms in the cloud. Save time and hassle by preparing your tax forms online.

Reroofing Instructions is not the form you're looking for?Search for another form here.
Relevant keywords
Related Forms
If you believe that this page should be taken down, please follow our DMCA take down process
here
.
This form may include fields for payment information. Data entered in these fields is not covered by PCI DSS compliance.