Get the free Failure to complete the form and provide documentation could result in claim being s...
Show details
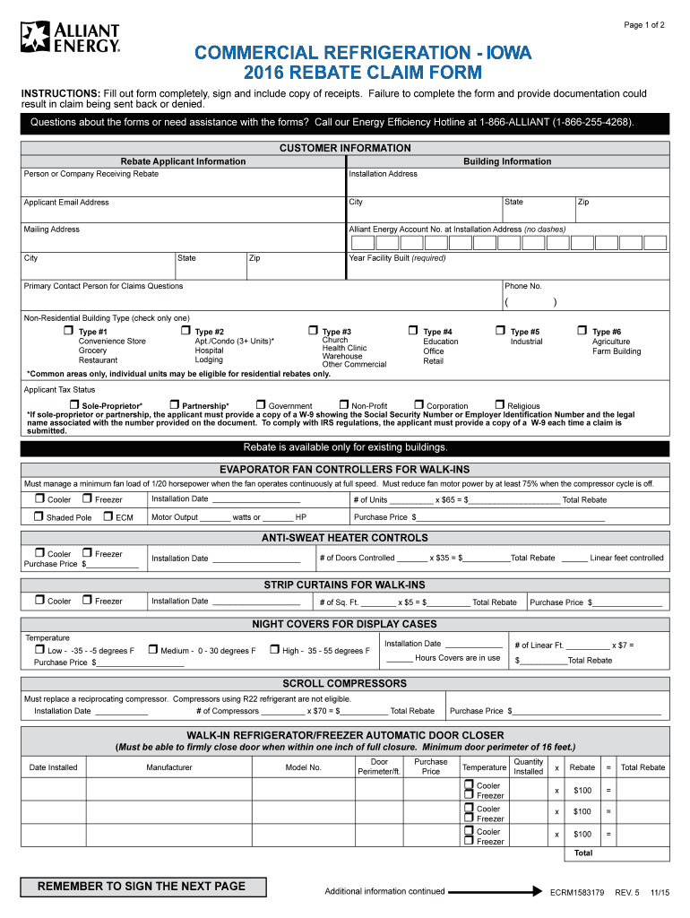
Page 1 of 2 COMMERCIAL REFRIGERATION IOWA 2016 REBATE CLAIM FORM PRINT FORM SAVE FORM RESET FORM INSTRUCTIONS: Fill out form completely, sign and include copy of receipts. Failure to complete the
We are not affiliated with any brand or entity on this form
Get, Create, Make and Sign failure to complete the
Edit your failure to complete the form online
Type text, complete fillable fields, insert images, highlight or blackout data for discretion, add comments, and more.
Add your legally-binding signature
Draw or type your signature, upload a signature image, or capture it with your digital camera.
Share your form instantly
Email, fax, or share your failure to complete the form via URL. You can also download, print, or export forms to your preferred cloud storage service.
How to edit failure to complete the online
To use the professional PDF editor, follow these steps:
1
Log in. Click Start Free Trial and create a profile if necessary.
2
Prepare a file. Use the Add New button to start a new project. Then, using your device, upload your file to the system by importing it from internal mail, the cloud, or adding its URL.
3
Edit failure to complete the. Rearrange and rotate pages, add and edit text, and use additional tools. To save changes and return to your Dashboard, click Done. The Documents tab allows you to merge, divide, lock, or unlock files.
4
Get your file. When you find your file in the docs list, click on its name and choose how you want to save it. To get the PDF, you can save it, send an email with it, or move it to the cloud.
Uncompromising security for your PDF editing and eSignature needs
Your private information is safe with pdfFiller. We employ end-to-end encryption, secure cloud storage, and advanced access control to protect your documents and maintain regulatory compliance.
How to fill out failure to complete the
01
Start by gathering all the necessary information and documents required to fill out the failure to complete form. This may include personal details, details of the task or project that was not completed, and any supporting evidence or documentation.
02
Carefully read the instructions provided with the form to ensure that you understand the requirements and guidelines for filling it out correctly.
03
Begin by entering your personal information in the designated sections of the form. This may include your full name, contact details, and any identification numbers or codes.
04
Proceed to provide details about the task or project that was not completed. This may include the title or description of the task, the expected completion date, and any relevant information about why it was not completed.
05
Use clear and concise language to explain the circumstances or reasons for the failure to complete the task. Be honest and provide any necessary supporting evidence or documentation to support your explanation.
06
If there are any mitigating factors or extenuating circumstances that contributed to the failure to complete, be sure to include them in your response. This may include health issues, unforeseen events, or any other relevant factors.
07
Double-check all the information you have provided in the form to ensure its accuracy and completeness. Make any necessary corrections or additions before submitting the form.
08
Lastly, carefully review the form's submission instructions to ensure that you have followed all the necessary steps and included any required supporting documents.
Failure to complete forms may be required by various individuals or entities depending on the specific situation. Here are a few examples:
01
Employees: In some cases, employees may be required to fill out a failure to complete form if they were unable to fulfill a task or project assigned to them within the given timeframe. This could be necessary for record-keeping purposes or in situations where the failure could have consequences for the employee, such as performance reviews.
02
Students: Students may be required to fill out a failure to complete form if they were unable to complete an assignment, project, or exam within the specified deadline. This is commonly seen in academic institutions where the form helps track progress and provide an explanation for the incomplete work.
03
Contractors or Freelancers: Independent contractors or freelancers who have not fulfilled their contractual obligations may need to fill out a failure to complete form. This form could be used to document the reasons for non-completion, assess any penalties or repercussions, and potentially resolve any disputes that may arise.
04
Service Providers: Service providers or businesses that did not deliver the contracted services or products within the agreed-upon time frame may be required to fill out a failure to complete form. This is typically necessary for tracking purposes, maintaining transparency, and determining any necessary actions or resolutions.
It is important to note that the need for a failure to complete form may vary depending on the specific circumstances and the requirements of the organization or individual requesting it. It is advisable to consult the relevant parties or seek guidance to determine if a failure to complete form is necessary in your particular situation.
Fill
form
: Try Risk Free
For pdfFiller’s FAQs
Below is a list of the most common customer questions. If you can’t find an answer to your question, please don’t hesitate to reach out to us.
How do I execute failure to complete the online?
Easy online failure to complete the completion using pdfFiller. Also, it allows you to legally eSign your form and change original PDF material. Create a free account and manage documents online.
How do I edit failure to complete the online?
The editing procedure is simple with pdfFiller. Open your failure to complete the in the editor. You may also add photos, draw arrows and lines, insert sticky notes and text boxes, and more.
Can I create an electronic signature for signing my failure to complete the in Gmail?
It's easy to make your eSignature with pdfFiller, and then you can sign your failure to complete the right from your Gmail inbox with the help of pdfFiller's add-on for Gmail. This is a very important point: You must sign up for an account so that you can save your signatures and signed documents.
What is failure to complete the?
Failure to complete refers to not finishing or fulfilling a task or requirement.
Who is required to file failure to complete the?
The individual or entity responsible for the incomplete task or requirement is required to file a failure to complete report.
How to fill out failure to complete the?
Failure to complete reports typically require providing details about the unfinished task, reasons for non-completion, and any additional relevant information.
What is the purpose of failure to complete the?
The purpose of a failure to complete report is to document and acknowledge tasks or requirements that have not been fulfilled as required.
What information must be reported on failure to complete the?
Information such as the incomplete task or requirement, reasons for non-completion, and any relevant details related to the failure must be reported on a failure to complete report.
Fill out your failure to complete the online with pdfFiller!
pdfFiller is an end-to-end solution for managing, creating, and editing documents and forms in the cloud. Save time and hassle by preparing your tax forms online.
Failure To Complete The is not the form you're looking for?Search for another form here.
Relevant keywords
Related Forms
If you believe that this page should be taken down, please follow our DMCA take down process
here
.
This form may include fields for payment information. Data entered in these fields is not covered by PCI DSS compliance.