Get the free Building Plan Review Attachment - grcity
Show details
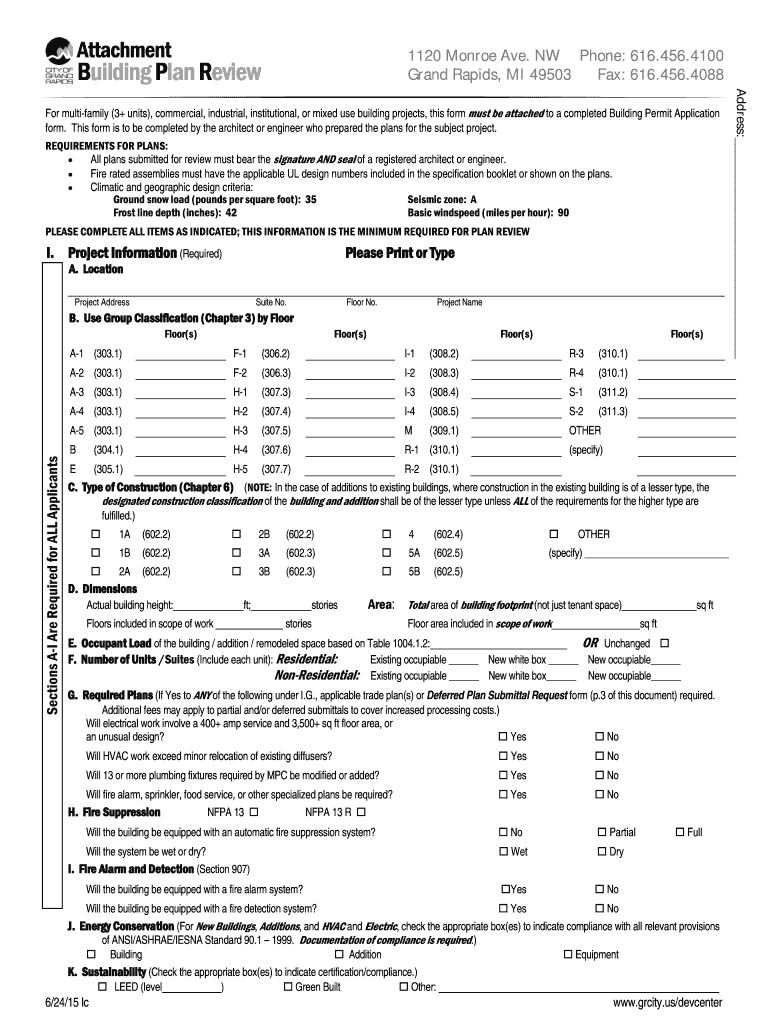
Will 13 or more plumbing fixtures required by MPC be modified or added? ... 1999. Documentation of ... Building Plan Review Attachment.
We are not affiliated with any brand or entity on this form
Get, Create, Make and Sign building plan review attachment
Edit your building plan review attachment form online
Type text, complete fillable fields, insert images, highlight or blackout data for discretion, add comments, and more.
Add your legally-binding signature
Draw or type your signature, upload a signature image, or capture it with your digital camera.
Share your form instantly
Email, fax, or share your building plan review attachment form via URL. You can also download, print, or export forms to your preferred cloud storage service.
Editing building plan review attachment online
Here are the steps you need to follow to get started with our professional PDF editor:
1
Log in to your account. Click Start Free Trial and sign up a profile if you don't have one yet.
2
Prepare a file. Use the Add New button. Then upload your file to the system from your device, importing it from internal mail, the cloud, or by adding its URL.
3
Edit building plan review attachment. Replace text, adding objects, rearranging pages, and more. Then select the Documents tab to combine, divide, lock or unlock the file.
4
Get your file. Select your file from the documents list and pick your export method. You may save it as a PDF, email it, or upload it to the cloud.
With pdfFiller, dealing with documents is always straightforward. Try it now!
Uncompromising security for your PDF editing and eSignature needs
Your private information is safe with pdfFiller. We employ end-to-end encryption, secure cloud storage, and advanced access control to protect your documents and maintain regulatory compliance.
How to fill out building plan review attachment
How to fill out building plan review attachment:
01
Start by carefully reviewing the instructions provided with the building plan review attachment. Understand what information needs to be included and any specific formatting requirements.
02
Gather all the necessary documents and information needed to complete the attachment. This may include architectural drawings, engineering reports, site plans, and any other relevant documentation.
03
Fill out the attachment accurately and completely. Provide all the requested information, such as project details, building dimensions, materials used, and any special considerations.
04
Double-check your work for any errors or missing information. It's important to ensure that all the required fields are filled out properly.
05
If there are any additional documents or attachments required, make sure to include them with the completed building plan review attachment.
06
Review the attachment one final time to ensure everything is filled out correctly and all necessary information is included.
07
Submit the completed building plan review attachment to the appropriate authority or department responsible for the review process.
Who needs building plan review attachment:
01
Architects and engineers: Building plan review attachments are often required as part of the submission process for construction projects. Architects and engineers need to include these attachments to provide detailed information about the proposed building plans.
02
Contractors and builders: Contractors and builders may also need to fill out building plan review attachments in order to obtain necessary permits or approvals for their projects.
03
Municipal and government authorities: Building plan review attachments are typically submitted to municipal or government authorities responsible for reviewing and approving building plans. These authorities need the attachment to properly assess the feasibility, safety, and compliance of the proposed construction project.
Fill
form
: Try Risk Free
For pdfFiller’s FAQs
Below is a list of the most common customer questions. If you can’t find an answer to your question, please don’t hesitate to reach out to us.
Can I create an electronic signature for the building plan review attachment in Chrome?
As a PDF editor and form builder, pdfFiller has a lot of features. It also has a powerful e-signature tool that you can add to your Chrome browser. With our extension, you can type, draw, or take a picture of your signature with your webcam to make your legally-binding eSignature. Choose how you want to sign your building plan review attachment and you'll be done in minutes.
Can I edit building plan review attachment on an iOS device?
You can. Using the pdfFiller iOS app, you can edit, distribute, and sign building plan review attachment. Install it in seconds at the Apple Store. The app is free, but you must register to buy a subscription or start a free trial.
How do I complete building plan review attachment on an iOS device?
In order to fill out documents on your iOS device, install the pdfFiller app. Create an account or log in to an existing one if you have a subscription to the service. Once the registration process is complete, upload your building plan review attachment. You now can take advantage of pdfFiller's advanced functionalities: adding fillable fields and eSigning documents, and accessing them from any device, wherever you are.
What is building plan review attachment?
Building plan review attachment is a document that accompanies building plans submitted for review by the relevant authorities.
Who is required to file building plan review attachment?
Architects, engineers, or any individual or entity submitting building plans for review are required to file building plan review attachment.
How to fill out building plan review attachment?
The building plan review attachment should be filled out with all relevant information about the building plans being submitted, including details about the design, materials, and intended use of the building.
What is the purpose of building plan review attachment?
The purpose of building plan review attachment is to provide additional information and documentation to assist in the review and approval process for building plans.
What information must be reported on building plan review attachment?
Information such as building design details, materials used, intended use of the building, and any other relevant information requested by the authorities must be reported on building plan review attachment.
Fill out your building plan review attachment online with pdfFiller!
pdfFiller is an end-to-end solution for managing, creating, and editing documents and forms in the cloud. Save time and hassle by preparing your tax forms online.
Building Plan Review Attachment is not the form you're looking for?Search for another form here.
Relevant keywords
Related Forms
If you believe that this page should be taken down, please follow our DMCA take down process
here
.
This form may include fields for payment information. Data entered in these fields is not covered by PCI DSS compliance.