
Get the free Commercial Solar Power Generating Station / Structure Mounted PV System - cms sbcounty
Show details
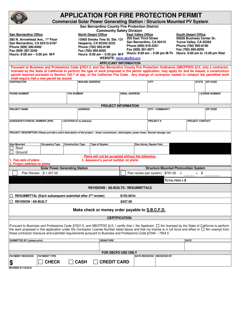
APPLICATION FOR FIRE PROTECTION PERMIT Commercial Solar Power Generating Station / Structure Mounted PV System San Bernardino County Fire Protection District
We are not affiliated with any brand or entity on this form
Get, Create, Make and Sign commercial solar power generating

Edit your commercial solar power generating form online
Type text, complete fillable fields, insert images, highlight or blackout data for discretion, add comments, and more.

Add your legally-binding signature
Draw or type your signature, upload a signature image, or capture it with your digital camera.

Share your form instantly
Email, fax, or share your commercial solar power generating form via URL. You can also download, print, or export forms to your preferred cloud storage service.
Editing commercial solar power generating online
Here are the steps you need to follow to get started with our professional PDF editor:
1
Set up an account. If you are a new user, click Start Free Trial and establish a profile.
2
Prepare a file. Use the Add New button to start a new project. Then, using your device, upload your file to the system by importing it from internal mail, the cloud, or adding its URL.
3
Edit commercial solar power generating. Rearrange and rotate pages, insert new and alter existing texts, add new objects, and take advantage of other helpful tools. Click Done to apply changes and return to your Dashboard. Go to the Documents tab to access merging, splitting, locking, or unlocking functions.
4
Get your file. When you find your file in the docs list, click on its name and choose how you want to save it. To get the PDF, you can save it, send an email with it, or move it to the cloud.
pdfFiller makes dealing with documents a breeze. Create an account to find out!
Uncompromising security for your PDF editing and eSignature needs
Your private information is safe with pdfFiller. We employ end-to-end encryption, secure cloud storage, and advanced access control to protect your documents and maintain regulatory compliance.
How to fill out commercial solar power generating

How to fill out commercial solar power generating:
01
Research and understand the solar power generating process: Familiarize yourself with the various components and technologies involved in commercial solar power generation. This includes solar panels, inverters, electrical wiring, and energy storage systems.
02
Determine your energy requirements: Calculate the amount of energy your commercial facility requires on a daily, monthly, or yearly basis. This will help you determine the size and capacity of your solar power generating system.
03
Evaluate your site's solar potential: Assess the amount of sunlight your site receives throughout the year. Factors such as shading, orientation, and geographical location can impact the efficiency of your solar power generating system.
04
Conduct a cost-benefit analysis: Determine the financial feasibility of installing a commercial solar power generating system. Consider the upfront costs, potential energy savings, available incentives, and payback period.
05
Obtain necessary permits and approvals: Contact your local authorities to understand the regulations and permits required for installing a solar power generating system. This may include building permits, interconnection agreements, and utility approvals.
06
Design the system: Work with a professional solar installer or engineer to design the optimal system for your commercial facility. Consider factors such as panel placement, wiring, and safety measures.
07
Procure and install the equipment: Source high-quality solar panels, inverters, and other necessary equipment from reputable suppliers. Ensure that the installation is done by experienced professionals who adhere to safety standards and industry best practices.
08
Connect to the grid: Depending on your location and energy requirements, you may choose to connect your solar power generating system to the electrical grid. This enables you to sell excess energy back to the utility or draw power when needed.
09
Maintain and monitor the system: Regularly inspect and maintain your commercial solar power generating system to ensure maximum efficiency and longevity. Utilize monitoring tools and software to track the performance and energy production of your system.
10
Enjoy the benefits of solar power: By filling out commercial solar power generating, you can significantly reduce your carbon footprint, lower energy costs, and contribute to a cleaner and more sustainable future.
Who needs commercial solar power generating?
01
Commercial and industrial establishments: Businesses, factories, warehouses, and other commercial or industrial facilities that require a significant amount of electricity can benefit from commercial solar power generating. It helps to offset high energy costs and promote environmentally-friendly operations.
02
Government and public buildings: Municipalities, schools, hospitals, and other government-owned facilities can opt for commercial solar power generating to reduce operating expenses and showcase their commitment to renewable energy.
03
Agricultural sector: Farms, vineyards, and agricultural facilities often have substantial energy needs. Commercial solar power generation allows them to harness renewable energy, reduce dependence on the grid, and potentially earn revenue through excess electricity production.
04
Retail and commercial chains: Supermarkets, shopping malls, and retail chains can utilize commercial solar power generating to power their operations, leading to long-term cost savings and enhancing their sustainability image.
05
Non-profit organizations and community centers: Entities working for the betterment of society, such as community centers, charities, and non-profit organizations, can install commercial solar power generating systems to reduce their expenses and allocate more funds towards their core mission.
06
Energy-intensive industries: Sectors such as mining, manufacturing, and processing often have high energy demands. Integrating commercial solar power generating helps them reduce reliance on non-renewable energy sources and minimize their environmental impact.
Fill
form
: Try Risk Free
For pdfFiller’s FAQs
Below is a list of the most common customer questions. If you can’t find an answer to your question, please don’t hesitate to reach out to us.
How can I send commercial solar power generating for eSignature?
commercial solar power generating is ready when you're ready to send it out. With pdfFiller, you can send it out securely and get signatures in just a few clicks. PDFs can be sent to you by email, text message, fax, USPS mail, or notarized on your account. You can do this right from your account. Become a member right now and try it out for yourself!
Can I edit commercial solar power generating on an iOS device?
Create, edit, and share commercial solar power generating from your iOS smartphone with the pdfFiller mobile app. Installing it from the Apple Store takes only a few seconds. You may take advantage of a free trial and select a subscription that meets your needs.
How can I fill out commercial solar power generating on an iOS device?
Download and install the pdfFiller iOS app. Then, launch the app and log in or create an account to have access to all of the editing tools of the solution. Upload your commercial solar power generating from your device or cloud storage to open it, or input the document URL. After filling out all of the essential areas in the document and eSigning it (if necessary), you may save it or share it with others.
What is commercial solar power generating?
Commercial solar power generating refers to the production of electricity using solar panels on a commercial scale.
Who is required to file commercial solar power generating?
Businesses or organizations that generate solar power on a commercial scale are required to file commercial solar power generating.
How to fill out commercial solar power generating?
Commercial solar power generating can be filled out by submitting the necessary documentation and information about the solar power generation activities.
What is the purpose of commercial solar power generating?
The purpose of commercial solar power generating is to harness renewable energy sources and reduce reliance on non-renewable fossil fuels.
What information must be reported on commercial solar power generating?
Information such as the amount of electricity generated, equipment used, maintenance procedures, and environmental impact must be reported on commercial solar power generating.
Fill out your commercial solar power generating online with pdfFiller!
pdfFiller is an end-to-end solution for managing, creating, and editing documents and forms in the cloud. Save time and hassle by preparing your tax forms online.

Commercial Solar Power Generating is not the form you're looking for?Search for another form here.
Relevant keywords
Related Forms
If you believe that this page should be taken down, please follow our DMCA take down process
here
.
This form may include fields for payment information. Data entered in these fields is not covered by PCI DSS compliance.