Get the free RESIDENTIAL REWARDS PROGRAM ATTIC INSULATION
Show details
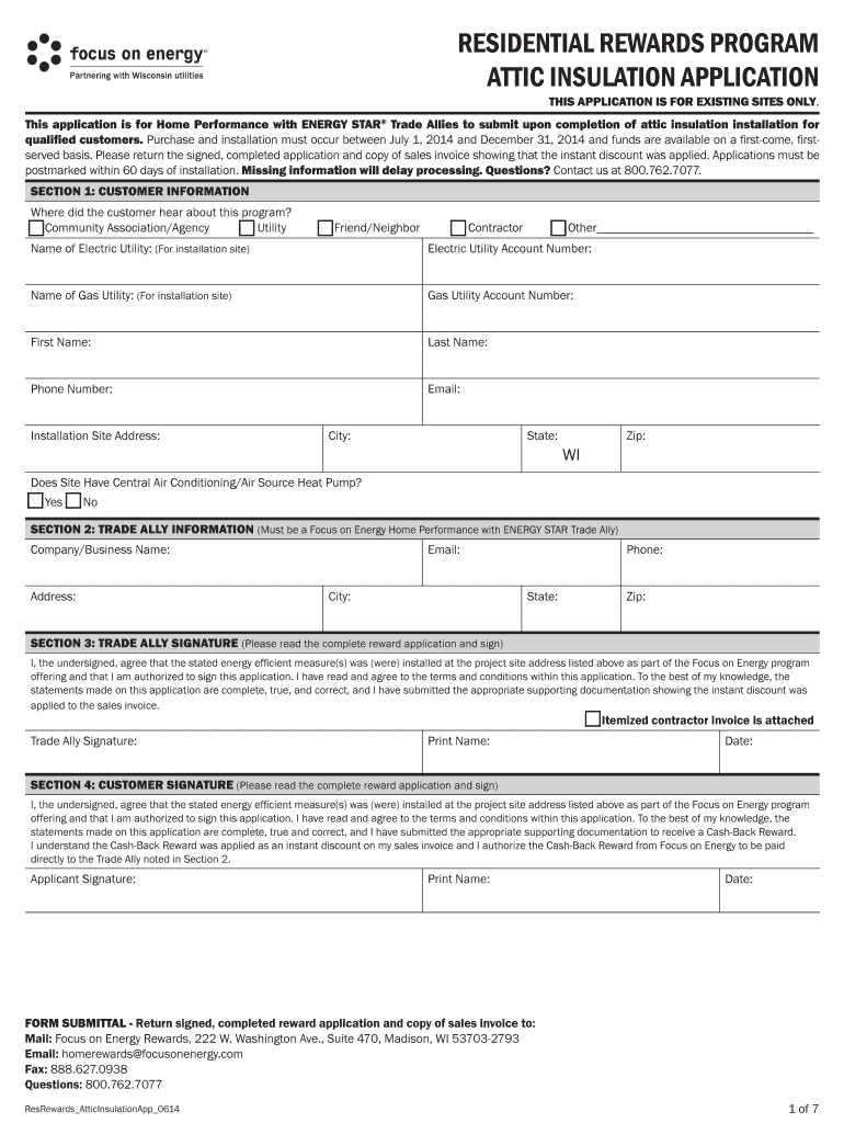
This application is for Home Performance with ENERGY STAR Trade Allies to submit upon completion of attic insulation installation for qualified customers.
We are not affiliated with any brand or entity on this form
Get, Create, Make and Sign residential rewards program attic
Edit your residential rewards program attic form online
Type text, complete fillable fields, insert images, highlight or blackout data for discretion, add comments, and more.
Add your legally-binding signature
Draw or type your signature, upload a signature image, or capture it with your digital camera.
Share your form instantly
Email, fax, or share your residential rewards program attic form via URL. You can also download, print, or export forms to your preferred cloud storage service.
Editing residential rewards program attic online
Follow the steps below to benefit from a competent PDF editor:
1
Check your account. If you don't have a profile yet, click Start Free Trial and sign up for one.
2
Prepare a file. Use the Add New button. Then upload your file to the system from your device, importing it from internal mail, the cloud, or by adding its URL.
3
Edit residential rewards program attic. Add and change text, add new objects, move pages, add watermarks and page numbers, and more. Then click Done when you're done editing and go to the Documents tab to merge or split the file. If you want to lock or unlock the file, click the lock or unlock button.
4
Get your file. Select your file from the documents list and pick your export method. You may save it as a PDF, email it, or upload it to the cloud.
It's easier to work with documents with pdfFiller than you can have believed. You can sign up for an account to see for yourself.
Uncompromising security for your PDF editing and eSignature needs
Your private information is safe with pdfFiller. We employ end-to-end encryption, secure cloud storage, and advanced access control to protect your documents and maintain regulatory compliance.
How to fill out residential rewards program attic
How to Fill Out Residential Rewards Program Attic:
01
Start by researching the eligibility requirements for the residential rewards program attic. Visit the program's website or contact the program administrator to gather all the necessary information.
02
Ensure that your attic meets the program's guidelines. These guidelines may include requirements such as insulation levels, air sealing, ventilation, or the use of energy-efficient materials. If your attic doesn't meet the requirements, consider making the necessary improvements before filling out the application.
03
Gather all relevant documentation. This may include utility bills, proof of ownership or residence, and any other documentation required by the program. Make sure to organize these documents to avoid any delays in the application process.
04
Fill out the application form accurately and completely. Provide all the requested information, such as your name, contact details, address, and any additional information the program requires. Double-check for any errors or missing information before submitting the application.
05
Attach any supporting documents required by the program. This may include a copy of your utility bills, proof of income, or any other documentation to verify your eligibility and participation in the residential rewards program.
06
Submit your completed application, either online or through the designated submission method specified by the program. Keep a copy of your application and any supporting documents for your records.
Who Needs Residential Rewards Program Attic?
01
Homeowners: Residential rewards program attic is beneficial for homeowners who want to reduce their energy consumption and lower their utility bills. The program offers incentives and rebates for energy-efficient attic improvements, making it an attractive option for those looking to optimize their home's energy efficiency.
02
Renters: Depending on the program's specifications, renters may also be eligible to participate in the residential rewards program attic. This can be a valuable opportunity for renters to make energy-saving upgrades to their rented properties and potentially benefit from reduced energy costs.
03
Environmental enthusiasts: Individuals who are passionate about reducing their carbon footprint and promoting sustainable living can benefit from the residential rewards program attic. By participating in energy-efficient attic improvements, they contribute to the overall goal of conserving energy and protecting the environment.
Note: The specific eligibility criteria and benefits of the residential rewards program attic may vary depending on the program and location. It is essential to thoroughly research the program in your area to determine who qualifies and how they can benefit from participating.
Fill
form
: Try Risk Free
For pdfFiller’s FAQs
Below is a list of the most common customer questions. If you can’t find an answer to your question, please don’t hesitate to reach out to us.
How do I edit residential rewards program attic straight from my smartphone?
The pdfFiller apps for iOS and Android smartphones are available in the Apple Store and Google Play Store. You may also get the program at https://edit-pdf-ios-android.pdffiller.com/. Open the web app, sign in, and start editing residential rewards program attic.
How do I edit residential rewards program attic on an iOS device?
Use the pdfFiller mobile app to create, edit, and share residential rewards program attic from your iOS device. Install it from the Apple Store in seconds. You can benefit from a free trial and choose a subscription that suits your needs.
How do I fill out residential rewards program attic on an Android device?
On Android, use the pdfFiller mobile app to finish your residential rewards program attic. Adding, editing, deleting text, signing, annotating, and more are all available with the app. All you need is a smartphone and internet.
What is residential rewards program attic?
The residential rewards program attic is a program that incentivizes homeowners to make energy-efficient upgrades to their attics.
Who is required to file residential rewards program attic?
Homeowners who have participated in the residential rewards program and made upgrades to their attic are required to file the residential rewards program attic.
How to fill out residential rewards program attic?
To fill out the residential rewards program attic, homeowners need to provide information about the upgrades made to their attic and any receipts or documentation related to the upgrades.
What is the purpose of residential rewards program attic?
The purpose of the residential rewards program attic is to track and verify the energy-efficient upgrades made to attics by homeowners participating in the program.
What information must be reported on residential rewards program attic?
Homeowners must report details about the upgrades made to their attic, including the type of insulation installed, any air sealing measures taken, and the energy efficiency ratings of any new equipment.
Fill out your residential rewards program attic online with pdfFiller!
pdfFiller is an end-to-end solution for managing, creating, and editing documents and forms in the cloud. Save time and hassle by preparing your tax forms online.
Residential Rewards Program Attic is not the form you're looking for?Search for another form here.
Relevant keywords
Related Forms
If you believe that this page should be taken down, please follow our DMCA take down process
here
.
This form may include fields for payment information. Data entered in these fields is not covered by PCI DSS compliance.