Get the free APPLICATION FOR PERMIT TO CONSTRUCT WITHIN ROAD - cityofyukonok
Show details
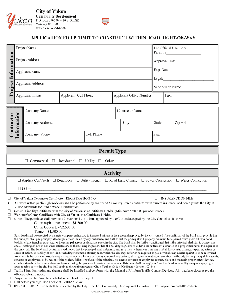
APPLICATION FOR PERMIT Constructing WITHIN ROAD RIGHT-OF-WAY Project Information Commercial Residential Utility Other
We are not affiliated with any brand or entity on this form
Get, Create, Make and Sign application for permit to
Edit your application for permit to form online
Type text, complete fillable fields, insert images, highlight or blackout data for discretion, add comments, and more.
Add your legally-binding signature
Draw or type your signature, upload a signature image, or capture it with your digital camera.
Share your form instantly
Email, fax, or share your application for permit to form via URL. You can also download, print, or export forms to your preferred cloud storage service.
Editing application for permit to online
In order to make advantage of the professional PDF editor, follow these steps:
1
Set up an account. If you are a new user, click Start Free Trial and establish a profile.
2
Prepare a file. Use the Add New button. Then upload your file to the system from your device, importing it from internal mail, the cloud, or by adding its URL.
3
Edit application for permit to. Rearrange and rotate pages, add new and changed texts, add new objects, and use other useful tools. When you're done, click Done. You can use the Documents tab to merge, split, lock, or unlock your files.
4
Save your file. Select it from your list of records. Then, move your cursor to the right toolbar and choose one of the exporting options. You can save it in multiple formats, download it as a PDF, send it by email, or store it in the cloud, among other things.
It's easier to work with documents with pdfFiller than you can have believed. You may try it out for yourself by signing up for an account.
Uncompromising security for your PDF editing and eSignature needs
Your private information is safe with pdfFiller. We employ end-to-end encryption, secure cloud storage, and advanced access control to protect your documents and maintain regulatory compliance.
How to fill out application for permit to
How to fill out application for permit to:
01
Start by gathering all necessary documents and information required for the application. This may include personal identification, proof of address, details about the project or activity for which the permit is required, etc.
02
Carefully read and understand the instructions provided with the application form. Pay attention to any specific requirements or documentation that needs to be submitted along with the application.
03
Begin filling out the application form, ensuring that all sections are completed accurately and completely. Double-check for any errors or missing information before proceeding.
04
If there are any questions or areas that you are unsure about, do not hesitate to seek clarification from the relevant authorities or department responsible for processing the permit applications. It is better to get any doubts clarified beforehand.
05
Attach any additional documents or supporting materials that may be required or deemed helpful in processing the application. This could include project plans, permits from other relevant departments, environmental impact assessments, etc.
06
Review the completed application form and all attached documents to ensure everything is in order. Make copies of the entire application package for record-keeping purposes, if necessary.
07
Submit the application and any applicable fees to the designated department or agency responsible for issuing permits. Follow any specific submission procedures or guidelines provided.
08
Keep track of the application status by maintaining regular communication with the issuing authority. Inquire about the expected timeline for processing the application and if any additional steps or requirements may be necessary.
09
Once the permit is approved, make sure to adhere to any conditions or restrictions specified. If the application is denied, seek feedback and understand the reasons. You may have the option to reapply or appeal the decision, depending on the circumstances.
Who needs application for permit to:
01
Individuals or organizations planning to undertake specific projects or activities that require authorization or approval from regulatory authorities or governing bodies.
02
Examples of situations where an application for a permit may be necessary include construction or renovation projects, organizing events or gatherings in public spaces, conducting certain business activities that require licensing, etc.
03
The need for a permit is dependent on the local laws, regulations, and the nature of the project or activity being undertaken. It is important to research and understand the specific requirements for permits in your jurisdiction.
Fill
form
: Try Risk Free
For pdfFiller’s FAQs
Below is a list of the most common customer questions. If you can’t find an answer to your question, please don’t hesitate to reach out to us.
How can I send application for permit to for eSignature?
application for permit to is ready when you're ready to send it out. With pdfFiller, you can send it out securely and get signatures in just a few clicks. PDFs can be sent to you by email, text message, fax, USPS mail, or notarized on your account. You can do this right from your account. Become a member right now and try it out for yourself!
Can I sign the application for permit to electronically in Chrome?
Yes. By adding the solution to your Chrome browser, you may use pdfFiller to eSign documents while also enjoying all of the PDF editor's capabilities in one spot. Create a legally enforceable eSignature by sketching, typing, or uploading a photo of your handwritten signature using the extension. Whatever option you select, you'll be able to eSign your application for permit to in seconds.
Can I create an electronic signature for signing my application for permit to in Gmail?
Upload, type, or draw a signature in Gmail with the help of pdfFiller’s add-on. pdfFiller enables you to eSign your application for permit to and other documents right in your inbox. Register your account in order to save signed documents and your personal signatures.
What is application for permit to?
Application for permit to is a formal request for permission to undertake a specific activity or project.
Who is required to file application for permit to?
Individuals or organizations who wish to engage in activities that require official permission are required to file an application for permit to.
How to fill out application for permit to?
To fill out an application for permit to, applicants need to provide detailed information about the project or activity, including purpose, location, duration, and any other relevant details.
What is the purpose of application for permit to?
The purpose of application for permit to is to obtain official authorization to carry out a specific activity or project in compliance with regulations and requirements.
What information must be reported on application for permit to?
Information such as project details, proposed location, duration, impact assessment, safety measures, and other relevant information must be reported on the application for permit to.
Fill out your application for permit to online with pdfFiller!
pdfFiller is an end-to-end solution for managing, creating, and editing documents and forms in the cloud. Save time and hassle by preparing your tax forms online.
Application For Permit To is not the form you're looking for?Search for another form here.
Relevant keywords
Related Forms
If you believe that this page should be taken down, please follow our DMCA take down process
here
.
This form may include fields for payment information. Data entered in these fields is not covered by PCI DSS compliance.