
Get the free Form 80 - Application for asbestos removal licence for Class A or B
Show details
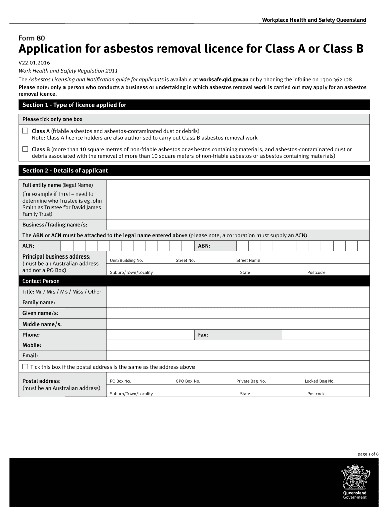
Workplace Health and Safety Queensland Form 80 Application for asbestos removal license for Class A or Class B V22.01.2016 Work Health and Safety Regulation 2011 The Asbestos Licensing and Notification
We are not affiliated with any brand or entity on this form
Get, Create, Make and Sign form 80 - application

Edit your form 80 - application form online
Type text, complete fillable fields, insert images, highlight or blackout data for discretion, add comments, and more.

Add your legally-binding signature
Draw or type your signature, upload a signature image, or capture it with your digital camera.

Share your form instantly
Email, fax, or share your form 80 - application form via URL. You can also download, print, or export forms to your preferred cloud storage service.
Editing form 80 - application online
In order to make advantage of the professional PDF editor, follow these steps:
1
Set up an account. If you are a new user, click Start Free Trial and establish a profile.
2
Prepare a file. Use the Add New button. Then upload your file to the system from your device, importing it from internal mail, the cloud, or by adding its URL.
3
Edit form 80 - application. Replace text, adding objects, rearranging pages, and more. Then select the Documents tab to combine, divide, lock or unlock the file.
4
Save your file. Choose it from the list of records. Then, shift the pointer to the right toolbar and select one of the several exporting methods: save it in multiple formats, download it as a PDF, email it, or save it to the cloud.
pdfFiller makes dealing with documents a breeze. Create an account to find out!
Uncompromising security for your PDF editing and eSignature needs
Your private information is safe with pdfFiller. We employ end-to-end encryption, secure cloud storage, and advanced access control to protect your documents and maintain regulatory compliance.
How to fill out form 80 - application

How to fill out form 80 - application:
01
Obtain a Form 80 - application: You can find Form 80 - application on the official website of the relevant organization or embassy. Download or request a copy of the form.
02
Read the instructions: Before starting to fill out the form, carefully read the instructions provided. This will ensure that you provide all the required information correctly.
03
Personal information: Begin by filling out your personal information section. This includes your full name, date of birth, nationality, current address, and contact details. Provide accurate and up-to-date information.
04
Passport and travel information: Fill in the details of your current and previous passports, including the passport number, issuance date, and expiry date. If you have traveled internationally, provide details of your travel history, including dates and destinations.
05
Residence information: Provide information about your current and previous residences. This may include your address, dates of residency, and contact details.
06
Employment history: Provide a detailed account of your work history. Include the names of your previous employers, job titles, employment dates, and any relevant experience or skills acquired during these employments.
07
Character assessment: In this section, you will be asked to provide detailed information about your character, personal history, and any criminal convictions, if applicable. Be honest and provide accurate information.
08
Personal relationships: Include details of your current and previous personal relationships, such as spouses, partners, children, and dependents. Provide their names, dates of birth, nationalities, and any relevant details.
09
Attach supporting documents: Gather and attach any supporting documents required with your Form 80 - application. These may include copies of your passport, identification documents, employment certificates, and any other relevant paperwork.
10
Review and submit: Once you have filled out the form, carefully review all the information provided. Ensure that everything is accurate and complete. Double-check any supporting documents before submitting the form.
Who needs form 80 - application:
01
Individuals applying for visas: Most commonly, form 80 - application is required for individuals applying for visas or residence permits. This may include student visas, work visas, partner visas, or any other type of visa application.
02
Applicants with a history of international travel: If you have traveled extensively or have lived in multiple countries, you may be required to fill out form 80 - application to provide a comprehensive overview of your travel history.
03
Those seeking to establish character and personal history: Form 80 - application is often used to assess an individual's character and personal history, especially for immigration or visa purposes. It helps authorities determine if an applicant is suitable for entry into a particular country.
Note: The specific requirements for form 80 - application may vary depending on the country or organization you are applying to. It is essential to refer to the official guidelines or consult with relevant authorities to ensure you are following the correct procedures.
Fill
form
: Try Risk Free
For pdfFiller’s FAQs
Below is a list of the most common customer questions. If you can’t find an answer to your question, please don’t hesitate to reach out to us.
How can I send form 80 - application to be eSigned by others?
To distribute your form 80 - application, simply send it to others and receive the eSigned document back instantly. Post or email a PDF that you've notarized online. Doing so requires never leaving your account.
How do I edit form 80 - application online?
With pdfFiller, it's easy to make changes. Open your form 80 - application in the editor, which is very easy to use and understand. When you go there, you'll be able to black out and change text, write and erase, add images, draw lines, arrows, and more. You can also add sticky notes and text boxes.
How do I fill out form 80 - application using my mobile device?
The pdfFiller mobile app makes it simple to design and fill out legal paperwork. Complete and sign form 80 - application and other papers using the app. Visit pdfFiller's website to learn more about the PDF editor's features.
What is form 80 - application?
Form 80 - application is a form used for various visa applications for individuals wanting to come to Australia.
Who is required to file form 80 - application?
Applicants for certain Australian visas are required to file form 80 - application as part of their visa application process.
How to fill out form 80 - application?
Form 80 - application can be filled out online or downloaded and filled out manually. It requires detailed personal information, employment history, education details, and other relevant information.
What is the purpose of form 80 - application?
The purpose of form 80 - application is to provide Australian immigration authorities with additional information about the applicant's background, character, and intentions.
What information must be reported on form 80 - application?
Form 80 - application requires information about personal details, passport information, employment history, education details, family members, and character declarations.
Fill out your form 80 - application online with pdfFiller!
pdfFiller is an end-to-end solution for managing, creating, and editing documents and forms in the cloud. Save time and hassle by preparing your tax forms online.

Form 80 - Application is not the form you're looking for?Search for another form here.
Relevant keywords
Related Forms
If you believe that this page should be taken down, please follow our DMCA take down process
here
.
This form may include fields for payment information. Data entered in these fields is not covered by PCI DSS compliance.