Get the free Permit Type: Electrical - Operating
Show details
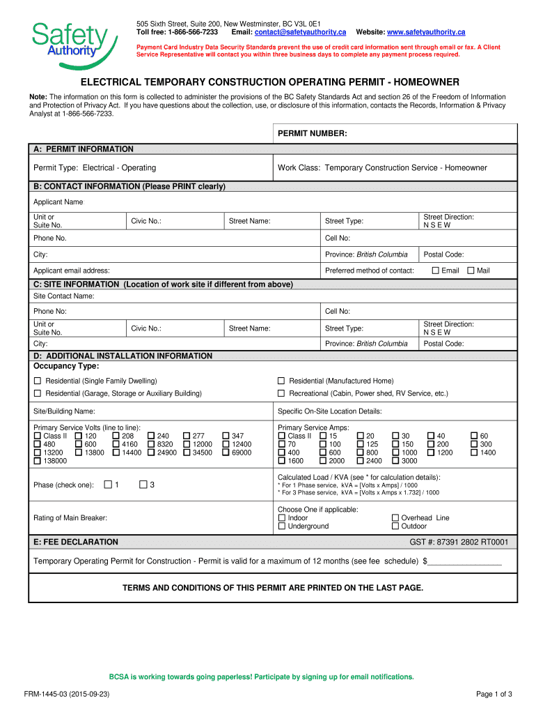
505 Sixth Street Suite 200 New Westminster BC V3L 0E1 Toll free 1-866-566-7233 Email contact safetyauthority. Checking this box and submitting this form to BC Safety Authority via email constitutes your authorization. This has the same effect as submitting a handwritten signature. The permit is valid for one year. Requesting Inspections Homeowner Inspection Request form supplied by the BC Safety Authority or by submitting a request online at www. Safetyauthority. ca. All Final Inspection...
We are not affiliated with any brand or entity on this form
Get, Create, Make and Sign permit type electrical
Edit your permit type electrical form online
Type text, complete fillable fields, insert images, highlight or blackout data for discretion, add comments, and more.
Add your legally-binding signature
Draw or type your signature, upload a signature image, or capture it with your digital camera.
Share your form instantly
Email, fax, or share your permit type electrical form via URL. You can also download, print, or export forms to your preferred cloud storage service.
Editing permit type electrical online
To use the professional PDF editor, follow these steps below:
1
Register the account. Begin by clicking Start Free Trial and create a profile if you are a new user.
2
Upload a file. Select Add New on your Dashboard and upload a file from your device or import it from the cloud, online, or internal mail. Then click Edit.
3
Edit permit type electrical. Replace text, adding objects, rearranging pages, and more. Then select the Documents tab to combine, divide, lock or unlock the file.
4
Get your file. Select your file from the documents list and pick your export method. You may save it as a PDF, email it, or upload it to the cloud.
pdfFiller makes dealing with documents a breeze. Create an account to find out!
Uncompromising security for your PDF editing and eSignature needs
Your private information is safe with pdfFiller. We employ end-to-end encryption, secure cloud storage, and advanced access control to protect your documents and maintain regulatory compliance.
How to fill out permit type electrical
How to fill out permit type electrical
01
Start by gathering all the necessary documents and information needed to fill out the permit type electrical form.
02
Read and understand the instructions provided on the form.
03
Carefully complete each section of the form, ensuring all required fields are filled in accurately.
04
Double-check your entries for any errors or omissions before submitting the form.
05
Attach any supporting documents or plans required for the electrical permit.
06
Review the completed form one final time to ensure all information is correct and accurate.
07
Submit the filled-out permit type electrical form to the relevant authority or department.
08
Follow any additional instructions or procedures provided by the authority to complete the permit process.
09
Wait for the approval or feedback from the authority, and follow up if necessary.
10
Once the permit is approved, keep a copy of the permit for your records.
Who needs permit type electrical?
01
Anyone who plans to perform electrical work within a specific jurisdiction or under certain circumstances may need a permit type electrical.
02
Electricians, contractors, or individuals making modifications or installations to electrical systems typically require this type of permit.
03
Different jurisdictions may have specific requirements or thresholds for when a permit is needed, so it is important to consult local regulations and authorities.
04
Examples of electrical work that often require a permit include rewiring a house, installing new electrical fixtures, or making changes to the main electrical panel.
Fill
form
: Try Risk Free
For pdfFiller’s FAQs
Below is a list of the most common customer questions. If you can’t find an answer to your question, please don’t hesitate to reach out to us.
How can I modify permit type electrical without leaving Google Drive?
You can quickly improve your document management and form preparation by integrating pdfFiller with Google Docs so that you can create, edit and sign documents directly from your Google Drive. The add-on enables you to transform your permit type electrical into a dynamic fillable form that you can manage and eSign from any internet-connected device.
Can I sign the permit type electrical electronically in Chrome?
As a PDF editor and form builder, pdfFiller has a lot of features. It also has a powerful e-signature tool that you can add to your Chrome browser. With our extension, you can type, draw, or take a picture of your signature with your webcam to make your legally-binding eSignature. Choose how you want to sign your permit type electrical and you'll be done in minutes.
How do I fill out the permit type electrical form on my smartphone?
On your mobile device, use the pdfFiller mobile app to complete and sign permit type electrical. Visit our website (https://edit-pdf-ios-android.pdffiller.com/) to discover more about our mobile applications, the features you'll have access to, and how to get started.
What is permit type electrical?
Permit type electrical refers to the authorization required to perform electrical work in a specific location.
Who is required to file permit type electrical?
Contractors, electricians, or individuals performing electrical work are required to file permit type electrical.
How to fill out permit type electrical?
Permit type electrical can be filled out by providing necessary information about the electrical work being performed and obtaining the required approvals.
What is the purpose of permit type electrical?
The purpose of permit type electrical is to ensure that electrical work is performed safely and in compliance with relevant regulations and codes.
What information must be reported on permit type electrical?
Information such as the scope of work, location of work, materials used, and qualifications of those performing the work must be reported on permit type electrical.
Fill out your permit type electrical online with pdfFiller!
pdfFiller is an end-to-end solution for managing, creating, and editing documents and forms in the cloud. Save time and hassle by preparing your tax forms online.
Permit Type Electrical is not the form you're looking for?Search for another form here.
Relevant keywords
Related Forms
If you believe that this page should be taken down, please follow our DMCA take down process
here
.
This form may include fields for payment information. Data entered in these fields is not covered by PCI DSS compliance.