Get the free NC Division of Coastal Management Major Permit Form
Show details
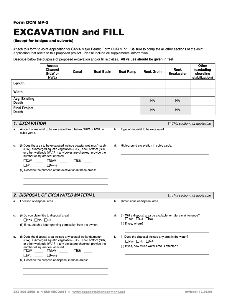
Form DCM MP2EXCAVATION and FILL
(Except for bridges and culverts)
Attach this form to Joint Application for CAME Major Permit, Form DCM MP1. Be sure to complete all other sections of the Joint
Application
We are not affiliated with any brand or entity on this form
Get, Create, Make and Sign nc division of coastal
Edit your nc division of coastal form online
Type text, complete fillable fields, insert images, highlight or blackout data for discretion, add comments, and more.
Add your legally-binding signature
Draw or type your signature, upload a signature image, or capture it with your digital camera.
Share your form instantly
Email, fax, or share your nc division of coastal form via URL. You can also download, print, or export forms to your preferred cloud storage service.
Editing nc division of coastal online
To use our professional PDF editor, follow these steps:
1
Log in. Click Start Free Trial and create a profile if necessary.
2
Prepare a file. Use the Add New button. Then upload your file to the system from your device, importing it from internal mail, the cloud, or by adding its URL.
3
Edit nc division of coastal. Rearrange and rotate pages, add and edit text, and use additional tools. To save changes and return to your Dashboard, click Done. The Documents tab allows you to merge, divide, lock, or unlock files.
4
Save your file. Select it from your records list. Then, click the right toolbar and select one of the various exporting options: save in numerous formats, download as PDF, email, or cloud.
pdfFiller makes working with documents easier than you could ever imagine. Try it for yourself by creating an account!
Uncompromising security for your PDF editing and eSignature needs
Your private information is safe with pdfFiller. We employ end-to-end encryption, secure cloud storage, and advanced access control to protect your documents and maintain regulatory compliance.
How to fill out nc division of coastal
How to fill out nc division of coastal
01
To fill out the NC Division of Coastal form, follow these steps:
02
Begin by downloading the form from the official website of the NC Division of Coastal.
03
Open the downloaded form using a PDF reader.
04
Carefully read all the instructions mentioned on the form.
05
Provide all the necessary personal information, such as your name, address, and contact details, in the designated fields.
06
Answer all the questions accurately and provide any additional information as required.
07
Make sure to double-check all the information filled before submitting the form.
08
If any supporting documents are required, attach them securely along with the form.
09
Finally, submit the completed form to the appropriate department or address mentioned on the form.
Who needs nc division of coastal?
01
The NC Division of Coastal is needed by individuals or entities who are directly involved or have a vested interest in the coastal areas of North Carolina.
02
This includes residents, property owners, environmental organizations, researchers, and businesses operating in the coastal region.
03
The division provides valuable information, services, and regulations related to coastal management, resource protection, and planning.
04
Anyone looking for specific information or seeking permits related to activities in the coastal zone of North Carolina may need to refer to the NC Division of Coastal.
Fill
form
: Try Risk Free
For pdfFiller’s FAQs
Below is a list of the most common customer questions. If you can’t find an answer to your question, please don’t hesitate to reach out to us.
How do I edit nc division of coastal in Chrome?
Install the pdfFiller Chrome Extension to modify, fill out, and eSign your nc division of coastal, which you can access right from a Google search page. Fillable documents without leaving Chrome on any internet-connected device.
Can I create an electronic signature for the nc division of coastal in Chrome?
Yes. You can use pdfFiller to sign documents and use all of the features of the PDF editor in one place if you add this solution to Chrome. In order to use the extension, you can draw or write an electronic signature. You can also upload a picture of your handwritten signature. There is no need to worry about how long it takes to sign your nc division of coastal.
Can I edit nc division of coastal on an iOS device?
Yes, you can. With the pdfFiller mobile app, you can instantly edit, share, and sign nc division of coastal on your iOS device. Get it at the Apple Store and install it in seconds. The application is free, but you will have to create an account to purchase a subscription or activate a free trial.
What is nc division of coastal?
The NC Division of Coastal Management is a state agency responsible for managing the coastal resources of North Carolina.
Who is required to file nc division of coastal?
Any individual, business, or organization that engages in development activities within the coastal area of North Carolina may be required to file with the Division of Coastal Management.
How to fill out nc division of coastal?
To fill out the NC Division of Coastal form, you will need to provide detailed information about the proposed development activity, its impact on coastal resources, and any mitigation measures that will be taken.
What is the purpose of nc division of coastal?
The purpose of the NC Division of Coastal Management is to protect and manage the coastal resources of North Carolina in a sustainable manner.
What information must be reported on nc division of coastal?
The information that must be reported on the NC Division of Coastal form includes the project location, description of the development activity, potential impacts on coastal resources, and proposed mitigation measures.
Fill out your nc division of coastal online with pdfFiller!
pdfFiller is an end-to-end solution for managing, creating, and editing documents and forms in the cloud. Save time and hassle by preparing your tax forms online.
Nc Division Of Coastal is not the form you're looking for?Search for another form here.
Relevant keywords
Related Forms
If you believe that this page should be taken down, please follow our DMCA take down process
here
.
This form may include fields for payment information. Data entered in these fields is not covered by PCI DSS compliance.