Get the free BUILDER TYPES - energystar
Show details
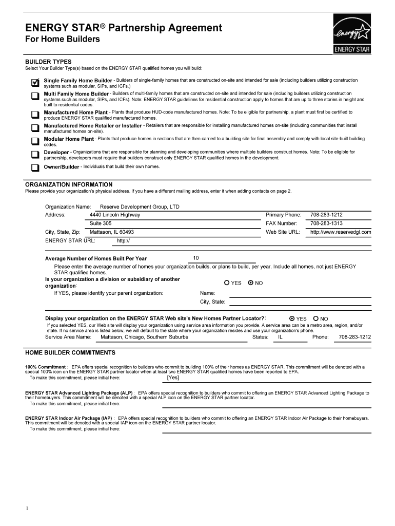
3 Apr 2007 ... Select Your Builder Type(s) based on the ENERGY STAR qualified homes you will build: ... partnership, developers must require that builders construct only ... http://. Average Number
We are not affiliated with any brand or entity on this form
Get, Create, Make and Sign builder types - energystar
Edit your builder types - energystar form online
Type text, complete fillable fields, insert images, highlight or blackout data for discretion, add comments, and more.
Add your legally-binding signature
Draw or type your signature, upload a signature image, or capture it with your digital camera.
Share your form instantly
Email, fax, or share your builder types - energystar form via URL. You can also download, print, or export forms to your preferred cloud storage service.
Editing builder types - energystar online
In order to make advantage of the professional PDF editor, follow these steps:
1
Create an account. Begin by choosing Start Free Trial and, if you are a new user, establish a profile.
2
Prepare a file. Use the Add New button. Then upload your file to the system from your device, importing it from internal mail, the cloud, or by adding its URL.
3
Edit builder types - energystar. Add and replace text, insert new objects, rearrange pages, add watermarks and page numbers, and more. Click Done when you are finished editing and go to the Documents tab to merge, split, lock or unlock the file.
4
Save your file. Select it from your records list. Then, click the right toolbar and select one of the various exporting options: save in numerous formats, download as PDF, email, or cloud.
pdfFiller makes working with documents easier than you could ever imagine. Try it for yourself by creating an account!
Uncompromising security for your PDF editing and eSignature needs
Your private information is safe with pdfFiller. We employ end-to-end encryption, secure cloud storage, and advanced access control to protect your documents and maintain regulatory compliance.
How to fill out builder types - energystar
How to Fill Out Builder Types:
01
Start by gathering all necessary information: Before filling out builder types, it is important to collect all the relevant information that will be required. This may include details such as the project specifications, materials needed, budget, and any other specific requirements.
02
Understand the purpose of each builder type: Different builder types serve different purposes, so it is important to understand what each type represents. For example, there may be builder types for residential projects, commercial projects, or specific industries.
03
Fill out the builder types accurately: Once you have familiarized yourself with the purpose of each builder type, carefully fill out the forms and provide accurate information. Pay attention to any instructions or guidelines provided, as they will help ensure that you complete the forms correctly.
04
Review and double-check the information: After filling out the builder types, take the time to review all the information provided. Make sure that there are no errors or omissions that could potentially cause issues or delays in the construction process.
05
Submit the completed builder types: Once you are confident that the builder types have been filled out accurately, submit them to the appropriate authority or organization as instructed. It is important to follow any specific submission guidelines or deadlines that may be in place.
Who Needs Builder Types:
01
Contractors: Contractors who are involved in construction projects often need to fill out builder types. These forms help ensure that the project is properly planned and executed according to the specific requirements.
02
Architects and Engineers: Professionals in the architectural and engineering fields may also need to fill out builder types. These forms provide crucial information about the project, helping them design and oversee the construction process effectively.
03
Building Owners and Developers: Building owners and developers who are initiating a construction project also need to fill out builder types. These forms help them communicate their needs and requirements to contractors, architects, and engineers involved in the project.
In summary, filling out builder types requires gathering relevant information, understanding the purpose of each builder type, accurately completing the forms, reviewing the information, and submitting the forms as instructed. Builder types are typically needed by contractors, architects, engineers, building owners, and developers involved in construction projects.
Fill
form
: Try Risk Free
For pdfFiller’s FAQs
Below is a list of the most common customer questions. If you can’t find an answer to your question, please don’t hesitate to reach out to us.
How do I execute builder types - energystar online?
pdfFiller makes it easy to finish and sign builder types - energystar online. It lets you make changes to original PDF content, highlight, black out, erase, and write text anywhere on a page, legally eSign your form, and more, all from one place. Create a free account and use the web to keep track of professional documents.
Can I sign the builder types - energystar electronically in Chrome?
Yes. You can use pdfFiller to sign documents and use all of the features of the PDF editor in one place if you add this solution to Chrome. In order to use the extension, you can draw or write an electronic signature. You can also upload a picture of your handwritten signature. There is no need to worry about how long it takes to sign your builder types - energystar.
How do I complete builder types - energystar on an Android device?
Complete builder types - energystar and other documents on your Android device with the pdfFiller app. The software allows you to modify information, eSign, annotate, and share files. You may view your papers from anywhere with an internet connection.
What is builder types?
Builder types refer to the different categories or types of builders in the construction industry.
Who is required to file builder types?
Builders, contractors, or construction companies are required to file builder types.
How to fill out builder types?
Builder types can be filled out by providing information about the type of construction work being done and the relevant details of the builder.
What is the purpose of builder types?
The purpose of builder types is to categorize builders based on the type of construction work they specialize in.
What information must be reported on builder types?
Information such as the type of construction work, builder's details, and project specifics must be reported on builder types.
Fill out your builder types - energystar online with pdfFiller!
pdfFiller is an end-to-end solution for managing, creating, and editing documents and forms in the cloud. Save time and hassle by preparing your tax forms online.
Builder Types - Energystar is not the form you're looking for?Search for another form here.
Relevant keywords
Related Forms
If you believe that this page should be taken down, please follow our DMCA take down process
here
.
This form may include fields for payment information. Data entered in these fields is not covered by PCI DSS compliance.