Get the free Ground Up Construction Application: General Liability and ...
Show details
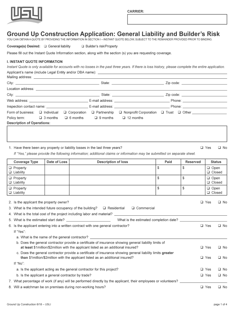
CARRIER:Ground Up Construction Application: General Liability and Builders Risk YOU CAN OBTAIN A QUOTE BY PROVIDING THE INFORMATION IN SECTION I Instantly QUOTE BELOW, SUBJECT TO THE REMAINDER PROVIDED
We are not affiliated with any brand or entity on this form
Get, Create, Make and Sign ground up construction application
Edit your ground up construction application form online
Type text, complete fillable fields, insert images, highlight or blackout data for discretion, add comments, and more.
Add your legally-binding signature
Draw or type your signature, upload a signature image, or capture it with your digital camera.
Share your form instantly
Email, fax, or share your ground up construction application form via URL. You can also download, print, or export forms to your preferred cloud storage service.
How to edit ground up construction application online
Use the instructions below to start using our professional PDF editor:
1
Create an account. Begin by choosing Start Free Trial and, if you are a new user, establish a profile.
2
Simply add a document. Select Add New from your Dashboard and import a file into the system by uploading it from your device or importing it via the cloud, online, or internal mail. Then click Begin editing.
3
Edit ground up construction application. Replace text, adding objects, rearranging pages, and more. Then select the Documents tab to combine, divide, lock or unlock the file.
4
Save your file. Select it from your records list. Then, click the right toolbar and select one of the various exporting options: save in numerous formats, download as PDF, email, or cloud.
With pdfFiller, it's always easy to deal with documents. Try it right now
Uncompromising security for your PDF editing and eSignature needs
Your private information is safe with pdfFiller. We employ end-to-end encryption, secure cloud storage, and advanced access control to protect your documents and maintain regulatory compliance.
How to fill out ground up construction application
How to fill out ground up construction application
01
Step 1: Gather all necessary documents and information, such as architectural plans, engineering reports, and budget estimates.
02
Step 2: Review the application form and make sure you understand all the requirements and instructions.
03
Step 3: Fill out the application form accurately and completely, providing all requested details and attaching any required documents.
04
Step 4: Double-check the completed application for any errors or omissions before submitting it.
05
Step 5: Submit the filled-out application form and supporting documents to the appropriate authority or agency, following their submission guidelines.
06
Step 6: Pay any applicable fees or charges related to the application.
07
Step 7: Keep track of the application status and follow up with the authority or agency if necessary.
08
Step 8: Once the application is approved, proceed with the ground up construction project as per the approved plans and guidelines.
Who needs ground up construction application?
01
Individuals or companies planning to undertake a construction project from scratch
02
Architects, contractors, or builders who specialize in ground up construction
03
Real estate developers or investors looking to develop a new property
04
Government entities or agencies involved in urban development and infrastructure projects
Fill
form
: Try Risk Free
For pdfFiller’s FAQs
Below is a list of the most common customer questions. If you can’t find an answer to your question, please don’t hesitate to reach out to us.
Can I create an electronic signature for the ground up construction application in Chrome?
Yes. By adding the solution to your Chrome browser, you may use pdfFiller to eSign documents while also enjoying all of the PDF editor's capabilities in one spot. Create a legally enforceable eSignature by sketching, typing, or uploading a photo of your handwritten signature using the extension. Whatever option you select, you'll be able to eSign your ground up construction application in seconds.
How do I edit ground up construction application straight from my smartphone?
Using pdfFiller's mobile-native applications for iOS and Android is the simplest method to edit documents on a mobile device. You may get them from the Apple App Store and Google Play, respectively. More information on the apps may be found here. Install the program and log in to begin editing ground up construction application.
How do I fill out ground up construction application on an Android device?
Use the pdfFiller app for Android to finish your ground up construction application. The application lets you do all the things you need to do with documents, like add, edit, and remove text, sign, annotate, and more. There is nothing else you need except your smartphone and an internet connection to do this.
What is ground up construction application?
Ground up construction application is the application filed to begin a construction project from scratch, starting with clearing the land and laying the foundation.
Who is required to file ground up construction application?
Property owners or developers planning new construction projects are required to file ground up construction applications.
How to fill out ground up construction application?
Ground up construction application can be filled out by providing detailed information about the project, including the scope of work, timeline, budget, and any necessary permits.
What is the purpose of ground up construction application?
The purpose of ground up construction application is to obtain approval from local authorities and ensure that the construction project complies with regulations and building codes.
What information must be reported on ground up construction application?
Ground up construction application must include details about the project location, design plans, environmental impact assessment, and construction materials.
Fill out your ground up construction application online with pdfFiller!
pdfFiller is an end-to-end solution for managing, creating, and editing documents and forms in the cloud. Save time and hassle by preparing your tax forms online.
Ground Up Construction Application is not the form you're looking for?Search for another form here.
Relevant keywords
Related Forms
If you believe that this page should be taken down, please follow our DMCA take down process
here
.
This form may include fields for payment information. Data entered in these fields is not covered by PCI DSS compliance.