Get the free Single residential property located in the metropolitan area
Show details
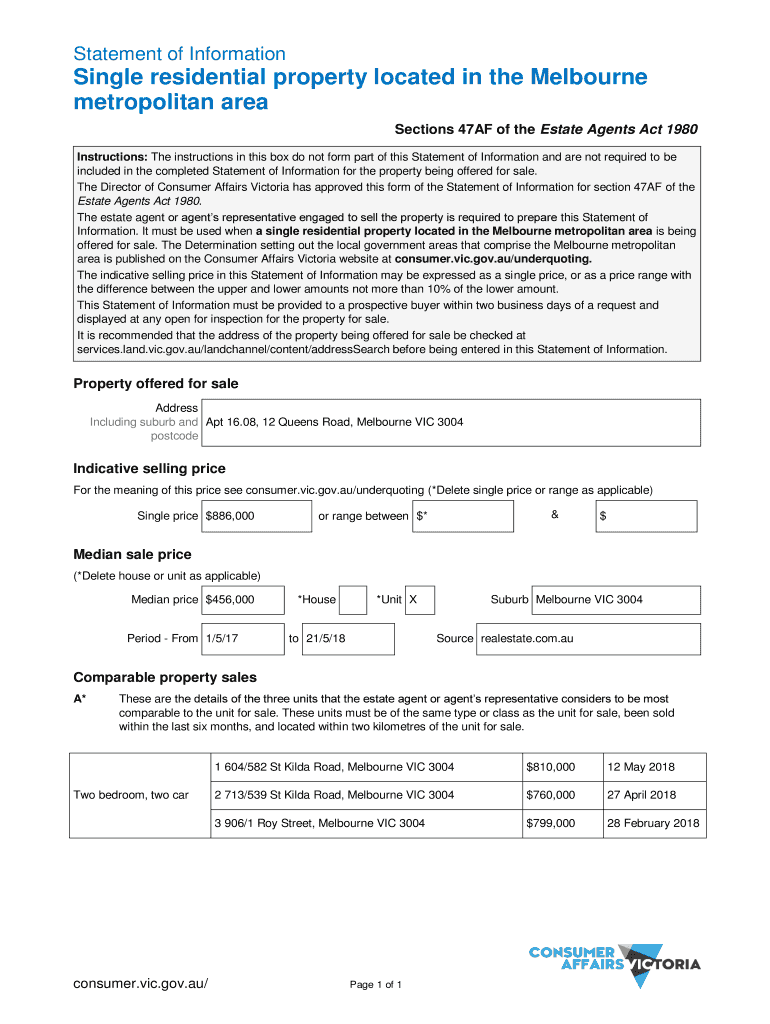
Statement of InformationSingle residential property located in the Melbourne
metropolitan area
Sections 47AF of the Estate Agents Act 1980
Instructions: The instructions in this box do not form part
We are not affiliated with any brand or entity on this form
Get, Create, Make and Sign single residential property located
Edit your single residential property located form online
Type text, complete fillable fields, insert images, highlight or blackout data for discretion, add comments, and more.
Add your legally-binding signature
Draw or type your signature, upload a signature image, or capture it with your digital camera.
Share your form instantly
Email, fax, or share your single residential property located form via URL. You can also download, print, or export forms to your preferred cloud storage service.
Editing single residential property located online
To use our professional PDF editor, follow these steps:
1
Log in to your account. Start Free Trial and sign up a profile if you don't have one yet.
2
Prepare a file. Use the Add New button. Then upload your file to the system from your device, importing it from internal mail, the cloud, or by adding its URL.
3
Edit single residential property located. Add and replace text, insert new objects, rearrange pages, add watermarks and page numbers, and more. Click Done when you are finished editing and go to the Documents tab to merge, split, lock or unlock the file.
4
Get your file. When you find your file in the docs list, click on its name and choose how you want to save it. To get the PDF, you can save it, send an email with it, or move it to the cloud.
With pdfFiller, it's always easy to deal with documents.
Uncompromising security for your PDF editing and eSignature needs
Your private information is safe with pdfFiller. We employ end-to-end encryption, secure cloud storage, and advanced access control to protect your documents and maintain regulatory compliance.
How to fill out single residential property located
How to fill out single residential property located
01
Start by gathering all necessary documents and information such as property address, owner's contact details, and property details.
02
Determine the type of form or application required to fill out the single residential property located, which could vary depending on the specific purpose or location.
03
Read the instructions carefully to understand the information required in each section of the form.
04
Provide accurate and complete details about the property, including its physical characteristics, ownership status, and any applicable permits or licenses.
05
Include any additional required documentation or supporting evidence, such as property surveys, site plans, or architectural drawings.
06
Double-check all the information provided before submitting the completed form.
07
Submit the filled-out form along with any required fees or payments to the appropriate authority or organization, following the specified submission method.
08
Maintain a copy of the filled-out form and any supporting documents for your records.
09
Follow up with the relevant authority or organization to ensure the processing and approval of your application for the single residential property located.
10
Once approved, make any necessary arrangements to complete the legal formalities, such as signing contracts or obtaining registered deeds for the property.
Who needs single residential property located?
01
Individuals or families who are looking to purchase or rent a single residential property.
Fill
form
: Try Risk Free
For pdfFiller’s FAQs
Below is a list of the most common customer questions. If you can’t find an answer to your question, please don’t hesitate to reach out to us.
How can I edit single residential property located from Google Drive?
pdfFiller and Google Docs can be used together to make your documents easier to work with and to make fillable forms right in your Google Drive. The integration will let you make, change, and sign documents, like single residential property located, without leaving Google Drive. Add pdfFiller's features to Google Drive, and you'll be able to do more with your paperwork on any internet-connected device.
How do I make changes in single residential property located?
With pdfFiller, you may not only alter the content but also rearrange the pages. Upload your single residential property located and modify it with a few clicks. The editor lets you add photos, sticky notes, text boxes, and more to PDFs.
How do I fill out single residential property located using my mobile device?
You can easily create and fill out legal forms with the help of the pdfFiller mobile app. Complete and sign single residential property located and other documents on your mobile device using the application. Visit pdfFiller’s webpage to learn more about the functionalities of the PDF editor.
What is single residential property located?
Single residential property located refers to a property intended for residential use by a single family or household.
Who is required to file single residential property located?
Property owners or their authorized representatives are required to file single residential property located.
How to fill out single residential property located?
To fill out single residential property located, provide accurate information about the property's location, ownership details, and any relevant documentation.
What is the purpose of single residential property located?
The purpose of single residential property located is to ensure that accurate data is collected for tax and administrative purposes.
What information must be reported on single residential property located?
Information such as property address, owner's name, contact information, and any changes in ownership or use must be reported on single residential property located.
Fill out your single residential property located online with pdfFiller!
pdfFiller is an end-to-end solution for managing, creating, and editing documents and forms in the cloud. Save time and hassle by preparing your tax forms online.
Single Residential Property Located is not the form you're looking for?Search for another form here.
Relevant keywords
Related Forms
If you believe that this page should be taken down, please follow our DMCA take down process
here
.
This form may include fields for payment information. Data entered in these fields is not covered by PCI DSS compliance.