Get the free Statement of informationMultiple residential properties - 973 Dandenong Road%2c Malv...
Show details
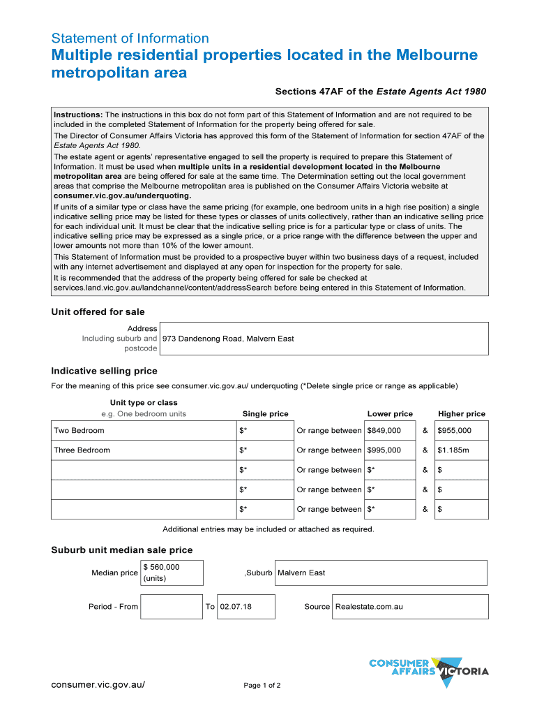
Statement of InformationMultiple residential properties located in the Melbourne
metropolitan area
Sections 47AF of the Estate Agents Act 1980
Instructions: The instructions in this box do not form
We are not affiliated with any brand or entity on this form
Get, Create, Make and Sign statement of informationmultiple residential
Edit your statement of informationmultiple residential form online
Type text, complete fillable fields, insert images, highlight or blackout data for discretion, add comments, and more.
Add your legally-binding signature
Draw or type your signature, upload a signature image, or capture it with your digital camera.
Share your form instantly
Email, fax, or share your statement of informationmultiple residential form via URL. You can also download, print, or export forms to your preferred cloud storage service.
How to edit statement of informationmultiple residential online
Follow the guidelines below to benefit from the PDF editor's expertise:
1
Sign into your account. If you don't have a profile yet, click Start Free Trial and sign up for one.
2
Simply add a document. Select Add New from your Dashboard and import a file into the system by uploading it from your device or importing it via the cloud, online, or internal mail. Then click Begin editing.
3
Edit statement of informationmultiple residential. Rearrange and rotate pages, add and edit text, and use additional tools. To save changes and return to your Dashboard, click Done. The Documents tab allows you to merge, divide, lock, or unlock files.
4
Get your file. Select the name of your file in the docs list and choose your preferred exporting method. You can download it as a PDF, save it in another format, send it by email, or transfer it to the cloud.
Dealing with documents is always simple with pdfFiller.
Uncompromising security for your PDF editing and eSignature needs
Your private information is safe with pdfFiller. We employ end-to-end encryption, secure cloud storage, and advanced access control to protect your documents and maintain regulatory compliance.
How to fill out statement of informationmultiple residential
How to fill out statement of informationmultiple residential
01
Gather all the necessary information such as name, address, social security number, and date of birth for each person living in the multiple residential property.
02
Start by filling out the basic information section, which includes the address of the property and the type of ownership.
03
Provide details about the structure of the property, such as the number of units and the year it was built.
04
Fill out the section for each individual living in the property, providing their personal information and relationship to the owner.
05
Include any additional information required, such as income details or rental agreements.
06
Double-check all the information provided and make sure it is accurate and complete.
07
Sign and date the statement of information.
08
Submit the completed form to the relevant authority or organization as per the given instructions.
Who needs statement of informationmultiple residential?
01
The statement of information multiple residential is needed by property owners who own a multiple residential property and need to provide accurate information about the residents living in the property. This information is often required by government agencies, housing authorities, or other organizations for various purposes such as population tracking, tax assessment, or planning purposes.
Fill
form
: Try Risk Free
For pdfFiller’s FAQs
Below is a list of the most common customer questions. If you can’t find an answer to your question, please don’t hesitate to reach out to us.
How do I edit statement of informationmultiple residential in Chrome?
Adding the pdfFiller Google Chrome Extension to your web browser will allow you to start editing statement of informationmultiple residential and other documents right away when you search for them on a Google page. People who use Chrome can use the service to make changes to their files while they are on the Chrome browser. pdfFiller lets you make fillable documents and make changes to existing PDFs from any internet-connected device.
How can I edit statement of informationmultiple residential on a smartphone?
The best way to make changes to documents on a mobile device is to use pdfFiller's apps for iOS and Android. You may get them from the Apple Store and Google Play. Learn more about the apps here. To start editing statement of informationmultiple residential, you need to install and log in to the app.
How do I fill out the statement of informationmultiple residential form on my smartphone?
You can easily create and fill out legal forms with the help of the pdfFiller mobile app. Complete and sign statement of informationmultiple residential and other documents on your mobile device using the application. Visit pdfFiller’s webpage to learn more about the functionalities of the PDF editor.
What is statement of informationmultiple residential?
The statement of informationmultiple residential is a document that provides details about multiple residential properties.
Who is required to file statement of informationmultiple residential?
Property owners, landlords, or property management companies are required to file the statement of informationmultiple residential.
How to fill out statement of informationmultiple residential?
The statement of informationmultiple residential can be filled out online or by submitting a paper form with all the required information about each residential property.
What is the purpose of statement of informationmultiple residential?
The purpose of the statement of informationmultiple residential is to provide accurate and up-to-date information about residential properties for regulatory and compliance purposes.
What information must be reported on statement of informationmultiple residential?
The statement of informationmultiple residential must include details such as property addresses, ownership information, rental income, and any outstanding violations or maintenance issues.
Fill out your statement of informationmultiple residential online with pdfFiller!
pdfFiller is an end-to-end solution for managing, creating, and editing documents and forms in the cloud. Save time and hassle by preparing your tax forms online.
Statement Of Informationmultiple Residential is not the form you're looking for?Search for another form here.
Relevant keywords
Related Forms
If you believe that this page should be taken down, please follow our DMCA take down process
here
.
This form may include fields for payment information. Data entered in these fields is not covered by PCI DSS compliance.