
Get the free Deadwood Draw
Show details
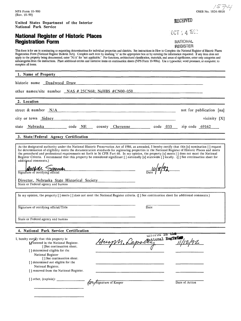
/6 NFS Form 10900 (Rev. 1090)OMB No. 10240018United States Department of the Interior National Park Service1GC 'National Register of Historic Places Registration Formation Registers form is for use
We are not affiliated with any brand or entity on this form
Get, Create, Make and Sign deadwood draw

Edit your deadwood draw form online
Type text, complete fillable fields, insert images, highlight or blackout data for discretion, add comments, and more.

Add your legally-binding signature
Draw or type your signature, upload a signature image, or capture it with your digital camera.

Share your form instantly
Email, fax, or share your deadwood draw form via URL. You can also download, print, or export forms to your preferred cloud storage service.
How to edit deadwood draw online
In order to make advantage of the professional PDF editor, follow these steps:
1
Log into your account. In case you're new, it's time to start your free trial.
2
Upload a file. Select Add New on your Dashboard and upload a file from your device or import it from the cloud, online, or internal mail. Then click Edit.
3
Edit deadwood draw. Rearrange and rotate pages, add and edit text, and use additional tools. To save changes and return to your Dashboard, click Done. The Documents tab allows you to merge, divide, lock, or unlock files.
4
Save your file. Select it from your list of records. Then, move your cursor to the right toolbar and choose one of the exporting options. You can save it in multiple formats, download it as a PDF, send it by email, or store it in the cloud, among other things.
Dealing with documents is always simple with pdfFiller. Try it right now
Uncompromising security for your PDF editing and eSignature needs
Your private information is safe with pdfFiller. We employ end-to-end encryption, secure cloud storage, and advanced access control to protect your documents and maintain regulatory compliance.
How to fill out deadwood draw

How to fill out deadwood draw
01
To fill out a deadwood draw, follow these steps:
02
Start by understanding the rules and objectives of the game.
03
Arrange the deck of cards in a specific way to form the draw pile.
04
Each player should be dealt a specific number of cards from the draw pile.
05
Once the cards are dealt, players take turns to pick a card from either the draw pile or discard pile.
06
Players must strategically choose cards to form melds (sets or runs) and discard unnecessary cards.
07
The game continues until one player has no more deadwood remaining.
08
Calculate the deadwood points for each player based on the value of their remaining cards.
09
The player with the lowest deadwood points wins the game.
Who needs deadwood draw?
01
Deadwood draw is a card game suitable for individuals who enjoy strategic thinking and competitive gameplay.
02
It is popular among card game enthusiasts and can be played by anyone interested in improving their skills in such games.
03
People who enjoy playing Rummy or similar card games often find Deadwood draw appealing.
Fill
form
: Try Risk Free
For pdfFiller’s FAQs
Below is a list of the most common customer questions. If you can’t find an answer to your question, please don’t hesitate to reach out to us.
How can I get deadwood draw?
The premium version of pdfFiller gives you access to a huge library of fillable forms (more than 25 million fillable templates). You can download, fill out, print, and sign them all. State-specific deadwood draw and other forms will be easy to find in the library. Find the template you need and use advanced editing tools to make it your own.
How can I edit deadwood draw on a smartphone?
The best way to make changes to documents on a mobile device is to use pdfFiller's apps for iOS and Android. You may get them from the Apple Store and Google Play. Learn more about the apps here. To start editing deadwood draw, you need to install and log in to the app.
How do I fill out the deadwood draw form on my smartphone?
On your mobile device, use the pdfFiller mobile app to complete and sign deadwood draw. Visit our website (https://edit-pdf-ios-android.pdffiller.com/) to discover more about our mobile applications, the features you'll have access to, and how to get started.
What is deadwood draw?
Deadwood draw is a term used to describe the process of removing dead or dying trees from a forest to promote overall forest health and reduce the risk of wildfire.
Who is required to file deadwood draw?
Forest landowners, logging companies, and other stakeholders involved in forest management are typically required to file deadwood draw plans.
How to fill out deadwood draw?
Deadwood draw plans can be filled out by assessing the forest area, identifying dead or dying trees, and detailing the harvesting and removal process.
What is the purpose of deadwood draw?
The purpose of deadwood draw is to improve forest health, reduce wildfire risk, and promote sustainable forest management practices.
What information must be reported on deadwood draw?
Deadwood draw plans should include details on the location of dead or dying trees, the proposed harvesting methods, and the timeline for removal.
Fill out your deadwood draw online with pdfFiller!
pdfFiller is an end-to-end solution for managing, creating, and editing documents and forms in the cloud. Save time and hassle by preparing your tax forms online.

Deadwood Draw is not the form you're looking for?Search for another form here.
Relevant keywords
Related Forms
If you believe that this page should be taken down, please follow our DMCA take down process
here
.
This form may include fields for payment information. Data entered in these fields is not covered by PCI DSS compliance.