
Get the free INTERNAL RESPONSE
Show details
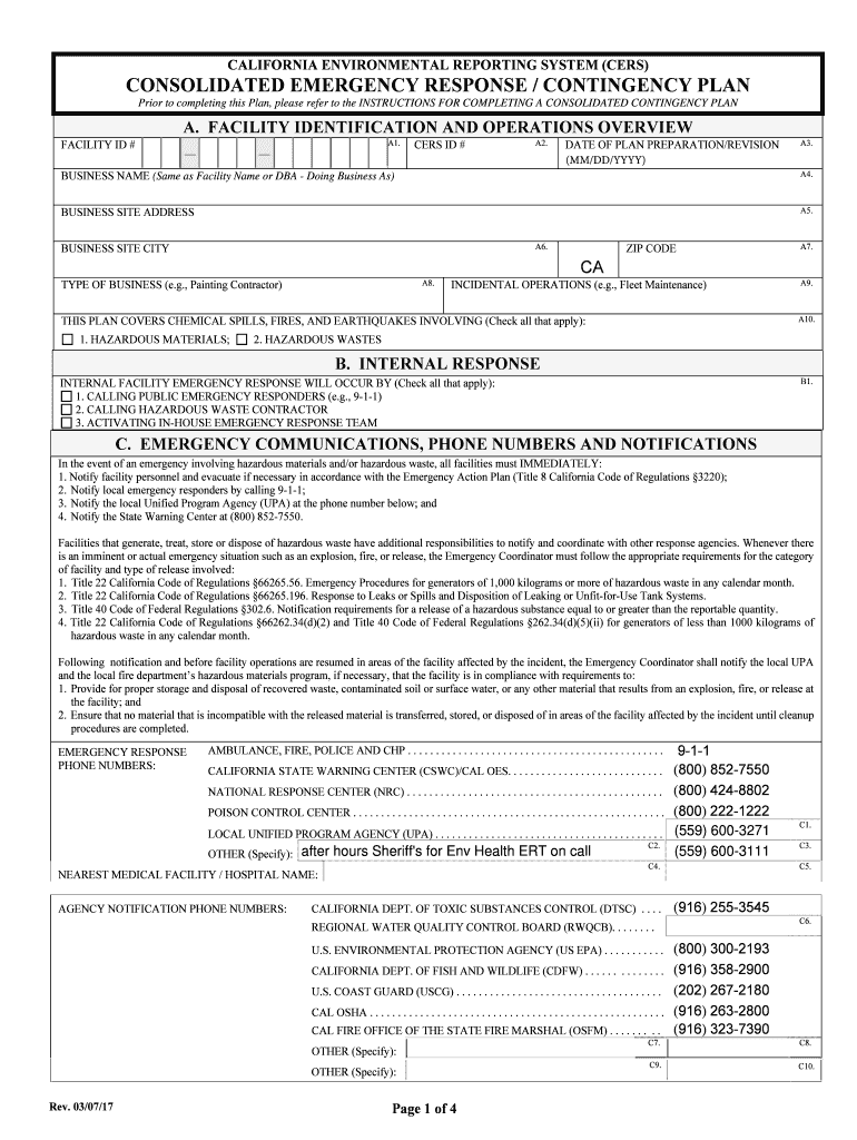
CALIFORNIA ENVIRONMENTAL REPORTING SYSTEM (CARS)CONSOLIDATED EMERGENCY RESPONSE / CONTINGENCY PLAN Prior to completing this Plan, please refer to the INSTRUCTIONS FOR COMPLETING A CONSOLIDATED CONTINGENCY
We are not affiliated with any brand or entity on this form
Get, Create, Make and Sign internal response

Edit your internal response form online
Type text, complete fillable fields, insert images, highlight or blackout data for discretion, add comments, and more.

Add your legally-binding signature
Draw or type your signature, upload a signature image, or capture it with your digital camera.

Share your form instantly
Email, fax, or share your internal response form via URL. You can also download, print, or export forms to your preferred cloud storage service.
Editing internal response online
Follow the steps below to benefit from the PDF editor's expertise:
1
Log in to your account. Click on Start Free Trial and register a profile if you don't have one.
2
Upload a document. Select Add New on your Dashboard and transfer a file into the system in one of the following ways: by uploading it from your device or importing from the cloud, web, or internal mail. Then, click Start editing.
3
Edit internal response. Add and replace text, insert new objects, rearrange pages, add watermarks and page numbers, and more. Click Done when you are finished editing and go to the Documents tab to merge, split, lock or unlock the file.
4
Save your file. Select it in the list of your records. Then, move the cursor to the right toolbar and choose one of the available exporting methods: save it in multiple formats, download it as a PDF, send it by email, or store it in the cloud.
With pdfFiller, it's always easy to work with documents. Try it!
Uncompromising security for your PDF editing and eSignature needs
Your private information is safe with pdfFiller. We employ end-to-end encryption, secure cloud storage, and advanced access control to protect your documents and maintain regulatory compliance.
How to fill out internal response

How to fill out internal response
01
To fill out an internal response, follow these steps:
02
Open the internal response form
03
Enter the required information such as name, employee ID, date, and department
04
Fill in the details of the response, providing clear and concise information
05
Provide any necessary supporting documentation or attachments
06
Review the response for accuracy and completeness
07
Submit the internal response form according to the designated process or protocol
08
Keep a copy of the filled-out response form for your records
Who needs internal response?
01
Internal response is typically needed by employees or departments within an organization. It is used for various purposes such as reporting incidents, addressing internal issues, providing updates or feedback, requesting resources or approvals, and communicating internally within the organization. Anyone who requires a formal and documented response within the internal framework of the organization may need an internal response.
Fill
form
: Try Risk Free
For pdfFiller’s FAQs
Below is a list of the most common customer questions. If you can’t find an answer to your question, please don’t hesitate to reach out to us.
How can I send internal response to be eSigned by others?
Once your internal response is complete, you can securely share it with recipients and gather eSignatures with pdfFiller in just a few clicks. You may transmit a PDF by email, text message, fax, USPS mail, or online notarization directly from your account. Make an account right now and give it a go.
How do I complete internal response online?
Completing and signing internal response online is easy with pdfFiller. It enables you to edit original PDF content, highlight, blackout, erase and type text anywhere on a page, legally eSign your form, and much more. Create your free account and manage professional documents on the web.
How do I make edits in internal response without leaving Chrome?
Get and add pdfFiller Google Chrome Extension to your browser to edit, fill out and eSign your internal response, which you can open in the editor directly from a Google search page in just one click. Execute your fillable documents from any internet-connected device without leaving Chrome.
What is internal response?
Internal response is a formal written document filed in response to a legal complaint or petition.
Who is required to file internal response?
The defendant or respondent named in the legal complaint or petition is required to file the internal response.
How to fill out internal response?
The internal response should be filled out accurately and completely with all relevant information and supporting documents.
What is the purpose of internal response?
The purpose of the internal response is to outline the defendant's position and defenses against the allegations in the legal complaint.
What information must be reported on internal response?
The internal response must include the defendant's name, contact information, response to each allegation in the complaint, and any affirmative defenses.
Fill out your internal response online with pdfFiller!
pdfFiller is an end-to-end solution for managing, creating, and editing documents and forms in the cloud. Save time and hassle by preparing your tax forms online.

Internal Response is not the form you're looking for?Search for another form here.
Relevant keywords
Related Forms
If you believe that this page should be taken down, please follow our DMCA take down process
here
.
This form may include fields for payment information. Data entered in these fields is not covered by PCI DSS compliance.