
Get the free Single price $*365,000
Show details
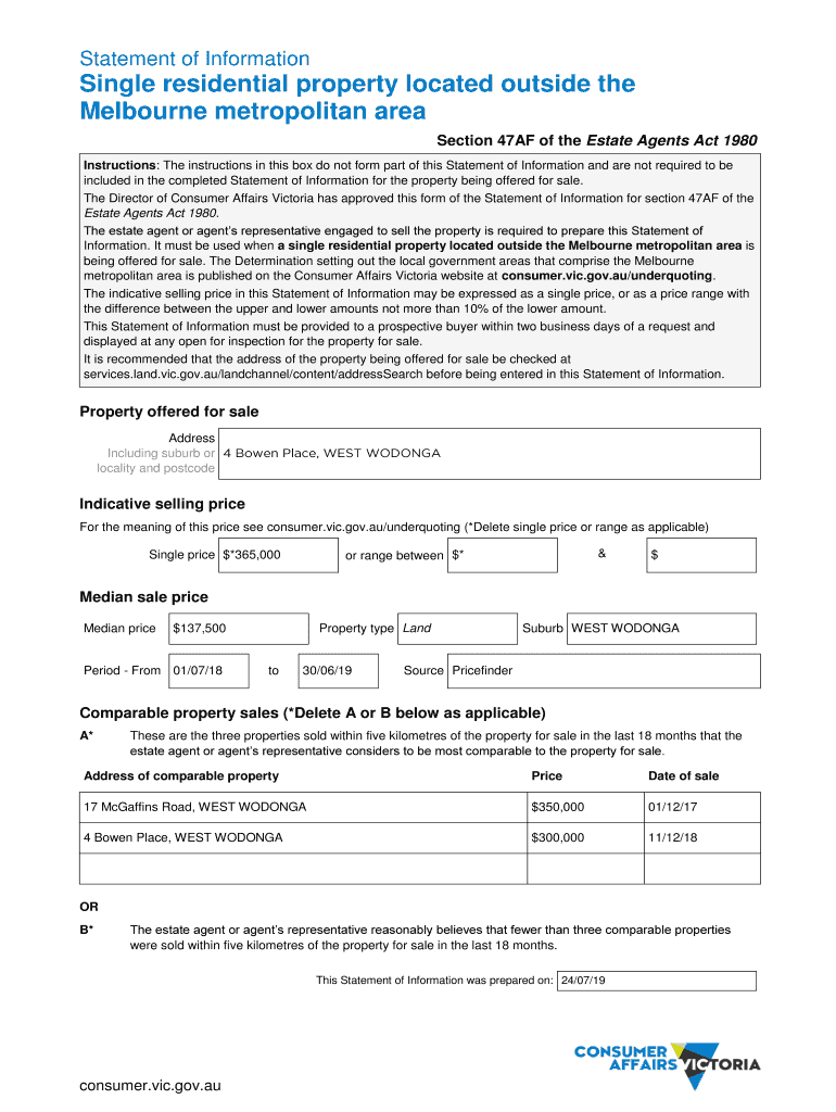
Statement of InformationSingle residential property located outside the
Melbourne metropolitan area
Section 47AF of the Estate Agents Act 1980
Instructions: The instructions in this box do not form
We are not affiliated with any brand or entity on this form
Get, Create, Make and Sign single price 365000

Edit your single price 365000 form online
Type text, complete fillable fields, insert images, highlight or blackout data for discretion, add comments, and more.

Add your legally-binding signature
Draw or type your signature, upload a signature image, or capture it with your digital camera.

Share your form instantly
Email, fax, or share your single price 365000 form via URL. You can also download, print, or export forms to your preferred cloud storage service.
How to edit single price 365000 online
In order to make advantage of the professional PDF editor, follow these steps:
1
Log in. Click Start Free Trial and create a profile if necessary.
2
Simply add a document. Select Add New from your Dashboard and import a file into the system by uploading it from your device or importing it via the cloud, online, or internal mail. Then click Begin editing.
3
Edit single price 365000. Rearrange and rotate pages, insert new and alter existing texts, add new objects, and take advantage of other helpful tools. Click Done to apply changes and return to your Dashboard. Go to the Documents tab to access merging, splitting, locking, or unlocking functions.
4
Save your file. Select it in the list of your records. Then, move the cursor to the right toolbar and choose one of the available exporting methods: save it in multiple formats, download it as a PDF, send it by email, or store it in the cloud.
pdfFiller makes dealing with documents a breeze. Create an account to find out!
Uncompromising security for your PDF editing and eSignature needs
Your private information is safe with pdfFiller. We employ end-to-end encryption, secure cloud storage, and advanced access control to protect your documents and maintain regulatory compliance.
How to fill out single price 365000

How to fill out single price 365000
01
To fill out the single price of 365000, follow these steps:
02
- Start by opening the form or document where the single price needs to be filled.
03
- Locate the field or section designated for the single price.
04
- Enter the value 365000 into the field.
05
- Double-check the accuracy of the entered value.
06
- Save or submit the form/document.
Who needs single price 365000?
01
Single price 365000 may be needed by individuals or businesses in various contexts, such as:
02
- Real estate agents or property sellers listing a property for sale at a fixed price.
03
- Retailers or e-commerce platforms setting the price for a specific product.
04
- Service providers offering a package or service at a set price.
05
- Accountants or financial professionals working with financial statements or pricing analysis.
06
- Any individual or organization requiring a standardized single price of 365000 for documentation or record-keeping purposes.
Fill
form
: Try Risk Free
For pdfFiller’s FAQs
Below is a list of the most common customer questions. If you can’t find an answer to your question, please don’t hesitate to reach out to us.
How do I edit single price 365000 online?
pdfFiller not only allows you to edit the content of your files but fully rearrange them by changing the number and sequence of pages. Upload your single price 365000 to the editor and make any required adjustments in a couple of clicks. The editor enables you to blackout, type, and erase text in PDFs, add images, sticky notes and text boxes, and much more.
How do I fill out the single price 365000 form on my smartphone?
Use the pdfFiller mobile app to fill out and sign single price 365000. Visit our website (https://edit-pdf-ios-android.pdffiller.com/) to learn more about our mobile applications, their features, and how to get started.
How do I edit single price 365000 on an Android device?
You can edit, sign, and distribute single price 365000 on your mobile device from anywhere using the pdfFiller mobile app for Android; all you need is an internet connection. Download the app and begin streamlining your document workflow from anywhere.
What is single price 365000?
Single price 365000 refers to a specific price of 365,000 units of a particular item.
Who is required to file single price 365000?
The individuals or businesses who are involved in transactions related to the price of 365,000 units of a particular item are required to file single price 365000.
How to fill out single price 365000?
To fill out single price 365000, one must provide detailed information about the item, quantity, pricing, and transaction details related to 365,000 units.
What is the purpose of single price 365000?
The purpose of single price 365000 is to accurately report and document transactions involving 365,000 units of a specific item for record-keeping and analysis purposes.
What information must be reported on single price 365000?
The information that must be reported on single price 365000 includes details of the item, quantity, pricing, individuals or businesses involved, and any other relevant transaction information.
Fill out your single price 365000 online with pdfFiller!
pdfFiller is an end-to-end solution for managing, creating, and editing documents and forms in the cloud. Save time and hassle by preparing your tax forms online.

Single Price 365000 is not the form you're looking for?Search for another form here.
Relevant keywords
Related Forms
If you believe that this page should be taken down, please follow our DMCA take down process
here
.
This form may include fields for payment information. Data entered in these fields is not covered by PCI DSS compliance.