
Get the free rfp. Statewide traffic and safety services for retro-reflectivity measurements
Show details
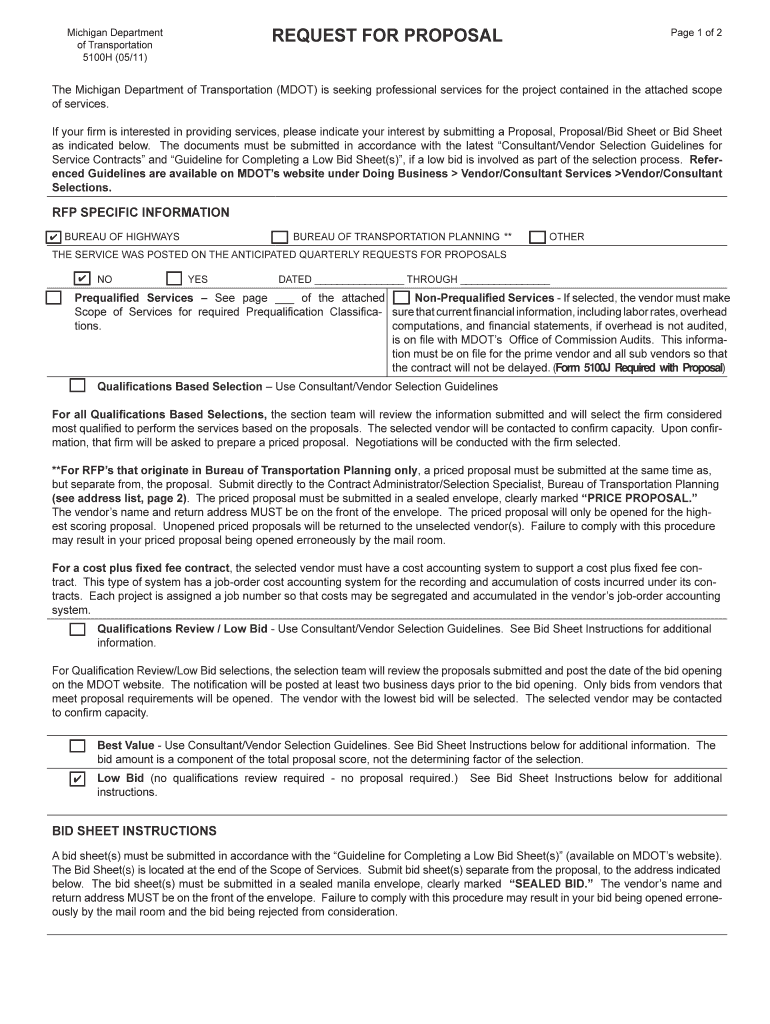
REQUEST FOR PROPOSAL Michigan Department
of Transportation
5100H (05/11)Page 1 of 2Clear Forth Michigan Department of Transportation (DOT) is seeking professional services for the project contained
We are not affiliated with any brand or entity on this form
Get, Create, Make and Sign rfp statewide traffic and

Edit your rfp statewide traffic and form online
Type text, complete fillable fields, insert images, highlight or blackout data for discretion, add comments, and more.

Add your legally-binding signature
Draw or type your signature, upload a signature image, or capture it with your digital camera.

Share your form instantly
Email, fax, or share your rfp statewide traffic and form via URL. You can also download, print, or export forms to your preferred cloud storage service.
Editing rfp statewide traffic and online
Follow the steps below to take advantage of the professional PDF editor:
1
Register the account. Begin by clicking Start Free Trial and create a profile if you are a new user.
2
Upload a file. Select Add New on your Dashboard and upload a file from your device or import it from the cloud, online, or internal mail. Then click Edit.
3
Edit rfp statewide traffic and. Rearrange and rotate pages, add and edit text, and use additional tools. To save changes and return to your Dashboard, click Done. The Documents tab allows you to merge, divide, lock, or unlock files.
4
Get your file. Select your file from the documents list and pick your export method. You may save it as a PDF, email it, or upload it to the cloud.
With pdfFiller, dealing with documents is always straightforward.
Uncompromising security for your PDF editing and eSignature needs
Your private information is safe with pdfFiller. We employ end-to-end encryption, secure cloud storage, and advanced access control to protect your documents and maintain regulatory compliance.
How to fill out rfp statewide traffic and

How to fill out rfp statewide traffic and
01
Start by gathering all relevant information about the traffic requirements statewide.
02
Review the request for proposal (RFP) document thoroughly to understand the specific guidelines and instructions for filling it out.
03
Begin by providing your organization's details, such as name, address, contact information, and any necessary registration or certification numbers.
04
Follow the outline provided in the RFP document to address each section or question appropriately.
05
Include a clear and concise executive summary that highlights the key points of your proposal.
06
Provide a detailed description of the proposed traffic solution, including the technologies, methodologies, and strategies to be employed.
07
Outline the timeline for implementation and any associated milestones or deliverables.
08
Include a comprehensive budget proposal, breaking down the costs for hardware, software, personnel, and any other relevant expenses.
09
Highlight your organization's qualifications, experience, and track record in handling similar traffic projects.
10
Ensure that all required supporting documents, such as financial statements, references, and previous client testimonials, are included.
11
Review and proofread your completed RFP statewide traffic submission before submitting it.
12
Submit the filled-out RFP according to the guidelines provided, including any required supporting documents.
13
Follow up with the relevant authorities or organizations to ensure that your submission is received and acknowledged.
Who needs rfp statewide traffic and?
01
Government transportation departments or agencies that are responsible for managing traffic statewide.
02
Private companies or contractors specializing in traffic management and control systems.
03
Consulting firms or experts in transportation planning and policy.
04
Traffic engineering firms or professionals.
05
Organizations involved in infrastructure development and maintenance.
06
Urban planning departments or agencies.
07
Companies or individuals involved in the research and development of traffic-related technologies or solutions.
Fill
form
: Try Risk Free
For pdfFiller’s FAQs
Below is a list of the most common customer questions. If you can’t find an answer to your question, please don’t hesitate to reach out to us.
How can I get rfp statewide traffic and?
It's simple with pdfFiller, a full online document management tool. Access our huge online form collection (over 25M fillable forms are accessible) and find the rfp statewide traffic and in seconds. Open it immediately and begin modifying it with powerful editing options.
How do I make edits in rfp statewide traffic and without leaving Chrome?
Install the pdfFiller Google Chrome Extension in your web browser to begin editing rfp statewide traffic and and other documents right from a Google search page. When you examine your documents in Chrome, you may make changes to them. With pdfFiller, you can create fillable documents and update existing PDFs from any internet-connected device.
Can I create an electronic signature for signing my rfp statewide traffic and in Gmail?
Upload, type, or draw a signature in Gmail with the help of pdfFiller’s add-on. pdfFiller enables you to eSign your rfp statewide traffic and and other documents right in your inbox. Register your account in order to save signed documents and your personal signatures.
What is rfp statewide traffic and?
RFP Statewide Traffic and stands for Request for Proposal for Statewide Traffic and is a document issued by the government to vendors for bidding on a project related to statewide traffic management.
Who is required to file rfp statewide traffic and?
Vendors who are interested in bidding on a statewide traffic management project are required to file RFP Statewide Traffic and.
How to fill out rfp statewide traffic and?
To fill out RFP Statewide Traffic and, vendors need to carefully read and follow the instructions provided in the document, provide all the required information and submit their bid before the deadline.
What is the purpose of rfp statewide traffic and?
The purpose of RFP Statewide Traffic and is to gather competitive bids from vendors for a statewide traffic management project, ensuring transparency and fairness in the bidding process.
What information must be reported on rfp statewide traffic and?
Information such as vendor contact details, pricing, proposed solutions for traffic management, past relevant experience, and any other requirements specified in the RFP document must be reported on RFP Statewide Traffic and.
Fill out your rfp statewide traffic and online with pdfFiller!
pdfFiller is an end-to-end solution for managing, creating, and editing documents and forms in the cloud. Save time and hassle by preparing your tax forms online.

Rfp Statewide Traffic And is not the form you're looking for?Search for another form here.
Relevant keywords
Related Forms
If you believe that this page should be taken down, please follow our DMCA take down process
here
.
This form may include fields for payment information. Data entered in these fields is not covered by PCI DSS compliance.