Form preview

Get the free Plumbing Permit - the City of South Haven

Get Form
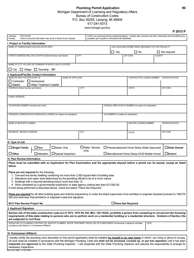
Plumbing Permit Application Michigan Department of Licensing and Regulatory AffairsBureau of Construction Codes. O. Box 30255, Lansing, MI 489095172419313 This form can be completed by tabbing to
We are not affiliated with any brand or entity on this form

Get, Create, Make and Sign plumbing permit - form

Edit
Edit your plumbing permit - form form online
Type text, complete fillable fields, insert images, highlight or blackout data for discretion, add comments, and more.
Add
Add your legally-binding signature
Draw or type your signature, upload a signature image, or capture it with your digital camera.
Share
Share your form instantly
Email, fax, or share your plumbing permit - form form via URL. You can also download, print, or export forms to your preferred cloud storage service.

How to edit plumbing permit - form online

9.5
Ease of Setup
pdfFiller User Ratings on G2
9.0
Ease of Use
pdfFiller User Ratings on G2
Follow the guidelines below to take advantage of the professional PDF editor:
1
Create an account. Begin by choosing Start Free Trial and, if you are a new user, establish a profile.
2
Prepare a file. Use the Add New button to start a new project. Then, using your device, upload your file to the system by importing it from internal mail, the cloud, or adding its URL.
3
Edit plumbing permit - form. Text may be added and replaced, new objects can be included, pages can be rearranged, watermarks and page numbers can be added, and so on. When you're done editing, click Done and then go to the Documents tab to combine, divide, lock, or unlock the file.
4
Get your file. Select the name of your file in the docs list and choose your preferred exporting method. You can download it as a PDF, save it in another format, send it by email, or transfer it to the cloud.
pdfFiller makes dealing with documents a breeze. Create an account to find out!

Uncompromising security for your PDF editing and eSignature needs

Your private information is safe with pdfFiller. We employ end-to-end encryption, secure cloud storage, and advanced access control to protect your documents and maintain regulatory compliance.
GDPR
AICPA SOC 2
PCI
HIPAA
CCPA
FDA

How to fill out plumbing permit - form

Illustration

How to fill out plumbing permit - form

01
Obtain a plumbing permit form from your local building department.
02
Fill out the form with the required information, which typically includes your contact details, the project address, a description of the work to be done, and the names of licensed plumbers involved in the project.
03
Provide any additional details or supporting documents that may be required, such as plumbing plans or diagrams.
04
Pay the necessary fees for the permit.
05
Submit the completed form and all accompanying documents to the building department.
06
Await approval of the permit. Once approved, you will be able to proceed with the plumbing work.
07
Make sure to follow all relevant codes and regulations while carrying out the plumbing work.
08
Upon completion of the work, schedule an inspection by the building department to ensure it meets the necessary standards.
09
If the inspection is successful, the plumbing permit will be considered closed.

Who needs plumbing permit - form?

01
Anyone who intends to perform plumbing work that requires alterations, extensions, or repairs to a plumbing system typically needs a plumbing permit.
02
This includes homeowners, contractors, and licensed plumbers.
Fill form : Try Risk Free
Users Most Likely To Recommend - Summer 2025
Grid Leader in Small-Business - Summer 2025
High Performer - Summer 2025
Regional Leader - Summer 2025
Easiest To Do Business With - Summer 2025
Best Meets Requirements- Summer 2025
Rate the form
4.3
Satisfied
23 Votes

For pdfFiller’s FAQs

Below is a list of the most common customer questions. If you can’t find an answer to your question, please don’t hesitate to reach out to us.

In your inbox, you may use pdfFiller's add-on for Gmail to generate, modify, fill out, and eSign your plumbing permit - form and any other papers you receive, all without leaving the program. Install pdfFiller for Gmail from the Google Workspace Marketplace by visiting this link. Take away the need for time-consuming procedures and handle your papers and eSignatures with ease.
pdfFiller has made it simple to fill out and eSign plumbing permit - form. The application has capabilities that allow you to modify and rearrange PDF content, add fillable fields, and eSign the document. Begin a free trial to discover all of the features of pdfFiller, the best document editing solution.
Using pdfFiller's mobile-native applications for iOS and Android is the simplest method to edit documents on a mobile device. You may get them from the Apple App Store and Google Play, respectively. More information on the apps may be found here. Install the program and log in to begin editing plumbing permit - form.
Fill out your plumbing permit - form online with pdfFiller!

pdfFiller is an end-to-end solution for managing, creating, and editing documents and forms in the cloud. Save time and hassle by preparing your tax forms online.

Get started now
Form preview
If you believe that this page should be taken down, please follow our DMCA take down process here .
This form may include fields for payment information. Data entered in these fields is not covered by PCI DSS compliance.