
Get the free Approval of the April 16, 2019 Agenda, and February 19, 2019 Board - dbs idaho
Show details
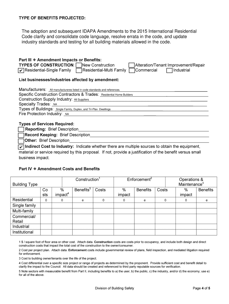
DIVISION OF BUILDING SAFETY IDAHO BUILDING CODE BOARD VIDEOCONFERENCE MEETING APRIL 16, 2019IDAHO BUILDING CODE BOARD Agenda Item No. 01Agenda and MinutesPRESENTER: Andrew Back, Chairman OBJECTIVE:Approval
We are not affiliated with any brand or entity on this form
Get, Create, Make and Sign approval of form april

Edit your approval of form april form online
Type text, complete fillable fields, insert images, highlight or blackout data for discretion, add comments, and more.

Add your legally-binding signature
Draw or type your signature, upload a signature image, or capture it with your digital camera.

Share your form instantly
Email, fax, or share your approval of form april form via URL. You can also download, print, or export forms to your preferred cloud storage service.
How to edit approval of form april online
To use the professional PDF editor, follow these steps below:
1
Create an account. Begin by choosing Start Free Trial and, if you are a new user, establish a profile.
2
Prepare a file. Use the Add New button to start a new project. Then, using your device, upload your file to the system by importing it from internal mail, the cloud, or adding its URL.
3
Edit approval of form april. Rearrange and rotate pages, insert new and alter existing texts, add new objects, and take advantage of other helpful tools. Click Done to apply changes and return to your Dashboard. Go to the Documents tab to access merging, splitting, locking, or unlocking functions.
4
Save your file. Select it in the list of your records. Then, move the cursor to the right toolbar and choose one of the available exporting methods: save it in multiple formats, download it as a PDF, send it by email, or store it in the cloud.
pdfFiller makes dealing with documents a breeze. Create an account to find out!
Uncompromising security for your PDF editing and eSignature needs
Your private information is safe with pdfFiller. We employ end-to-end encryption, secure cloud storage, and advanced access control to protect your documents and maintain regulatory compliance.
How to fill out approval of form april

How to fill out approval of form april
01
To fill out the approval form for April, follow these steps:
02
Access the official website or portal where the form is available.
03
Locate the section or page specifically dedicated to the approval form for April.
04
Read any instructions or guidelines provided with the form to ensure accurate completion.
05
Begin by entering your personal information, such as your name, contact details, and any other required information.
06
Proceed to fill out the relevant sections or fields of the form.
07
Double-check the information you have entered to ensure correctness and completeness.
08
If required, attach any supporting documents or evidence as instructed.
09
Review the entire form once again to ensure accuracy.
10
Sign and date the form where indicated.
11
Submit the completed approval form by the designated method, such as online submission or in-person delivery.
12
Keep a copy of the form for your records.
13
Await further instructions or feedback regarding the approval process.
Who needs approval of form april?
01
The approval of form April may be required by individuals or organizations who
02
Need to seek authorization or permission for a specific action or request during the month of April.
03
Are involved in processes or procedures that mandate approval documentation for April.
04
Have been explicitly instructed or advised to complete and obtain approval for a form related to activities or events in April.
05
Are required to adhere to regulatory or compliance requirements that include obtaining approvals for April-related matters.
06
It is advisable to consult the specific guidelines or authorities related to the form to determine the exact individuals or organizations that require approval for April.
Fill
form
: Try Risk Free
For pdfFiller’s FAQs
Below is a list of the most common customer questions. If you can’t find an answer to your question, please don’t hesitate to reach out to us.
How can I edit approval of form april from Google Drive?
You can quickly improve your document management and form preparation by integrating pdfFiller with Google Docs so that you can create, edit and sign documents directly from your Google Drive. The add-on enables you to transform your approval of form april into a dynamic fillable form that you can manage and eSign from any internet-connected device.
How do I edit approval of form april online?
The editing procedure is simple with pdfFiller. Open your approval of form april in the editor, which is quite user-friendly. You may use it to blackout, redact, write, and erase text, add photos, draw arrows and lines, set sticky notes and text boxes, and much more.
How do I edit approval of form april in Chrome?
Install the pdfFiller Google Chrome Extension in your web browser to begin editing approval of form april and other documents right from a Google search page. When you examine your documents in Chrome, you may make changes to them. With pdfFiller, you can create fillable documents and update existing PDFs from any internet-connected device.
What is approval of form april?
Approval of Form April is a process by which a specific form for the month of April is reviewed and signed off by the appropriate authority.
Who is required to file approval of form april?
Employees or individuals responsible for completing the form for the month of April are required to file the approval.
How to fill out approval of form april?
To fill out approval of form April, carefully review the form, provide all necessary information, and obtain the required signatures from the designated individuals.
What is the purpose of approval of form april?
The purpose of approval of form April is to certify that the information provided in the form for the month of April is accurate and truthful.
What information must be reported on approval of form april?
The approval of Form April must include details such as the name of the individual or employee, the date, and any other specific information required by the form.
Fill out your approval of form april online with pdfFiller!
pdfFiller is an end-to-end solution for managing, creating, and editing documents and forms in the cloud. Save time and hassle by preparing your tax forms online.

Approval Of Form April is not the form you're looking for?Search for another form here.
Relevant keywords
Related Forms
If you believe that this page should be taken down, please follow our DMCA take down process
here
.
This form may include fields for payment information. Data entered in these fields is not covered by PCI DSS compliance.