
Get the free Including suburb and 8/162 Lygon Street Brunswick East 3057
Show details
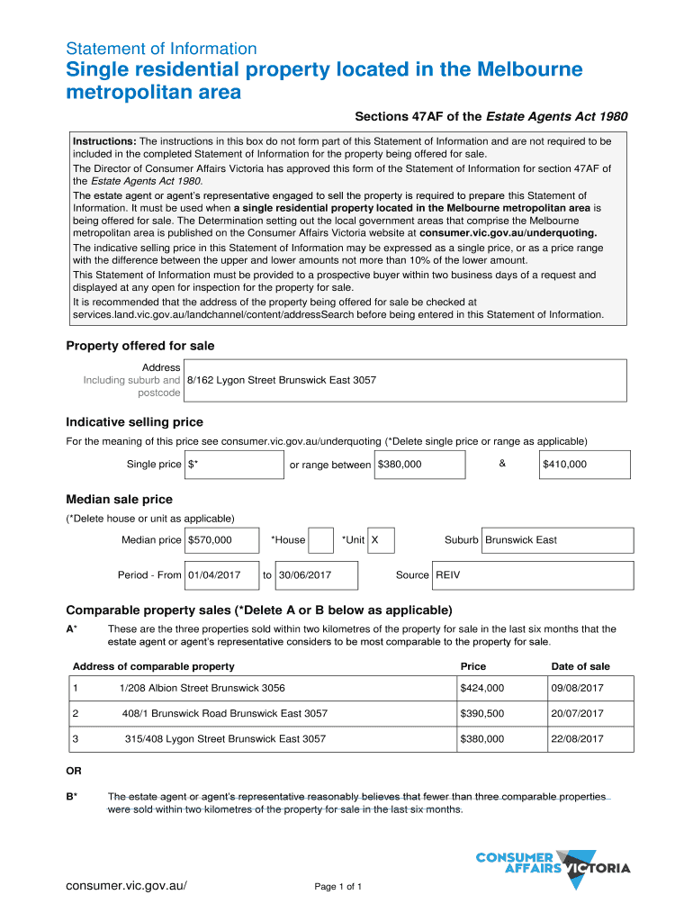
Statement of InformationSingle residential property located in the Melbourne
metropolitan area
Sections 47AF of the Estate Agents Act 1980
Instructions: The instructions in this box do not form part
We are not affiliated with any brand or entity on this form
Get, Create, Make and Sign including suburb and 8162

Edit your including suburb and 8162 form online
Type text, complete fillable fields, insert images, highlight or blackout data for discretion, add comments, and more.

Add your legally-binding signature
Draw or type your signature, upload a signature image, or capture it with your digital camera.

Share your form instantly
Email, fax, or share your including suburb and 8162 form via URL. You can also download, print, or export forms to your preferred cloud storage service.
How to edit including suburb and 8162 online
To use the services of a skilled PDF editor, follow these steps below:
1
Create an account. Begin by choosing Start Free Trial and, if you are a new user, establish a profile.
2
Upload a document. Select Add New on your Dashboard and transfer a file into the system in one of the following ways: by uploading it from your device or importing from the cloud, web, or internal mail. Then, click Start editing.
3
Edit including suburb and 8162. Replace text, adding objects, rearranging pages, and more. Then select the Documents tab to combine, divide, lock or unlock the file.
4
Get your file. Select your file from the documents list and pick your export method. You may save it as a PDF, email it, or upload it to the cloud.
pdfFiller makes dealing with documents a breeze. Create an account to find out!
Uncompromising security for your PDF editing and eSignature needs
Your private information is safe with pdfFiller. We employ end-to-end encryption, secure cloud storage, and advanced access control to protect your documents and maintain regulatory compliance.
How to fill out including suburb and 8162

How to fill out including suburb and 8162
01
To fill out including suburb and 8162, follow these steps:
02
Start by entering your personal details such as your full name, address, and contact information.
03
In the section for suburb, enter the name of the suburb where you reside. For example, if you live in New York City, you would enter 'New York' in the suburb field.
04
In the section for the postal code, enter '8162' as the postal code.
05
Continue filling out the rest of the form as required, providing all necessary information.
06
Double-check all the details you have entered to ensure accuracy.
07
Once you have completed filling out the form, submit it as instructed.
Who needs including suburb and 8162?
01
Anyone who resides in the suburb with the postal code 8162 needs to fill out the form including suburb and 8162.
02
This could include individuals, families, or businesses that are located in this specific suburb with the given postal code.
Fill
form
: Try Risk Free
For pdfFiller’s FAQs
Below is a list of the most common customer questions. If you can’t find an answer to your question, please don’t hesitate to reach out to us.
How can I send including suburb and 8162 for eSignature?
When you're ready to share your including suburb and 8162, you can swiftly email it to others and receive the eSigned document back. You may send your PDF through email, fax, text message, or USPS mail, or you can notarize it online. All of this may be done without ever leaving your account.
Can I create an eSignature for the including suburb and 8162 in Gmail?
Upload, type, or draw a signature in Gmail with the help of pdfFiller’s add-on. pdfFiller enables you to eSign your including suburb and 8162 and other documents right in your inbox. Register your account in order to save signed documents and your personal signatures.
How do I complete including suburb and 8162 on an iOS device?
Get and install the pdfFiller application for iOS. Next, open the app and log in or create an account to get access to all of the solution’s editing features. To open your including suburb and 8162, upload it from your device or cloud storage, or enter the document URL. After you complete all of the required fields within the document and eSign it (if that is needed), you can save it or share it with others.
What is including suburb and 8162?
Including suburb and 8162 refers to the process of including information about a specific suburb and the code 8162 in a form or document.
Who is required to file including suburb and 8162?
Anyone who resides or operates within the specified suburb or code 8162 may be required to file including suburb and 8162.
How to fill out including suburb and 8162?
To fill out including suburb and 8162, you must provide accurate information about the suburb and code 8162 according to the guidelines provided.
What is the purpose of including suburb and 8162?
The purpose of including suburb and 8162 is to ensure that specific information related to the suburb and code 8162 is properly documented and recorded.
What information must be reported on including suburb and 8162?
The information required to be reported on including suburb and 8162 may vary, but typically includes details about the suburb and code 8162.
Fill out your including suburb and 8162 online with pdfFiller!
pdfFiller is an end-to-end solution for managing, creating, and editing documents and forms in the cloud. Save time and hassle by preparing your tax forms online.

Including Suburb And 8162 is not the form you're looking for?Search for another form here.
Relevant keywords
Related Forms
If you believe that this page should be taken down, please follow our DMCA take down process
here
.
This form may include fields for payment information. Data entered in these fields is not covered by PCI DSS compliance.