
Get the free Building Department CITY OF ROCHESTER 400 Sixth Street ...
Show details
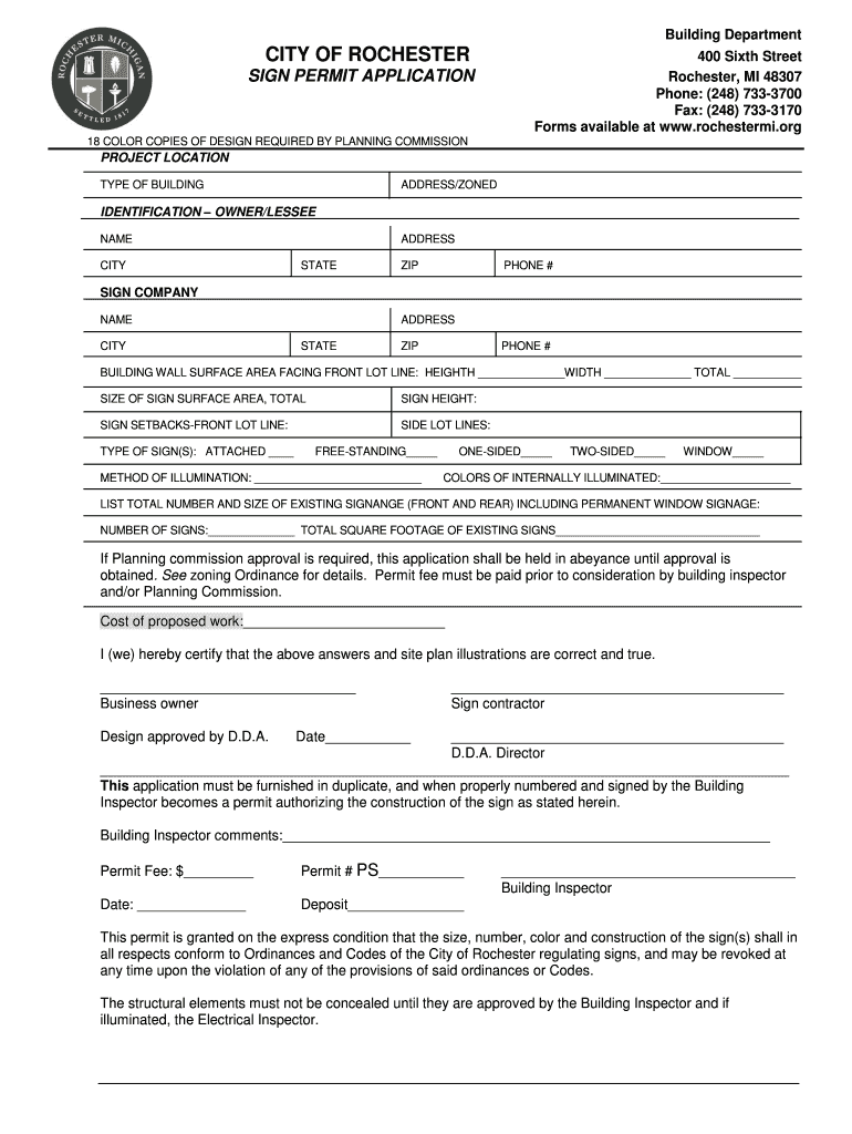
Building Departmentally OF ROCHESTER SIGN PERMIT APPLICATION400 Sixth Street Rochester, MI 48307 Phone: (248) 7333700 Fax: (248) 7333170 Forms available at www.rochestermi.org18 COLOR COPIES OF DESIGN
We are not affiliated with any brand or entity on this form
Get, Create, Make and Sign building department city of

Edit your building department city of form online
Type text, complete fillable fields, insert images, highlight or blackout data for discretion, add comments, and more.

Add your legally-binding signature
Draw or type your signature, upload a signature image, or capture it with your digital camera.

Share your form instantly
Email, fax, or share your building department city of form via URL. You can also download, print, or export forms to your preferred cloud storage service.
How to edit building department city of online
To use the professional PDF editor, follow these steps below:
1
Log in to account. Click Start Free Trial and register a profile if you don't have one yet.
2
Prepare a file. Use the Add New button. Then upload your file to the system from your device, importing it from internal mail, the cloud, or by adding its URL.
3
Edit building department city of. Replace text, adding objects, rearranging pages, and more. Then select the Documents tab to combine, divide, lock or unlock the file.
4
Save your file. Select it from your list of records. Then, move your cursor to the right toolbar and choose one of the exporting options. You can save it in multiple formats, download it as a PDF, send it by email, or store it in the cloud, among other things.
It's easier to work with documents with pdfFiller than you can have ever thought. You may try it out for yourself by signing up for an account.
Uncompromising security for your PDF editing and eSignature needs
Your private information is safe with pdfFiller. We employ end-to-end encryption, secure cloud storage, and advanced access control to protect your documents and maintain regulatory compliance.
How to fill out building department city of

How to fill out building department city of
01
Start by gathering all the necessary documents and information required by the building department.
02
Contact the building department in your city to inquire about their specific requirements and procedures for filling out the forms.
03
Carefully read and understand the instructions provided by the building department before filling out any forms.
04
Fill out the forms accurately and completely, making sure to provide all the required information.
05
Double-check your completed forms and ensure that you have included any necessary attachments or supporting documents.
06
Submit the filled-out forms to the building department either in person or via mail, following their designated submission process.
07
Keep copies of all the forms and supporting documents for your records in case they are needed for future reference or inspections.
08
Follow up with the building department if necessary to track the progress of your application or to address any concerns or questions.
Who needs building department city of?
01
Anyone who intends to build, renovate, or make changes to a property within the jurisdiction of the building department in the city
Fill
form
: Try Risk Free
For pdfFiller’s FAQs
Below is a list of the most common customer questions. If you can’t find an answer to your question, please don’t hesitate to reach out to us.
Where do I find building department city of?
The premium pdfFiller subscription gives you access to over 25M fillable templates that you can download, fill out, print, and sign. The library has state-specific building department city of and other forms. Find the template you need and change it using powerful tools.
How do I fill out the building department city of form on my smartphone?
You can easily create and fill out legal forms with the help of the pdfFiller mobile app. Complete and sign building department city of and other documents on your mobile device using the application. Visit pdfFiller’s webpage to learn more about the functionalities of the PDF editor.
How do I complete building department city of on an iOS device?
Install the pdfFiller app on your iOS device to fill out papers. If you have a subscription to the service, create an account or log in to an existing one. After completing the registration process, upload your building department city of. You may now use pdfFiller's advanced features, such as adding fillable fields and eSigning documents, and accessing them from any device, wherever you are.
What is building department city of?
The building department city of is responsible for overseeing and regulating construction and development activities within the city.
Who is required to file building department city of?
Property owners, contractors, and developers are typically required to file with the building department city of before beginning any construction project.
How to fill out building department city of?
To fill out building department city of, you will need to provide details about the planned construction project, including blueprints, permits, and other required documentation.
What is the purpose of building department city of?
The purpose of building department city of is to ensure that construction projects comply with building codes, zoning regulations, and safety standards to protect the community.
What information must be reported on building department city of?
Information that must be reported on building department city of includes project details, contractor information, permit numbers, and construction timelines.
Fill out your building department city of online with pdfFiller!
pdfFiller is an end-to-end solution for managing, creating, and editing documents and forms in the cloud. Save time and hassle by preparing your tax forms online.

Building Department City Of is not the form you're looking for?Search for another form here.
Relevant keywords
Related Forms
If you believe that this page should be taken down, please follow our DMCA take down process
here
.
This form may include fields for payment information. Data entered in these fields is not covered by PCI DSS compliance.