
Get the free Commercial Lighting Retrofit Rebate Form (pdf) - Alexandria ...
Show details
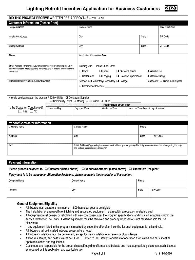
Email with Required DocumentsPRINT2020Lighting Retrofit Incentive Application for Business Customers
A Cash Incentive Energy Efficiency Program brought to you by:IMPORTANT INSTRUCTIONS:
Step 1: Determine
We are not affiliated with any brand or entity on this form
Get, Create, Make and Sign commercial lighting retrofit rebate

Edit your commercial lighting retrofit rebate form online
Type text, complete fillable fields, insert images, highlight or blackout data for discretion, add comments, and more.

Add your legally-binding signature
Draw or type your signature, upload a signature image, or capture it with your digital camera.

Share your form instantly
Email, fax, or share your commercial lighting retrofit rebate form via URL. You can also download, print, or export forms to your preferred cloud storage service.
Editing commercial lighting retrofit rebate online
Here are the steps you need to follow to get started with our professional PDF editor:
1
Check your account. In case you're new, it's time to start your free trial.
2
Upload a document. Select Add New on your Dashboard and transfer a file into the system in one of the following ways: by uploading it from your device or importing from the cloud, web, or internal mail. Then, click Start editing.
3
Edit commercial lighting retrofit rebate. Rearrange and rotate pages, add new and changed texts, add new objects, and use other useful tools. When you're done, click Done. You can use the Documents tab to merge, split, lock, or unlock your files.
4
Save your file. Select it in the list of your records. Then, move the cursor to the right toolbar and choose one of the available exporting methods: save it in multiple formats, download it as a PDF, send it by email, or store it in the cloud.
Uncompromising security for your PDF editing and eSignature needs
Your private information is safe with pdfFiller. We employ end-to-end encryption, secure cloud storage, and advanced access control to protect your documents and maintain regulatory compliance.
How to fill out commercial lighting retrofit rebate

How to fill out commercial lighting retrofit rebate
01
Gather all necessary information and documentation, such as proof of purchase, invoices, and product specifications.
02
Determine the eligibility criteria for the commercial lighting retrofit rebate program, such as the types of lighting upgrades that qualify and any specific energy efficiency requirements.
03
Submit an application for the rebate program, either online or through a physical form, providing all required information and documentation.
04
Wait for the application to be reviewed and approved. This may involve an inspection of the lighting upgrades to verify their compliance with the program's requirements.
05
If the application is approved, receive the rebate amount as specified by the program. This may be in the form of a direct payment or a credit on future utility bills.
06
Keep records of the rebate and any related paperwork for future reference or audit purposes.
Who needs commercial lighting retrofit rebate?
01
Commercial building owners or tenants who are looking to upgrade their lighting systems and reduce energy consumption.
02
Businesses or organizations that meet the eligibility criteria of the commercial lighting retrofit rebate program.
03
Individuals or companies who are interested in saving money on their energy bills and maximizing energy efficiency in their commercial buildings.
Fill
form
: Try Risk Free
For pdfFiller’s FAQs
Below is a list of the most common customer questions. If you can’t find an answer to your question, please don’t hesitate to reach out to us.
How can I send commercial lighting retrofit rebate for eSignature?
Once your commercial lighting retrofit rebate is complete, you can securely share it with recipients and gather eSignatures with pdfFiller in just a few clicks. You may transmit a PDF by email, text message, fax, USPS mail, or online notarization directly from your account. Make an account right now and give it a go.
How do I make edits in commercial lighting retrofit rebate without leaving Chrome?
commercial lighting retrofit rebate can be edited, filled out, and signed with the pdfFiller Google Chrome Extension. You can open the editor right from a Google search page with just one click. Fillable documents can be done on any web-connected device without leaving Chrome.
How do I edit commercial lighting retrofit rebate on an Android device?
With the pdfFiller mobile app for Android, you may make modifications to PDF files such as commercial lighting retrofit rebate. Documents may be edited, signed, and sent directly from your mobile device. Install the app and you'll be able to manage your documents from anywhere.
What is commercial lighting retrofit rebate?
The commercial lighting retrofit rebate is a financial incentive offered to businesses to encourage them to upgrade their lighting systems to be more energy-efficient.
Who is required to file commercial lighting retrofit rebate?
Any business or organization that has completed a lighting retrofit project and wants to receive a rebate for the work done.
How to fill out commercial lighting retrofit rebate?
To fill out the commercial lighting retrofit rebate, businesses need to provide information about the project, including the type of lighting used, total cost, and energy savings achieved.
What is the purpose of commercial lighting retrofit rebate?
The purpose of the commercial lighting retrofit rebate is to incentivize businesses to invest in energy-efficient lighting technology, which can help reduce energy consumption and lower utility bills.
What information must be reported on commercial lighting retrofit rebate?
Businesses must report details about the lighting retrofit project, such as the type of lighting fixtures installed, energy savings achieved, and the total project cost.
Fill out your commercial lighting retrofit rebate online with pdfFiller!
pdfFiller is an end-to-end solution for managing, creating, and editing documents and forms in the cloud. Save time and hassle by preparing your tax forms online.

Commercial Lighting Retrofit Rebate is not the form you're looking for?Search for another form here.
Relevant keywords
Related Forms
If you believe that this page should be taken down, please follow our DMCA take down process
here
.
This form may include fields for payment information. Data entered in these fields is not covered by PCI DSS compliance.