Get the free Request to Change USMLE Step 1/Step 2 CK ... - ecfmg
Show details
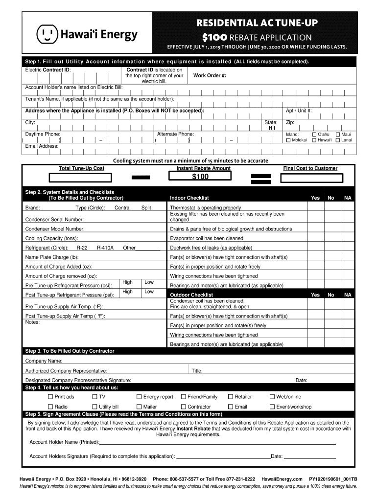
Step 1. F i l l o u t U t i l i t y Ac c o u n t i n f o r m a t i o n w h e r e e q u i p m e n t i s i n s t an l e d (ALL fields must be completed).
Electric Contract ID:Contract ID is located
We are not affiliated with any brand or entity on this form
Get, Create, Make and Sign request to change usmle
Edit your request to change usmle form online
Type text, complete fillable fields, insert images, highlight or blackout data for discretion, add comments, and more.
Add your legally-binding signature
Draw or type your signature, upload a signature image, or capture it with your digital camera.
Share your form instantly
Email, fax, or share your request to change usmle form via URL. You can also download, print, or export forms to your preferred cloud storage service.
Editing request to change usmle online
To use our professional PDF editor, follow these steps:
1
Log in. Click Start Free Trial and create a profile if necessary.
2
Simply add a document. Select Add New from your Dashboard and import a file into the system by uploading it from your device or importing it via the cloud, online, or internal mail. Then click Begin editing.
3
Edit request to change usmle. Add and change text, add new objects, move pages, add watermarks and page numbers, and more. Then click Done when you're done editing and go to the Documents tab to merge or split the file. If you want to lock or unlock the file, click the lock or unlock button.
4
Get your file. Select the name of your file in the docs list and choose your preferred exporting method. You can download it as a PDF, save it in another format, send it by email, or transfer it to the cloud.
With pdfFiller, dealing with documents is always straightforward.
Uncompromising security for your PDF editing and eSignature needs
Your private information is safe with pdfFiller. We employ end-to-end encryption, secure cloud storage, and advanced access control to protect your documents and maintain regulatory compliance.
How to fill out request to change usmle
How to fill out request to change usmle
01
To fill out a request to change USMLE, follow these steps:
02
Go to the official USMLE website.
03
Download the request form for changing USMLE.
04
Fill out the form with accurate and complete information.
05
Attach any necessary supporting documents, if required.
06
Review the filled-out form and make sure all the details are correct.
07
Submit the request form along with the supporting documents through the specified channels (online or by mail, depending on the instructions provided).
08
Pay any required fees, if applicable.
09
Wait for confirmation of receipt of the request.
10
Keep a copy of the filled-out form and any corresponding documents for your records.
11
Follow up with the USMLE authority regarding the status of your request, if necessary.
Who needs request to change usmle?
01
Anyone who wishes to make changes to their USMLE application or registration needs to submit a request to change USMLE. This could include individuals who need to correct personal information, update exam eligibility, request score rechecks, or modify their exam scheduling. It is important for candidates to carefully review the guidelines provided by USMLE to determine if their specific situation requires submitting a request to make changes.
Fill
form
: Try Risk Free
For pdfFiller’s FAQs
Below is a list of the most common customer questions. If you can’t find an answer to your question, please don’t hesitate to reach out to us.
How do I complete request to change usmle online?
pdfFiller has made filling out and eSigning request to change usmle easy. The solution is equipped with a set of features that enable you to edit and rearrange PDF content, add fillable fields, and eSign the document. Start a free trial to explore all the capabilities of pdfFiller, the ultimate document editing solution.
How do I edit request to change usmle in Chrome?
Add pdfFiller Google Chrome Extension to your web browser to start editing request to change usmle and other documents directly from a Google search page. The service allows you to make changes in your documents when viewing them in Chrome. Create fillable documents and edit existing PDFs from any internet-connected device with pdfFiller.
How do I fill out the request to change usmle form on my smartphone?
You can easily create and fill out legal forms with the help of the pdfFiller mobile app. Complete and sign request to change usmle and other documents on your mobile device using the application. Visit pdfFiller’s webpage to learn more about the functionalities of the PDF editor.
What is request to change usmle?
Request to change USMLE is a formal application submitted to make changes to United States Medical Licensing Examination.
Who is required to file request to change usmle?
Any individual who needs to make changes to their USMLE registration details is required to file a request to change USMLE.
How to fill out request to change usmle?
To fill out a request to change USMLE, one must visit the official USMLE website, log into their account, and navigate to the section for making changes to their registration.
What is the purpose of request to change usmle?
The purpose of request to change USMLE is to ensure that the information provided during registration is accurate and up-to-date.
What information must be reported on request to change usmle?
The information that must be reported on a request to change USMLE includes personal details, contact information, and any changes to exam scheduling or eligibility.
Fill out your request to change usmle online with pdfFiller!
pdfFiller is an end-to-end solution for managing, creating, and editing documents and forms in the cloud. Save time and hassle by preparing your tax forms online.
Request To Change Usmle is not the form you're looking for?Search for another form here.
Relevant keywords
Related Forms
If you believe that this page should be taken down, please follow our DMCA take down process
here
.
This form may include fields for payment information. Data entered in these fields is not covered by PCI DSS compliance.