
Get the free Fault detection and diagnostics for packaged direct expansion units - energy ca
Show details
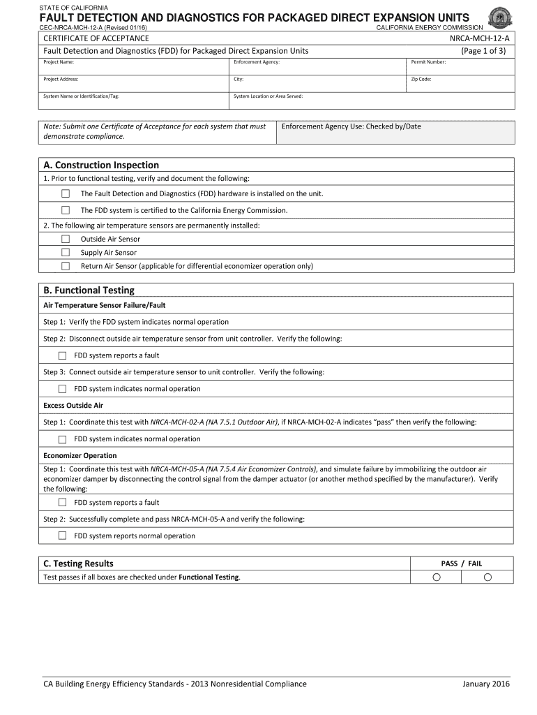
STATE OF CALIFORNIA FAULT DETECTION AND DIAGNOSTICS FOR PACKAGED DIRECT EXPANSION UNITS CEC-NRCA-MCH-12-A (Revised 01/16) CALIFORNIA ENERGY COMMISSION CERTIFICATE OF ACCEPTANCE Fault Detection and
We are not affiliated with any brand or entity on this form
Get, Create, Make and Sign fault detection and diagnostics

Edit your fault detection and diagnostics form online
Type text, complete fillable fields, insert images, highlight or blackout data for discretion, add comments, and more.

Add your legally-binding signature
Draw or type your signature, upload a signature image, or capture it with your digital camera.

Share your form instantly
Email, fax, or share your fault detection and diagnostics form via URL. You can also download, print, or export forms to your preferred cloud storage service.
How to edit fault detection and diagnostics online
To use the services of a skilled PDF editor, follow these steps:
1
Log in. Click Start Free Trial and create a profile if necessary.
2
Upload a file. Select Add New on your Dashboard and upload a file from your device or import it from the cloud, online, or internal mail. Then click Edit.
3
Edit fault detection and diagnostics. Rearrange and rotate pages, add new and changed texts, add new objects, and use other useful tools. When you're done, click Done. You can use the Documents tab to merge, split, lock, or unlock your files.
4
Save your file. Choose it from the list of records. Then, shift the pointer to the right toolbar and select one of the several exporting methods: save it in multiple formats, download it as a PDF, email it, or save it to the cloud.
pdfFiller makes dealing with documents a breeze. Create an account to find out!
Uncompromising security for your PDF editing and eSignature needs
Your private information is safe with pdfFiller. We employ end-to-end encryption, secure cloud storage, and advanced access control to protect your documents and maintain regulatory compliance.
How to fill out fault detection and diagnostics

How to fill out fault detection and diagnostics (FDD)?
01
Start by understanding the purpose of fault detection and diagnostics (FDD). FDD is a process that involves analyzing data and identifying potential faults or issues in a system. It helps in detecting problems early on and determining the root cause of those issues.
02
Begin by gathering relevant data. This includes collecting information about the system you want to monitor, such as sensor data, performance metrics, and historical data. Make sure that the data is accurate and up-to-date to get reliable results.
03
Use appropriate FDD software or tools. There are various software applications and tools available that can help you with fault detection and diagnostics. These tools utilize algorithms and machine learning techniques to analyze the collected data and provide insights into potential faults or anomalies.
04
Configure the FDD software or tool. This involves setting up parameters and thresholds that define what is considered a fault or anomaly. You may need to specify the acceptable ranges, limits, or patterns for different variables within the system. Consult the software's documentation or seek professional assistance if needed.
05
Implement the FDD process. Once the software is configured, it's time to put it into action. Monitor the system regularly and ensure that the data is being collected and analyzed effectively. Regularly review and update the FDD settings based on any changes or new insights gained from the analysis.
Who needs fault detection and diagnostics?
01
Facility managers: FDD is particularly useful for facility managers who oversee large buildings or complexes. It helps them detect faults in equipment, systems, or processes, allowing for timely repairs and preventing potential damage or breakdowns.
02
Maintenance teams: Fault detection and diagnostics are essential for maintenance teams to identify equipment or system malfunctions. It enables them to proactively address problems, reduce downtime, and optimize maintenance schedules.
03
Building owners: Building owners can benefit from FDD by ensuring the efficient operation of their properties. It helps them optimize energy usage, reduce utility costs, and extend the lifespan of equipment, which ultimately leads to improved profitability.
04
Industrial engineers: FDD is valuable for industrial engineers as it aids in optimizing manufacturing processes. By detecting and diagnosing faults early on, engineers can find ways to improve efficiency, prevent waste, and enhance overall production quality.
05
Data analysts: FDD involves analyzing large volumes of data, making it an area of interest for data analysts. These professionals can apply data mining techniques, statistical analysis, and machine learning algorithms to extract valuable insights from the collected data, enabling better decision-making.
Overall, fault detection and diagnostics are crucial for any industry or sector where equipment, systems, or processes need to be monitored and optimized for optimal performance and efficiency.
Fill
form
: Try Risk Free
For pdfFiller’s FAQs
Below is a list of the most common customer questions. If you can’t find an answer to your question, please don’t hesitate to reach out to us.
How can I get fault detection and diagnostics?
It's simple using pdfFiller, an online document management tool. Use our huge online form collection (over 25M fillable forms) to quickly discover the fault detection and diagnostics. Open it immediately and start altering it with sophisticated capabilities.
How do I make edits in fault detection and diagnostics without leaving Chrome?
Install the pdfFiller Google Chrome Extension in your web browser to begin editing fault detection and diagnostics and other documents right from a Google search page. When you examine your documents in Chrome, you may make changes to them. With pdfFiller, you can create fillable documents and update existing PDFs from any internet-connected device.
Can I create an electronic signature for signing my fault detection and diagnostics in Gmail?
Create your eSignature using pdfFiller and then eSign your fault detection and diagnostics immediately from your email with pdfFiller's Gmail add-on. To keep your signatures and signed papers, you must create an account.
What is fault detection and diagnostics?
Fault detection and diagnostics is a process of monitoring and identifying issues or abnormalities in systems or equipment to ensure they are functioning properly.
Who is required to file fault detection and diagnostics?
Typically building owners or facility managers are required to file fault detection and diagnostics.
How to fill out fault detection and diagnostics?
Fault detection and diagnostics forms can usually be filled out online or through a designated reporting platform provided by regulatory authorities.
What is the purpose of fault detection and diagnostics?
The purpose of fault detection and diagnostics is to identify and address issues with systems or equipment in order to prevent failures and ensure efficient operation.
What information must be reported on fault detection and diagnostics?
Information such as system readings, error codes, maintenance history, and any identified faults or abnormalities must be reported on fault detection and diagnostics.
Fill out your fault detection and diagnostics online with pdfFiller!
pdfFiller is an end-to-end solution for managing, creating, and editing documents and forms in the cloud. Save time and hassle by preparing your tax forms online.

Fault Detection And Diagnostics is not the form you're looking for?Search for another form here.
Relevant keywords
Related Forms
If you believe that this page should be taken down, please follow our DMCA take down process
here
.
This form may include fields for payment information. Data entered in these fields is not covered by PCI DSS compliance.